常州大和玖越花园售楼处电话:400-8787-098转分机号6666【营销中心】
楼盘详情4008787098-转分机号6666(房价,价格,地址,户型图,交通,周边配套,备案价,楼盘详情,售楼处电话,售楼处地址,最新房源,最新价格,最新动态,最新进展等详情)
【项目节点】
项目预计2022年6月份开盘,首开4、14、15号楼。目前城市展厅已开放,位于龙锦路开元名都大酒店。
【项目概况】
占地面积:约7.5万方
建筑面积:约22万方
容积率:2.2
物业:大和物业
总栋数:15栋
总户数:967户
产品面积:149㎡、169㎡,198㎡,229㎡,238㎡

【项目位置】
天宁区青龙板块,位于东方西路和横塘河西路交汇处,九龙大排档和中海云樾里斜对面。
NO.2
品牌介绍
【品牌实力】
大和房屋集团创立于1955年,专注不动产行业67年,日本住宅、建筑、房地产行业排名第一,连续12年名列世界500强。
大和房屋集团足迹,已遍布日本以外的全球几十个国家和地区,自2011年进入常州以来,相继开发了龙洲伊都和琅越龙洲两个标杆项目。
大和集团以“共同创造,共同生活”为目标,追寻SDGs(可持续发展理念),作为“人、街区、生活价值的共创集团”,不断为社会创造新的价值。

【物业保障】
大和房屋作为国际著名开发商,不仅将优质的住宅产品带入中国,更加专业、严谨、人性化的日系玖心服务引入,通过6S专业教育培训体系,为业主提供安全、舒适、贴心的高品质生活。
无微不至的诚挚关怀,呈递更深层次的精神满足,“凡事彻底”的玖心服务,不仅为业主提供安全,舒适贴心的高品质生活更能实现资产保值增值。

NO.3
配套介绍
玖越位于天宁区红梅板块与青龙板块的交汇处,占据城市发展的优势区位。
【区域发展】
天宁主城、青龙版块、贯彻常州政府主城区东扩发展理念,版块价值瞬燃爆发。
项目紧邻天宁老城繁华区域,聚焦城心向东,居享教育、医疗等生活配套,抢占天宁向东第一站。

【交通配套】
成熟立体交通网,临近地铁2号线出站口,三角场站和紫云站,快速到达文化宫,同时紫云站将来还规划了地铁6号线换乘。
全市未来稀缺双地铁房,公交出门即享、双高架环伺,畅达出行常州各个区域。
【商业配套】
东侧1.5公里内临近天宁吾悦A类店(品牌旗舰体验、全龄段全时段、首创新、网红聚、智能操作),全国180余座吾悦广场中仅有的6座A类店之首,尽享便利生活,助力版块潜力。
【教育资源】
周边优质教育资源星罗棋布,项目紧邻天宁繁华主城,充分满足家庭对于优质教育资源的需求。
随着天宁区政府对内部配套的不断提升,未来在项目附近还规划有常青小学及幼儿园、初中用地。
【医疗配套】
项目周边约5公里范围内,聚集着常州最好的三甲医疗医院,第一人民医院、第二人民医院、常州市中医院、儿童医院、武进医院等,为您和家人提供最完善的医疗保障。
【生态资源】
项目距水晶生态公园仅约700米,水晶生态公园为横塘河湿地的景观节点之一,横塘河湿地公园规划用地面积约53公顷,是常州市最大的湿地景观公园。
NO.4
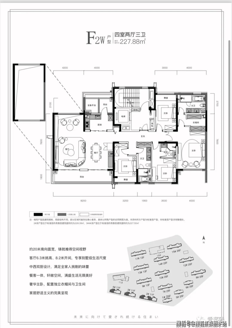
户型鉴赏
169㎡、198㎡户型还未公开,敬请期待。





常州大和玖越花园售楼处电话:400-8787-098转分机号6666【营销中心】
楼盘详情4008787098-转分机号6666(房价,价格,地址,户型图,交通,周边配套,备案价,楼盘详情,售楼处电话,售楼处地址,最新房源,最新价格,最新动态,最新进展等详情)