🏡苏州星河·湖西源启售楼处电话:400-8787-098输入分机号4444【营销中心】
🏡苏州星河·湖西源启售楼处位置:400-8787-098输入分机号4444【官方电话】
🏡房价特价信息丨优惠政策丨详细解答丨在售房源丨在售户型图丨项目介绍丨周边配套丨VR看房丨楼盘图丨沙盘图丨位置图丨配套图丨售楼处地址丨足不出户丨销售1V1讲解 如有问题欢迎来电咨询,可预约销售人员,专业一对一热情服务,让您用专业眼光去买房
自去年7月江苏住宅新规落地以来,苏州楼市迭代提速,催生出了四代宅洋房等一众住宅标杆。
今年,苏州改善赛道再度进阶,首个真正意义上的 “抬板社区”正式登场!
ta就是刚刚开放城市展厅的星河·湖西源启!
🏡苏州星河·湖西源启售楼处电话:400-8787-098输入分机号4444【营销中心】
🏡苏州星河·湖西源启售楼处位置:400-8787-098输入分机号4444【官方电话】
项目位于独墅湖西核芯地段,容积率1.25,产品为4F叠加+11F四代宅洋房,其中洋房约143㎡,叠加约167/188㎡。
最惊艳的还是产品!五大新规首创:社区全域抬板+全社区双首层+地上双车马院+全明景观车库+户户天空浮院,彻底刷新苏州人居标准!

🏡苏州星河·湖西源启售楼处电话:400-8787-098输入分机号4444【营销中心】
🏡苏州星河·湖西源启售楼处位置:400-8787-098输入分机号4444【官方电话】

什么是“抬板社区”呢?
这一创新设计在杭州楼市早有案例,就拿杭州大家咏月明庐为例,采用6米架空车库+5.6米架空层设计,将首层住宅标高提升近12米。

🏡苏州星河·湖西源启售楼处电话:400-8787-098输入分机号4444【营销中心】
🏡苏州星河·湖西源启售楼处位置:400-8787-098输入分机号4444【官方电话】
这样一来,整个居住组团如同被一座恢弘的空中平台托起,车库隐匿于平台之下,社区生活场景悉数铺陈于平台之上,传统意义上的 “一楼”约等同于常规建筑的 “四楼”。
更直白一点,它就像传统的吊脚楼,生活空间被抬离地面,一楼隐私差、采光差以及潮湿等问题迎刃而解。
其次,社区抬板后,人车可以做到完全分离,大大提升社区的安全性与安静度。
有过去大家避而远之的配电房、垃圾房等都可以设置在1楼,2楼也能留出更多空间打造园林景观。
基于此,我们再来看星河·湖西源启:
拟建24幢住宅,包括22栋4F叠加+2栋11F四代宅洋房,其中叠加共约194套,洋房约88套。
项目所有楼栋抬高约5.1米上盖,即首层全架空设计,过去的一楼在这里相当于二楼,视野更加开阔!
其次,配电房、垃圾房等功能性配套,均设置于与外部道路齐平的底层空间,实现了居住层与设备区的完全剥离,规避了传统社区因配套分布不均导致的楼栋价值差异,真正做到栋栋均好,无优劣之分。

自带约1500㎡下沉式会所,包含游泳池、健身房、瑜伽馆、私宴庭、室内高尔夫等丰富功能。
🏡苏州星河·湖西源启售楼处电话:400-8787-098输入分机号4444【营销中心】
🏡苏州星河·湖西源启售楼处位置:400-8787-098输入分机号4444【官方电话】
物业为国家一级物业管理资质的金钥匙物业——星河物业。
户型方面,清一色都是改善大户型,其中洋房约141㎡精装交付,叠加约167-188㎡,毛坯交付。


🏡苏州星河·湖西源启售楼处电话:400-8787-098输入分机号4444【营销中心】
🏡苏州星河·湖西源启售楼处位置:400-8787-098输入分机号4444【官方电话】
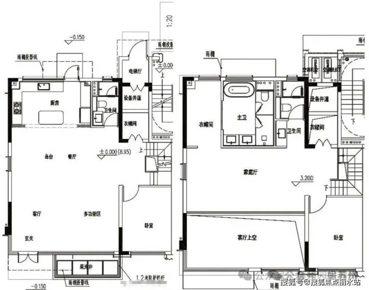
先看洋房户型,约143㎡4房2卫,这应该是目前吴中面积最小的洋房四代宅。
整体南向开间约14.5米,客厅开间约5m,主卧套房,北向生活阳台,分奇、偶数层,区别主要在于空中庭院,整个户型综合使用率超100%!

🏡苏州星河·湖西源启售楼处电话:400-8787-098输入分机号4444【营销中心】
🏡苏州星河·湖西源启售楼处位置:400-8787-098输入分机号4444【官方电话】
户型过程稿,以最终官方公示为准
叠加为纯正的4F真叠墅。
下叠建面约188㎡,双独立入户(地库入户+一楼入户);
面宽相当感人,达到约10米,超大方厅约6.7米,全卧室朝南设计;
二层挑空,结合南北露台赠送,使用率高达约155%。
🏡苏州星河·湖西源启售楼处电话:400-8787-098输入分机号4444【营销中心】
🏡苏州星河·湖西源启售楼处位置:400-8787-098输入分机号4444【官方电话】

最后再来看一下星河·湖西源启的地段,位于吴中区郭巷街道林家潭路南侧、通达路东侧,北面就是龙湖·九里璟园。
周边配套齐全,出门7号线,正宗地铁盘;附近有郭巷实小、苏大附属尹山湖中学等;商业依赖尹山湖的歌林公园等,地铁6站可达苏州中心。
根据官方规划,该地块南侧还有一宗拟出让宅地,未来居住氛围会更加浓厚。
再往南侧是即将重磅升级的郭巷老街片区,打造集文化、休闲、运动、商业等多元业态于一体的文旅街区,势必将带动周边区域的高质量发展。
作为区域首个低密盘,苏州首个正式面世的“抬板社区”,星河·湖西源启产品亮点还是非常多的,非常期待它最终呈现的实景!
🏡苏州星河·湖西源启售楼处电话:400-8787-098输入分机号4444【营销中心】
🏡苏州星河·湖西源启售楼处位置:400-8787-098输入分机号4444【官方电话】
🏡房价特价信息丨优惠政策丨详细解答丨在售房源丨在售户型图丨项目介绍丨周边配套丨VR看房丨楼盘图丨沙盘图丨位置图丨配套图丨售楼处地址丨足不出户丨销售1V1讲解 如有问题欢迎来电咨询,可预约销售人员,专业一对一热情服务,让您用专业眼光去买房