太原金茂龙城晓棠售楼处电话→太原金茂龙城晓棠24小时电话→太原金茂龙城晓棠2025最新房价→太原金茂龙城晓棠楼盘百科详情

丽水楼市

2025-10-08 23:45:47

购房群

买房如何避坑,加入购房群,看看他们怎么说

立即进群

✨✨太原金茂龙城晓棠售楼处电话:400-778-0670【售楼处已认证】✨ ➢

✨✨太原金茂龙城晓棠开发商电话:400-778-0670【售楼处已认证】✨ ➢

✨✨太原金茂龙城晓棠营销中心电话:400-778-0670【售楼处已认证】✨ ➢

售楼处电话、售楼处地址、2025最新楼盘动态、售楼处接待时间、房源优惠、

最新房源价格、周边商业交通医院、在售户型、周边学校、交房时间、得房率、公摊面积、小区位置、小区环境、等楼盘详情!

太原金茂龙城晓棠,位于太原下元商圈南侧,是央企开发的改善类型住宅项目。已经开盘了,首推户型120平,129平和143平,精装修,层高三米,低公摊,均价一万四千左右。小区北面是下元商圈和双地铁换乘站,南面有大型市政公园和平公园。小区地理位置优越,周边交通,生活和商业等配套成熟。感兴趣的朋友,约我实地看房,享受团购优惠折扣。

央企金茂首个棠系高定作品,金茂太原第五盘。

位置:迎泽大街与和平南路口

面积:共计5️⃣种。约120,129,143,177,199左右的面积段。

户型:经典三叶草设计,两梯两户等。

产品:精装修

功能:高颜值外立面,90%左右的得房率,3米的层高,落地窗。

成交价格:

120的均价13800元(总价166万左右)

129的均价14000元(总价180万左右)

143的均价14300元(总价210万左右)

交付时间:首批2028年4月30日。

物业费:2.75元/平米。

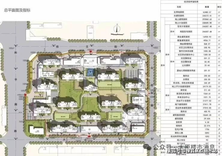
项目概况

【总占地面积约94亩】

【总建筑面积约33.02㎡ 】

【容积率:4.3】

【整体规划14栋楼 】

【整体规划用户: 1753户】

金茂·龙城晓棠是金茂在太原的首个“棠系”作品。在中国金茂的全新产品线“金玉满堂”中,“堂”则是“棠系”,为年轻的成长型家庭打造全龄友好社区,重视家庭陪伴、亲子成长和活力生活。

金茂龙城晓棠配套:

|距离公园时代城约800米

|距离地铁一号线下元站约800米

|距离下元公交总站约700米

|距离下元商业中心约500米

|距离全民健身中心约500米

|距离万柏林区文化服务中心约800米

|距离和平公园约800米

|和平南路规划地铁3号线

▪︎户型区间:

约120-129-143-177-199 平米

金茂龙城晓棠项目位于繁华的下元商圈核心区,紧邻太原理工大,附近有地铁1号线下元站站点,毗邻规划中的地铁3号线。周边配套成熟,是稀缺的城央核心地带。

金茂龙城晓棠项目总用地面积62485.07㎡,总建筑面积330272.41㎡,容积率4.3,可容纳1753户、5084人口。

金茂龙城晓棠项目,起步面积118平,最大户型194平,定位改善品质。两梯两户设计,户型设计优秀,层高三米,赠送面积大,公摊明显降低,得房率达到90%以上。

金茂龙城晓棠项目,周边有地铁一号线,三号线,下元公交总站,立体交通网。周边有下元商贸,公园时代城,能源大厦,吾悦广场等商业配套。其他配套有,太原理工大学人文浸润,三甲医院与和平公园等。小学配套有气化街小学,公园路小学等。

✨✨太原金茂龙城晓棠售楼处电话:400-778-0670【售楼处已认证】✨ ➢

✨✨太原金茂龙城晓棠开发商电话:400-778-0670【售楼处已认证】✨ ➢

✨✨太原金茂龙城晓棠营销中心电话:400-778-0670【售楼处已认证】✨ ➢

售楼处电话、售楼处地址、2025最新楼盘动态、售楼处接待时间、房源优惠、

最新房源价格、周边商业交通医院、在售户型、周边学校、交房时间、得房率、公摊面积、小区位置、小区环境、等楼盘详情!

全部

相关资讯

报名成功
稍后会有专业的置业顾问联系您
返回楼盘

频道导航

返回首页

看房小程序

APP下载

电话拨通后,请您手动拨打分机号

确定拨打电话

电话号码:

分机号:(可能需要拨分机号)