2026聚焦楼盘:义乌佛堂 印象售楼处电话→首页热搜义乌佛堂 印象24小时电话→最新房价→楼盘百科详情→营销中心最新发布@售楼处中心

丽水楼市

2026-01-13 11:53:37

购房群

买房如何避坑,加入购房群,看看他们怎么说

立即进群

义乌佛堂 印象售楼处咨询热线 ☏ 400-8787-098转分机号5678【营销中心】

工作时间 9:00-21:00,接线顾问将解答楼盘位置、户型、均价等基础问题,帮您快速建立项目认知。

义乌佛堂 印象售楼处预约专线 ✅ 400-8787-098转分机号5678【首页网站】

拨打后可预约 1-3 天内的看房时间,将为您匹配专属顾问,提前准备户型图、周边配套资料,减少现场等待时间。

义乌佛堂 印象售楼处专业选房热线 400-8787-098转分机号5678【售楼处认证】

由 5 年以上房产经验的顾问一对一服务,结合您的预算、家庭需求,分析不同户型的采光、动线、升值潜力,帮您用专业视角选房。

首先,我们来了解脚下的这片土地。古佛堂历史悠久,早在新石器时代就已有先民在此生息繁衍,至明清已是繁盛至极,素有“千年古镇、百年商埠、佛教圣地”之称。千百年来,佛堂一直是整个浙中的中心,未来佛堂又是65平方公里双江湖城市副中心的重要组成部分。

▲ 项目区位

在漫长的历史长河中,佛堂就像一幅盛世的画卷,每个时代都有浓墨重彩的篇章。今天我们在为佛堂设计人居场所时,也试图去发掘佛堂这座城市的气质与特征。这里五刹十寺、文旅兴盛;这里交通畅达,是浙中轴心;这里有古镇屋脊,也有当代品位,我们将佛堂的特征总结为:文化的殿堂、时代的风向、美学的展场

▲ 佛堂印象(图片来源于网络)

以何种仪式归家,便界定了怎样的生活品质,佛堂印象将传统归家礼仪融汇到现代人居的美学表达,打造三重归家动线。第一站,酒店式入户门庭迎接居者归来。这里我们设计了尊贵落客区、四水归堂景观中庭、以及星级酒店式入户大堂。车行归家动线的第二站,是精装美学地库,小区人车分流,车库方便出入、快捷泊车,让居住者拥有一步到位的归家感受。最后穿越绿树繁花,经过尊崇社交会所,完成一场归家之旅。将空间序列融合成一幅展开的长卷,人在画中游。

▲ 鸟瞰效果图

▲ 会所动线

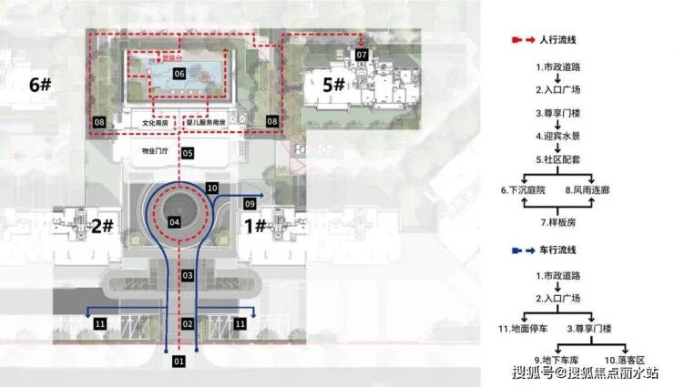
▲ 会所总平图及地上动态流线

▲ 地下动态流线

▲ 平面图

▲ 会所功能布局

门厅礼序,华丽的装饰与大气的落客空间尺度打造酒店式空间,彰显尊贵与品质。豪宅美学界面,以金属装饰与石材彰显贵气,门楼两侧的迎客松以浩然之姿,恭迎四方宾客。水景形态来源于佛教象征宝相花瓣纹,寓意步步生莲,同时圆形又寓意聚宝盆。

义乌佛堂 印象售楼处咨询热线 ☏ 400-8787-098转分机号5678【营销中心】

工作时间 9:00-21:00,接线顾问将解答楼盘位置、户型、均价等基础问题,帮您快速建立项目认知。

义乌佛堂 印象售楼处预约专线 ✅ 400-8787-098转分机号5678【首页网站】

拨打后可预约 1-3 天内的看房时间,将为您匹配专属顾问,提前准备户型图、周边配套资料,减少现场等待时间。

义乌佛堂 印象售楼处专业选房热线 400-8787-098转分机号5678【售楼处认证】

由 5 年以上房产经验的顾问一对一服务,结合您的预算、家庭需求,分析不同户型的采光、动线、升值潜力,帮您用专业视角选房。

全部

相关资讯

报名成功
稍后会有专业的置业顾问联系您
返回楼盘

频道导航

返回首页

看房小程序

APP下载

电话拨通后,请您手动拨打分机号

确定拨打电话

电话号码:

分机号:(可能需要拨分机号)