武汉城建江南岸售楼处电话→武汉城建江南岸售楼中心首页网站→武汉城建江南岸楼盘百科详情→24小时电话

丽水楼市

2025-08-09 18:41:28

购房群

买房如何避坑,加入购房群,看看他们怎么说

立即进群

武汉城建江南岸售楼处电话:400-8787-098转分机号5678【售楼处位置】

武汉城建江南岸售楼处电话:400-8787-098转分机号5678【营销中心】

武汉城建江南岸楼盘详情4008787098-转分机号5678(房价,价格,地址,户型图,交通,周边配套,备案价,楼盘详情,售楼处电话,售楼处地址,最新房源,最新价格,最新动态,最新进展等详情)

项目属于武昌滨江商务区旁杨园片,与二七滨江隔江相望,坐拥一隧两桥三地铁,地段优越,出行便捷。

武汉城建·江南岸区位

项目与武昌江滩仅隔了一条临江大道,并且得益于“V形折线形布局+前后错位”的排布,所有楼栋可直面观江,如此极致的视觉震撼,在一线临江的项目中也是罕见。售楼处电话400-8787-098接通后输入5678【营销中心】

武汉城建·江南岸效果图

而为了不辜负这份绝佳的观江视野,项目在户型设计上也非常用心。

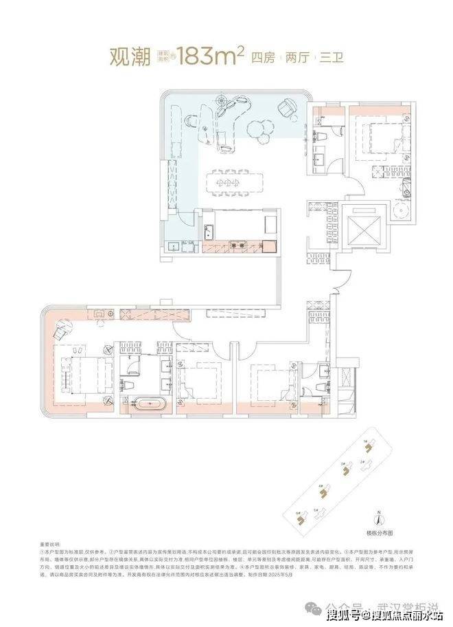
全盘只有建面约143㎡和183㎡两个户型,通过空间扩展+20%灵动阳台,带来超高得房率,保证改善圈层的纯粹。

建面约184㎡户型,创新的“双全景舱”观江设计,约45㎡超大IMAX环幕厅+约2.5米高落地玻璃的搭配,带来无界的霸屏式江幕;售楼处电话400-8787-098接通后输入5678【营销中心】

主卧270°U型玻璃幕墙背后,是江景环抱的极致望江体验,甚至躺在浴缸都能欣赏风景。

建面约143㎡是3+X户型,约16.2米极致正观江面,客厅、次卧、双主卧都能享受视觉盛宴,东侧主卧还坐拥双面观江视野。

此外,项目还配备了全风雨连廊归家、约2500㎡地上地下双层立体会所等,恒温泳池、私宴厅、SPA秘境、瑜伽健身房等一应俱全,品质感十足。

武汉城建江南岸售楼处电话:400-8787-098转分机号5678【售楼处位置】

武汉城建江南岸售楼处电话:400-8787-098转分机号5678【营销中心】

武汉城建江南岸楼盘详情4008787098-转分机号5678(房价,价格,地址,户型图,交通,周边配套,备案价,楼盘详情,售楼处电话,售楼处地址,最新房源,最新价格,最新动态,最新进展等详情)

全部

相关资讯

报名成功
稍后会有专业的置业顾问联系您
返回楼盘

频道导航

返回首页

看房小程序

APP下载

电话拨通后,请您手动拨打分机号

确定拨打电话

电话号码:

分机号:(可能需要拨分机号)