城发投·云尚【售楼中心】 | 石家庄【城发投·云尚】首页网站 |2025城发投·云尚最新消息 /售楼处电话/地址/房价/楼盘简讯

丽水楼市

2025-08-31 21:19:02

购房群

买房如何避坑,加入购房群,看看他们怎么说

立即进群

——石家庄【城发投·云尚】——

☎️城发投·云尚 售楼中心电话:400-8787-098转分机号6688【已认证】

☎️城发投·云尚 营销中心电话:400-8787-098转分机号6688【已认证】

✨楼盘基本信息介绍,地址,户型,价格,位置,医疗教育,商业交通配套✨

✨开发商指定合作平台,全网预约通道!✨

✨案场预约制 看房需提前2小时来电预约登记✨

✨请务必致电与销售确认时间,仅预约客户可进入销售现场,避免空跑,感谢您的支持!✨

毗邻稀缺河景及内外双公园,户均享有约77㎡园林风景……如此优越的生态景观,与之匹配的居然不是叠墅、洋房等景观豪宅,而是主力户型建面126-143㎡的改善社区,城发投·云尚这也太奢侈了吧。

在友谊大街东侧,距北二环快速路仅一公里的优越位置,城发投·云尚以2.0低容积率,高起点的社区和产品规划,打造远超市场预期的高品质社区。项目已是准现房,将于今年10月交房。

☎️城发投·云尚 售楼中心电话:400-8787-098转分机号6688【已认证】

☎️城发投·云尚 营销中心电话:400-8787-098转分机号6688【已认证】

无论位置、环境、品质、交付力还是价格,这都是一个全面领衔西北二环居住改善的“全能型”楼盘。

这在老旧小区扎堆儿的新华区西北二环,对亟待提升居住品质的改善人群而言,可谓是一场及时雨。

NO.1|壹

即使在上风上水的新华区,城发投·云尚的生态景观指数也属上乘。

项目位于石清路以北,友谊大街以东,南临石津灌渠,北畔太平河,双水系环抱。西侧毗连汇友公园,隔路对望友谊运动公园。临河而居、毗邻内外双园,名副其实“都市浓荫住区”。

城发投·云尚效果图

☎️城发投·云尚 售楼中心电话:400-8787-098转分机号6688【已认证】

☎️城发投·云尚 营销中心电话:400-8787-098转分机号6688【已认证】

项目距北二环快速路仅1公里,距地铁3号线1.9公里,周边公交地铁城市道路完善,教育医疗商业等基础生活配套齐全。如果说这里还有什么欠缺,那就是早年间二环路沿线无序开发,导致片区城市界面凌乱,学校、商业等基础配套也稍嫌初级。

城发投·云尚区位图

☎️城发投·云尚 售楼中心电话:400-8787-098转分机号6688【已认证】

☎️城发投·云尚 营销中心电话:400-8787-098转分机号6688【已认证】

城市更新来了,片区居住价值也因此蝶变重生。城发投·云尚项目所在的赵三街城市更新片区,规划有3所幼儿园,1所小学,1所中学,更有两座商业综合体,一条开放式风情商街,城市风貌和公共配套全面升级,再加上优越的自然生态景观,主城一居潮流生活下楼即享。

放眼新华区二环周边,像这样位置、环境“双优”更美好的片区前景近在眼前的楼盘,也很难找到第二个。

NO.2|贰

双公园,双水岸,二环旁低密洋房住区。城发投·云尚着力打造的,正是与其生态景观相匹配的高品质住区。

项目总占地约50亩,容积率仅2.0,住宅总建面约6.4万平米,含18层小高层和11-13层洋房,户型为建面约126㎡-143㎡三居。目前已是准现房,预计今年10月交付,今年买今年住,好房子无需等待。

城发投·云尚鸟瞰图

☎️城发投·云尚 售楼中心电话:400-8787-098转分机号6688【已认证】

☎️城发投·云尚 营销中心电话:400-8787-098转分机号6688【已认证】

临水而居,内外双园,45000㎡滨水生态大境,户均享有园林约77㎡,开阔楼间距,带来80%全天候采光日常,自然生态景观优秀到“没朋友”。

入户双大堂,敞亮公共区域,营造归家仪式感,产品细节不输高端改善楼盘。

城发投·云尚效果图

☎️城发投·云尚 售楼中心电话:400-8787-098转分机号6688【已认证】

☎️城发投·云尚 营销中心电话:400-8787-098转分机号6688【已认证】

社区规划设计更是充分发挥景观优势,为每一户住宅呈现公园、水景视野,户户见景。紧邻公园的社区围墙以实体墙和格栅相间,消弥公园的边界感。社区绿化也以冠大浓荫的高大乔木为主,打造无限接近自然为主题的生活体验空间。

城发投·云尚效果图

☎️城发投·云尚 售楼中心电话:400-8787-098转分机号6688【已认证】

☎️城发投·云尚 营销中心电话:400-8787-098转分机号6688【已认证】

社区景观规划强调均好,景观会客厅,海洋主题儿童游乐场,中心阳光草坪、350米有氧跑道,专属女性的秘密花园……营造丰富的景观体验感和健康的生活交互方式。

城发投·云尚效果图

☎️城发投·云尚 售楼中心电话:400-8787-098转分机号6688【已认证】

☎️城发投·云尚 营销中心电话:400-8787-098转分机号6688【已认证】

由于历史原因,包括长安区西部在内的西北二环周边,一直缺乏高品质改善楼盘供应——不是产品太low,容积率动辄2.5以上甚至奔3,景观户型全面落伍;就是规模小,房企实力差,降标减配延期烂尾各种不靠谱。城发投·云尚以高品质低密准现房填补片区改善空白,必将引领小康之家居住品质和生活方式的全面升级。

NO.3|叁

户型一向是改善人群关注的焦点,不仅仅是从小房子换大房子,更体现在功能空间的丰富,以及对生活方式的引领。

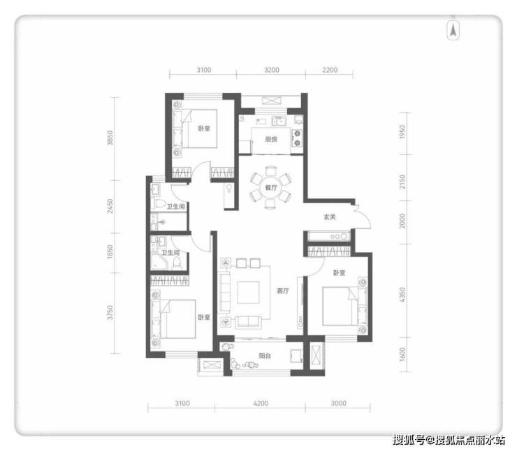
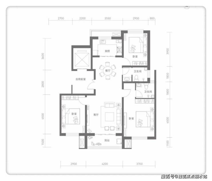
城发投·云尚主力户型分为建面约126㎡、129㎡、133㎡、143㎡四个面积段,全部为三室两厅两卫户型,圈层纯粹。户型南北通透,三面朝阳,双阳卧室,更有进深约1.5米阳台和私享电梯厅,从功能到尺度都当得起“改善”二字。

建面约129㎡户型图

☎️城发投·云尚 售楼中心电话:400-8787-098转分机号6688【已认证】

☎️城发投·云尚 营销中心电话:400-8787-098转分机号6688【已认证】

户型设计更是充分发挥景观优势,建面约129㎡户型客厅面宽4.2米,双阳卧室;建面约143㎡户型更将客厅面宽做到5.1米,景观视野开阔,尽显“都市浓荫住区”魅力。

LDK一体化设计,客餐厨南北贯通依次排开,打破家庭成员生活动线的隔阂感,空间融会贯通,又不互相干扰,以承载丰盛的生活场景。

建面约133㎡户型图

☎️城发投·云尚 售楼中心电话:400-8787-098转分机号6688【已认证】

☎️城发投·云尚 营销中心电话:400-8787-098转分机号6688【已认证】

新华区老旧小区多,单位宿舍多,这些房子统一的特点是卧室空间尺度适中,但客、餐厅空间不足,户型功能空间不够丰富。城发投·云尚的户型设计,正是在充分照顾目标人群居住习惯的基础上,全面进行了优化和提升,足见其对目标客群的深刻洞察和产品功力。

NO.4|肆

这原本是一个市场上升期可以踮起脚尖做豪宅的项目,城发投·云尚却宁可放低身段,将户型面积段控制在126㎡-143㎡之间,扎扎实实做改善,从地段到产品,让购房者一眼便知物超所值——行业调整期,购房者回归理性,也只有这样明显物超所值的产品,购房者才会毫不犹豫地用脚投票。

城发投·云尚效果图

☎️城发投·云尚 售楼中心电话:400-8787-098转分机号6688【已认证】

☎️城发投·云尚 营销中心电话:400-8787-098转分机号6688【已认证】

也正是它的出现,饥渴已久的西北二环改善市场,终于迎来了一个“全能型”改善楼盘。近两年,沉寂已久的新华楼市进入供应大年,可圈可点的楼盘接二连三,但这些楼盘集中在二环内,套价动辄200万起步,主力价位250万元左右,小康之家高攀不起。

城发投·云尚效果图

☎️城发投·云尚 售楼中心电话:400-8787-098转分机号6688【已认证】

☎️城发投·云尚 营销中心电话:400-8787-098转分机号6688【已认证】

而新华区因为企事业单位较多,恰恰是收入稳定的小康家庭基数庞大,这一点与东富西贵的裕华和桥西截然不同。就在城发投·云尚周边,友谊大街北二环附近,环布有联强、联盟、东三庄,天苑小区,丽都河畔,都市阳光等一大批房龄十几、二十年以上的大型老旧小区,同地段置换需求强劲。但从供应端来看,就像我们上文提到的,由于历史原因,西北二环沿线,一直缺少品质均好的靠谱楼盘供应。

城发投·云尚效果图

☎️城发投·云尚 售楼中心电话:400-8787-098转分机号6688【已认证】

☎️城发投·云尚 营销中心电话:400-8787-098转分机号6688【已认证】

千亿国企城发投开发的高品质都市浓荫住区,城发投·云尚以优越的自然生态景观、均好品质和封顶准现房,为改善人群提供了从品质到交付全面靠谱的选择。目前项目虽未输出价格,但综合各方信息来看,无论单价、套价这都将是一个对小康家庭十分友好的项目,物超所值。

——石家庄【城发投·云尚】——

☎️城发投·云尚 售楼中心电话:400-8787-098转分机号6688【已认证】

☎️城发投·云尚 营销中心电话:400-8787-098转分机号6688【已认证】

✨楼盘基本信息介绍,地址,户型,价格,位置,医疗教育,商业交通配套✨

✨开发商指定合作平台,全网预约通道!✨

✨案场预约制 看房需提前2小时来电预约登记✨

✨请务必致电与销售确认时间,仅预约客户可进入销售现场,避免空跑,感谢您的支持!✨

全部

相关资讯

报名成功
稍后会有专业的置业顾问联系您
返回楼盘

频道导航

返回首页

看房小程序

APP下载

电话拨通后,请您手动拨打分机号

确定拨打电话

电话号码:

分机号:(可能需要拨分机号)