首页@最新海信璟悦(营销中心)-海信璟悦售楼处电话_首页网站_内附图文解析_楼盘百科详情→24小时热销电话

丽水楼市

2025-10-16 19:47:38

购房群

买房如何避坑,加入购房群,看看他们怎么说

立即进群

海信璟悦售楼处电话:400-8787-098转分机号5678【售楼处位置】

海信璟悦售楼处电话:400-8787-098转分机号5678【营销中心】

海信璟悦楼盘详情4008787098-转分机号5678(房价,价格,地址,户型图,交通,周边配套,备案价,楼盘详情,售楼处电话,售楼处地址,最新房源,最新价格,最新动态,最新进展等详情)

海信·璟悦,海信地产张村河片区的第二个君悦系产品,依托张村河与金家岭山的自然基底,以新中式园林肌理,融汇现代简约建筑风格,打造海信在崂山片区的又一高端力作。

【项 目 概 况】

项目位置:崂山区张村河

总用地面积:约3.25万㎡

总建筑面积:约14.25万㎡

绿地率:约36%

楼层:16-17F小高层;25F中高层

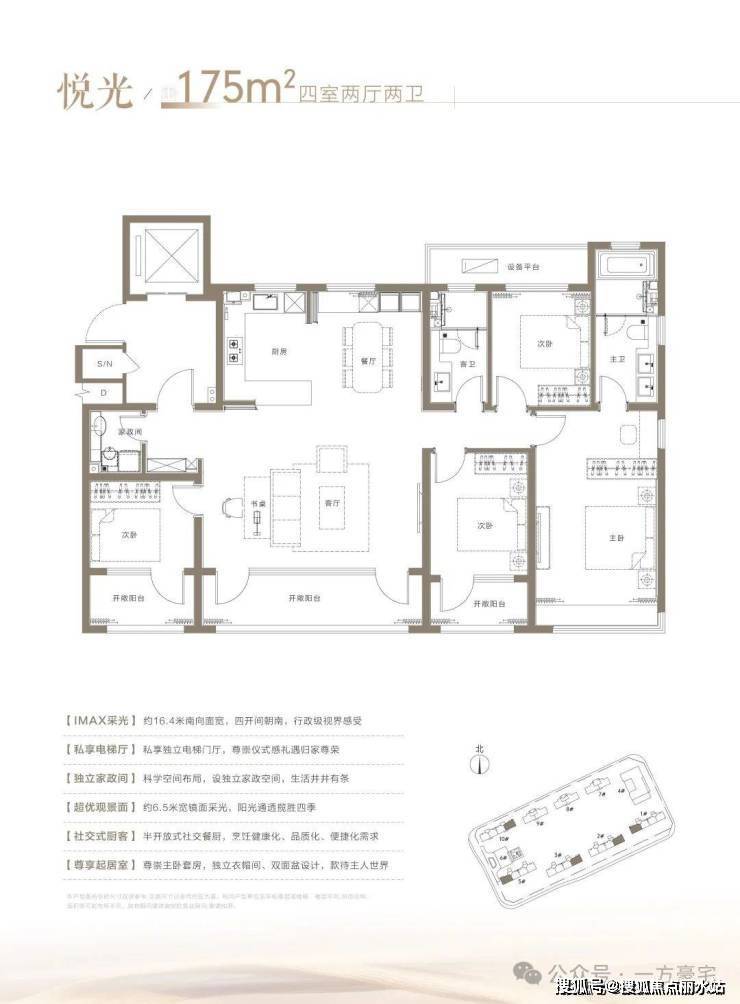
面积:约128㎡,142㎡,175㎡(小高层);198㎡,220㎡(中高层)

总户数:480户

开发商:青岛海信信邦置业有限公司

物业:海信睿海物业

公摊:约21%(未算赠送面积)加上赠送面积约12%

产权:70年

位置:时代张村河,未来水脉智城

1.优教环伺:

项目比邻张村河小学、9班制规划幼儿园、30班制规划中学,优享一站式配套教育。青科大、青大、青岛二中等环伺周边。

2.周边:万象汇商圈、宜家家居、万象汇、毗邻两所三甲级医院,青医附院崂山院区、山东中医药大学附属医院青岛院区(在建中已封顶,距离项目1.3公里,开车2分钟以内到达 )

四、【生态环境】

山河静谧资源,城市谧居臻享

项目对望瑶海路市政城市口袋公园,北侧比邻张村河生态长廊(200米距离),南侧1km金家岭山,山体公园内有特色文化园,景观廊架,植物科普园。东侧可抵达高尔夫球场与崂山风景区。

五、【交通出行】

1.地铁:

距离最近的科苑经七路站(四号线)约800米,距离青岛科大站(11号线)1300米

六、【外观】

流光高精铝板,际会理想峯境,勾勒独具现代感艺术的城市天际线。

七、【园林】

五进园中院 ,璟悦品臻景

项目采用围合式造园,打造1.5万方东方美学生活院落,以中式园林为引,采苏州“拙政园”灵感,东密西疏、移步易景,构建一条中心景观五进归家礼仪,三大会客厅,四大宅间生活美学体验区,九个主题游园,尊享体验归家动线。

八、【会所】

约4000㎡全龄式高定会所

项目营造下沉庭院、集中式运动会所、室内泳池、室内篮球场、羽毛球、普拉提、乒乓球、书吧、茶室、私享厨房、架空层活动区、棋牌休闲、室内儿童乐园等全龄生活场域,安放闲情逸趣,满足业主自用及招待亲友的需求。

九、【服务】

海信专属物业,真心守护全生命周期美好服务

十、【宽宅】

山河定制精妆美学大宅

南向IMAX极目面,打造阔境舒适体验,精研户型方正通透,光幕大横厅设计,为南向宽敞阳台打造广角瞰景视野;科学精研人性化空间布局,打造独立家政空间,系统门窗、悬浮马桶等高标准交付。

海信璟悦售楼处电话:400-8787-098转分机号5678【售楼处位置】

海信璟悦售楼处电话:400-8787-098转分机号5678【营销中心】

海信璟悦楼盘详情4008787098-转分机号5678(房价,价格,地址,户型图,交通,周边配套,备案价,楼盘详情,售楼处电话,售楼处地址,最新房源,最新价格,最新动态,最新进展等详情)

海信璟悦售楼处电话:400-8787-098转分机号5678【售楼处位置】

海信璟悦售楼处电话:400-8787-098转分机号5678【营销中心】

海信璟悦楼盘详情4008787098-转分机号5678(房价,价格,地址,户型图,交通,周边配套,备案价,楼盘详情,售楼处电话,售楼处地址,最新房源,最新价格,最新动态,最新进展等详情)

全部

相关资讯

报名成功
稍后会有专业的置业顾问联系您
返回楼盘

频道导航

返回首页

看房小程序

APP下载

电话拨通后,请您手动拨打分机号

确定拨打电话

电话号码:

分机号:(可能需要拨分机号)