二期加推!龙城大街,国企双学区,公园地铁配套,太原山钢铭著
售楼处电话:400-8787-098转分机号5678【售楼处位置】
售楼处电话:400-8787-098转分机号5678【营销中心】
楼盘详情4008787098-转分机号5678(房价,价格,地址,户型图,交通,周边配套,备案价,楼盘详情,售楼处电话,售楼处地址,最新房源,最新价格,最新动态,最新进展等详情)

太原龙城大街南侧的山钢铭著,二期产品来了!户型有82平到158平,五恒科技,四号楼和五号楼即将加推。小区紧邻龙城大街,龙城公园,周边有万达广场,地铁二号线,山西大医院。小区签约了三十八中龙城校区,九年一贯制,已经开学了。对这个项目感兴趣的朋友,抓紧约我看房,内部团购价更划算。售楼处电话400-8787-098接通后输入5678【营销中心】
【山钢铭著二期】
🏆开发商:山西莱钢绿建置业有限公司
🏣楼层状况:
4号楼总高8层 ,一梯两户;
5号楼总高25层,两梯四户。

👉装修标准:精装修交付
🚪户型:建筑面积约82-158平米
🌟产权年限:70年
🎩物业公司:山东信莱物业管理有限公司太原分公司
🏅国企巨著,实力保障。
5号楼,总高25层 。

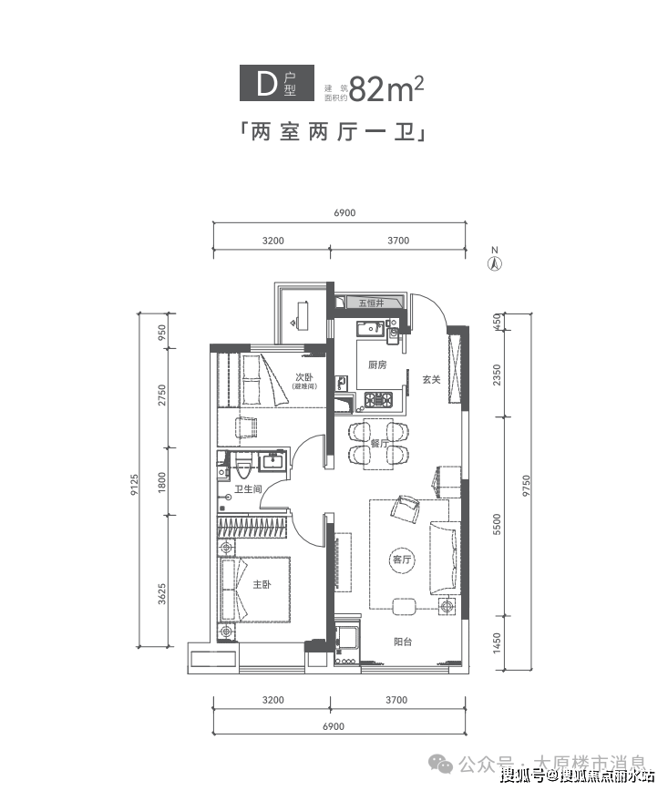
82平,13000-14000,50套。
「精致美居」方正精巧两居,雕琢温馨小筑之美,满溢雅致韵味。
「餐客一体」餐客相融设计,休闲餐饮自在天地,舒适触手可及。
「动静分离」生活空间精心规划,动静区域泾渭分明,起居有序。
「飘窗主卧」主卧飘窗点缀,诗意美景四季更迭,浪漫如影随形。
「U 型厨房」U 型厨房构造,演绎三餐精彩烹饪,时光满是乐趣。

115平,13600-14500,50套。
「方正阔居」方正三居,重新定义居家舒适体验,尽享疏阔格局。
「餐客联袂」餐客厅一脉相连,空间流畅无阻,彰显大家风范。
「全明光照」三室向阳而设,阳光肆意洒落,温暖时刻相伴左右。
「无界阳台」通景阳台,客厅与卧室无缝对接,拓宽视觉享受。
「主卧尊享」主卧套房配备步入式衣帽间,尊贵私密,自在私享。

二期加推!龙城大街,国企双学区,公园地铁配套,太原山钢铭著
售楼处电话:400-8787-098转分机号5678【售楼处位置】
售楼处电话:400-8787-098转分机号5678【营销中心】
楼盘详情4008787098-转分机号5678(房价,价格,地址,户型图,交通,周边配套,备案价,楼盘详情,售楼处电话,售楼处地址,最新房源,最新价格,最新动态,最新进展等详情)