
NO.1 天选长江
全球最美长江C位 一眼武汉三千年
武昌滨江,长江烫金1公里,长江最美风景C位,一眼看遍武汉的“昨天、今天与明天”。遍观武汉,此为独一无二,唯此一份。
◉尽揽“过去”的江 | 坐观两江四岸口,尽揽长江大桥,龟山电视塔,晴川阁等地标,是世界看武汉的第一眼。
◉对望“现在”的江 | 对望汉口百年江滩、万国历史建筑群,是100年来这座城市最有价值的珍藏。
◉坐观“未来”的江 | 俯瞰明珠豪生酒店、马哥孛罗、外滩7号、武汉天地滨江建筑群等,倾赏这座城市最美最贵的城市天际线。

NO.2 天元地段
中国天元 武昌内环滨江
中国版图对折,中心是武汉,因此自古就有“群首武汉,中国天元”之称;武汉版图对折,中心是武昌内环滨江,因此武昌滨江是当之无愧的武汉天元;武昌滨江核心为长江大桥与二桥之间,此段版图对折,中心正是联投长江天元,因此联投长江天元位列中国天元正心之位,地段唯一无法复刻。

NO.3 天赋区域
武汉板块价值TOP1 极萃城市资源配套
武昌滨江是武汉地域面积最大、江岸线最长的城市滨江板块,空间资源及景观资源尤为丰富。相较于二七滨江交通只有一条轻轨1号线,商业仅有壹方北馆,高端商务商办缺失的情况,武昌滨江在总部经济、高端商业、交
【世界500强企业总部地标 经济金融发展新名片】
阿里巴巴华中总部、长江电力、长江沿岸铁路集团总部、劲牌总部大厦、绿地606、华电华中总部等汇集于此,是武汉面向世界的城市名片。

【武汉板块价值高地 高奢商业配套荟萃】
近邻万象城、SKP、龙湖天街、武汉首家旗舰店京东MALL等商业体,近揽徐东,汉街以及中南等旗舰商圈。

【3桥2隧4地铁1枢纽 综合交通枢纽全域TOD】
长江大桥、二桥、沙湖大桥;长江隧道、公铁隧道;2/5/7/8号线4条地铁;临江大道、和平大道及武昌滨江地下空间环路枢纽勾勒城市交通骨架。
NO.4 天工项目
对标香港天玺 引领武汉下一个20年
九龙站上3大豪宅,唯独天玺封榜亚洲豪宅地标。联投长江天元,借鉴香港天玺1:1规划方式,打造5万方四代江景豪宅 +35万方世界500强企业总部+8千方立体花园式潮奢商业街,缔造武汉地标综合体,“封榜”武汉豪宅。
【长江电力全球总部 超级城市地标综合体】
35万方地标综合体,专为长江电力集团定向开发的办公楼,建成后将作为长江电力全球总部。长江电力是世界上最大的水电上市公司。全球前12大水电站,有5座在它手里。未来,不仅是城市地标,也将成为滨江天际线封面。

【立体花园式潮奢商业街 城市高奢会客厅】
对标上海鸿寿坊,将社交商街与户外空间、无界江景连接,打造城市立体花园,构筑武汉全新高奢城市界面。
8000平立体花园式潮奢商业街,自运营打造,将引入奢潮品牌快闪店,多元网红餐厅首店汇集地,营造“度假松弛感”超奢商街体验。


40万方极核体 武昌滨江四代性能豪宅
根据武自然资规发〔2024〕6号文件,以超高得房率的四代住宅规划,加上一线临江视野无遮挡的设计,打造武昌滨江首个四代性能硬核豪宅,为武汉少有滨江豪宅藏品。 3栋一线临江大平层,建面约130-240㎡,2梯2户/3梯3户,至此武汉豪宅分水岭。
【6大豪宅标准 分岭武汉豪宅】
① 极致江景资源:
一线看江无遮挡 观江奢华化
武昌滨江,贵在一线看江无遮挡。全一线临江楼栋,直面浩瀚江景及两江交汇的繁华城色。

② 极致立面美学:
全公建化外立面 立面美学化
“直线属于人类,曲线属于上帝”。以“江水引向天空”流线型弧线,香槟色铝板、大玻璃面,呈现奢华美学的超流体建筑立面,谱写城市地标的奢华感受。

③ 极致门户设计:
同源战斗机形态 门户尊崇化
同源战斗机形态及国际豪华酒店式落客区打造社区门户,高门之处自成边界,尽释长江门户的尊崇体验。

④ 极致社交空间:
泛会所式架空层 空间会所化
全楼栋泛会所式架空层设计,借鉴奢豪酒店风格,打造健身领地、亲子游园、会客厅等场域,豪宅的社交奢享。

⑤ 极致园林景观:
世界艺术家灵感设计 园林艺术化
汲取美国艺术家具运动之父温德尔·卡斯特、法国著名画家亨利·卢梭、世界著名设计师丹尼·洛讷 等5位世界艺术家的设计灵感,营造“五重空间序列,六大情景区”的超大浮岛园林,让园林美学与功能再度升级,创享更进阶的四代住宅生活体验。

⑥ 极致户型设计:
四代性能豪宅 户型极致化
四代住宅户型极致化设计,实现城市景观视野与内部空间相融,以超高得房率,营造更纯粹居住生活。
NO.4 天匠品牌
湖北省实力国企
匠造城市封面超级地标综合体
湖北联投集团
湖北省属大型国有控股公司,总资产规模达3800亿
中国企业500强211位、中国服务企业500强73位
湖北省首家营收破千亿的国企
入围国务院国资委“双百企业”
联投置业
位列“中国房地产百强企业第29位”,荣获“2024中国房企交付力”和“2024中国房地产客户满意度服务优秀企业”TOP5,用国企实力创建人居标杆。加入国际金钥匙物业服务,全球化物业管家及高端服务,创造有品质的居住服务。
柠月乐龄中心超级旗舰店
柠月乐龄中心超级旗舰店,作为“新生活康养活力综合体”,以乐养为本,焕新“运动+健康”相融的柠月服务体系,打造极致体验型全龄康养服务配套空间集合体。以健康管理、运动规划、养生疗愈形成服务支柱,配备低压氧舱、黑科技人体气场仪检测健康管理等项目,闭环高净值人群健康管理服务。
✬户型解析
◎【天宸】
建面约240㎡ 4房2厅3卫
◎【天启】
建面约180㎡ 4房2厅3卫
◎【天穹】
建面约170㎡ 4房2厅2卫
◎【天樾】
建面约140㎡ 4房2厅2卫
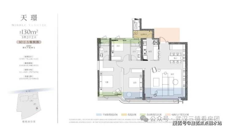
◎【天璟】
建面约130㎡ 3房2厅2卫
基础信息
【项目规划】滨江综合体
【建筑面积】40万方
【项目业态】5A甲级写字楼、星级酒店、精品商业、江景住宅
【在售产品】建面约130-240㎡驭江大平层
【住宅容积】4.88
【住宅套数】277套
【住宅梯户比】两梯两户/三梯三户
【住宅产权】70年
【企业背景】武汉联投置业有限公司
【社区物业】武汉联投物业有限公司