✅武汉德信江宸
✅售楼处电话:400-8787-098接通后输入5555【营销中心电话】
✅温馨提示:拨打400-8787-098电话,听到嘀声后,输入分机号5555即可。
✅网上售楼中心〢尊享售楼处优惠服务〢欢迎来电咨询预约案场内部销售人员〢
✅楼盘项目全面介绍,包含楼盘简介、售楼电话、小区图片、区位优势、交通、周边商业配套、户型图等楼盘详情
德信江宸最新动态:一期高层全部推出,主推8号楼建面约95-109平高层房源,总高34层,两梯四户,送贝壳团装,折后单价9400-10500元/平。
小高层9号楼建面约112-125平,送贝壳团装,单价11000-12000元/平,总高11层,一梯两户。预计6月底交房。

项目优势分析:
1、地铁口,直达汉阳核心!项目距离地铁16号线仅约300多米,步行距离很轻松,16号线可以与6号线换乘,直达汉阳、汉口核心,公共交通出行很便利。
2、近江城大道、在建左岸大道,交通出行便利!小区距离江城大道仅1.2公里,自驾通过江城大道可以快速到达经开核心产业区以及汉阳核心,项目东侧在建左岸大道,连接汉阳三环内和小军山,建成后,交通出行将更为便利。
3、400米临江,景观资源不错!小区与长江江滩的直线距离约400米,非常之近,高楼层可以南向看江,景观资源不错,在项目与长江之间还规划有江滩公园,未来生态环境也不错。
4、准现房,今年交付,无需等待太久!项目预计最早24年5月底交付,目前一期均已封顶,大部分楼栋外立面已做好,正在进行内部装修,小区园林也在同步施工,顺利的话,今年就能交付。
5、综合性价比不错!与区域内在售项目相比,小区的单价不算高,但距离地铁近,自驾方便,与周边小区比,品质较高,对于周边上班的人来说,性价比还不错。
项目总用地面积约5.1万方,总建面约17.2万方,计容建筑面积约12.8万方,住宅建筑面积约12.2万方,住户总户数约1130户。共有1530个车位,项目容积率约2.5,绿地率约35%。

项目地址:沌口路181号(原汉阳造纸厂)
开发商:武汉德信之光置业有限公司
物业:阳光城物业服务有限公司武汉分公司
产品类型:住宅
产权年限:70年
物业费:2.8元/平米/月
水费:民水
电费:民电
交房时间:2024年5月30日
交房标准:送贝壳团装精装(原交付毛坯)
在售情况:95-109-112-126㎡
均价:19400-12000元/㎡

建面约95平 三房两厅两卫
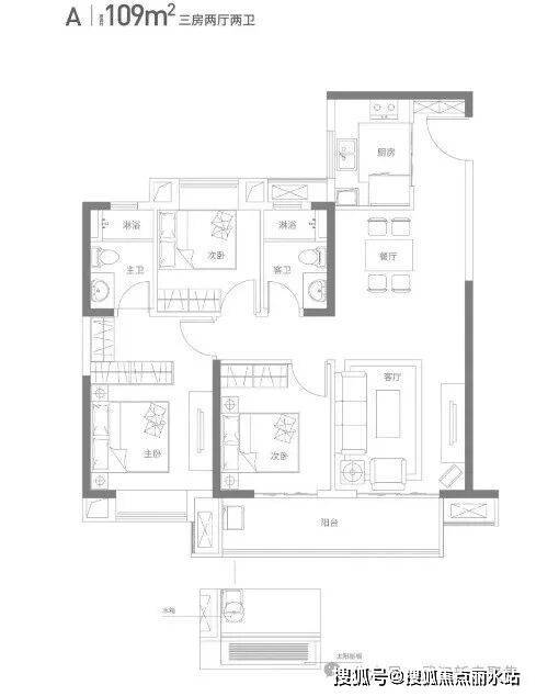
建面约109平 三房两厅两卫
建面约125平 四房两厅两卫:边户,南北通透,四开间朝南,三面采光,主卧独立卫浴,南北双阳台且南向双联阳台。
建面约112平 三房两厅两卫:边户,南北通透,三开间朝南,三个房间分开布局,且主卧独立卫浴,南北双阳台。
样板间实景图:
区位:
德信江宸位于沌口路181号(原汉阳造纸厂),在楼市划分中属于经开万家湖板块,也叫沌口南板块,行政划分属于经开区,距离三环线约4.8公里,属于三环外。
项目区位图
经开区曾经常年武汉GDP老大,近两年虽然被东湖高新区抢了风头,但以前还是第二,虽然在三环外,但却是武汉市产业最发达的区域,区域的经济实力、配套兑现速度,以及人口稳定度还是相当强的。
交通出行:
自驾:项目附近有沌口路和江城大道,沌口路可以直达三环线,进入汉阳三环内核心区,也可上三环线到武昌、光谷方向。江城大道也可以连接三环线,且连接了汉阳四新和汉口核心,并与杨四港快速路相衔接,是一条非常穿越汉阳、汉口核心的快速通道。
而沌口路与车城东路相衔接,直达经开核心区。
地铁与公交:小区距离地铁16号线沌口站约300多米,非常近,16号线往北2站路就可以与6号线换乘,直达经开核心、汉阳滨江、钟家村、汉口江汉路等核心区。
配套:
商业上,项目附近有一些相对成熟的商业,比如中百超市、药店、粮油店、餐饮等,可以满足日常生活所需,小区自身规划了少量社区商业。
大型商业方面,有永旺梦乐城经开店以及万达广场经开店,与小区相距约5公里左右,自驾路线比较简单,约15分钟左右就可以达到。
教育上,项目自带一所幼儿园,距离区域内的沌口小学直线距离约1.2公里,距离开发区第二初级中学直线距离约2公里,另外,区域内还有私立学校武汉经开外国语学校(从小学到高中)。
医疗上,区域内有协和医院车谷院区、武汉儿童医院西院区和亚心总医院。自驾过去都在20分钟以内,很方便。
休闲娱乐上,项目距离长江仅400米,与长江之间规划了江滩公园,建成后下楼即可逛江滩公园,北面约600米就是万家湖,西面约3.2公里是汤湖公园,自驾过去也比较方便。
项目效果图和实景图:
✅武汉德信江宸
✅售楼处电话:400-8787-098接通后输入5555【营销中心电话】
✅温馨提示:拨打400-8787-098电话,听到嘀声后,输入分机号5555即可。
✅网上售楼中心〢尊享售楼处优惠服务〢欢迎来电咨询预约案场内部销售人员〢
✅楼盘项目全面介绍,包含楼盘简介、售楼电话、小区图片、区位优势、交通、周边商业配套、户型图等楼盘详情