武汉城建·承宁府售楼处电话:400-8787-098转分机号5678【售楼处位置】
武汉城建·承宁府售楼处电话:400-8787-098转分机号5678【营销中心】
武汉城建·承宁府楼盘详情4008787098-转分机号5678(房价,价格,地址,户型图,交通,周边配套,备案价,楼盘详情,售楼处电话,售楼处地址,最新房源,最新价格,最新动态,最新进展等详情)
武汉城建承宁府是武汉城建&硚口区国资在2024年12月20日竞得的P(2024)182号地块,成交总价121900万元,楼面价约15030.8元/m²。开发商武汉市硚口区利北城市更新投资有限公司由武汉城市更新投资有限公司(武汉城建)占股70%,武汉市硚口城市更新发展(硚口区国资)有限公司占股30%。
项目基础信息
project basic information
01
【开 发 商】:武汉市硚口区利北城市更新投资有限公司
【项目区位】:武汉硚口区武胜路与京汉大道交汇处
【面 积】:建面约115㎡、125m²、143m²、169㎡
【楼 层】:6~32 层洋房、小高层
【装 修】:精装修
【产 权】:70 年
【梯 户 比】:2 梯 2 户
【容 积 率】:约 2.5
【车位配比】:1:1.09
【得 房 率】:约98% 左右
【地 铁】:轻轨一号线利济北路站
【教 育】:体育馆小学、武汉市第六十四中学
【医 疗】:武汉市第一医院、武汉市第四医院


根据规划方案显示,武汉城建承宁府占地面积约3.24万平,总建面约11.2万平,住宅建面约7.4万平,容积率约2.5,共计546套房源,共计593个机动车位,车位配比约1:1.09。项目总计 7 栋住宅,预计2025年9月中旬首次开盘1号楼115-125m²带装修房源,共76套,装修标准4000元/m²,1号楼共21层,2梯2户。预计2025年10月加推7号楼125-143m²带装修房源,7号楼共108套。7号楼共28层,2梯2户。目前承宁府置业顾问透露放风价是30000元/m²,带4000元/m²的装修标准。
户型赏析
Housing Units
02
拾 光丨115m² 三房两厅两卫
该户型位于1号楼的两端边户,3个卧室朝南,餐客厅一体全景舱设计,客厅为北、西(或东)两面采光,带独立电梯前室。三房设计满足家庭居住需求,双卫(公卫、主卧卫 )提升使用便利性,避免早晚洗漱等场景拥挤;厨房靠近入户,方便买菜归家后放置物品、处理食材;设设备平台,可灵活利用,如放置外机等,不占用室内空间。有玄关过渡空间,保障室内隐私,也可做收纳;卧室带一定收纳空间提升储物能力,让居住更整洁。
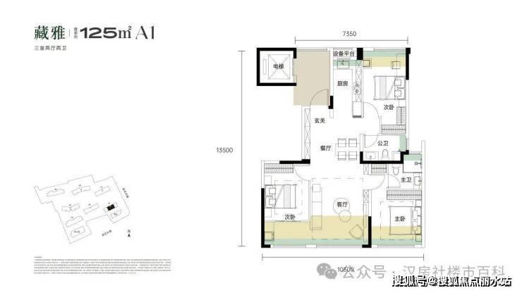
藏 雅丨125m² 三房两厅两卫
该户型位于1号楼的单元拼接处夹边户,独立电梯厅入户,4个主要空间均带阳台+花池优化面积。客餐厅一体化,衔接厨房,形成连贯开阔的公共活动区,增强空间通透感,方便家人交流互动,宴请宾客时也更显大气 。卧室等休息区与客餐厅、厨房等活动区相对分离,休息时受干扰小,保障居住私密性与静谧性 。多空间有采光面,利于自然光线引入,让室内明亮;户型布局相对规整,空气流通路径顺畅,通风效果较好,能保持室内空气清新。
小编评价:两个户型都做到了独立电梯厅入户,且功能性布局都很齐全,不过 115m²户型数量较少,仅有 1 号楼21 层的两端户是该户型,上车门槛比较低。全屋的优化赠送面积比较多,得房率高。
公区配套环境展示
府进制 隐逸园
四进归家,府藏乾坤:
· 恢弘门庭形制: 约90米门庭景墙,酒店式环岛落客区,媲美国宾礼遇
· 国风归家礼序: 礼承东方世家行列式布局,享无界视野,寓意藏风聚气、福泽绵长
· 全维空间雅境: 地面全楼栋连廊覆盖、地下中央车站归家系统,步履所至皆成诗行
· 全明私梯入户: 区域首创全明电梯厅,独梯入户尊享私密,缔造府邸级入户仪式

人文境 聚圈层
独创会所,高知圈层的社交领地
区域首个下沉式会所,内设顶级私宴厅、标准泳池、健身房、瑜伽室,以东方禅意为魂,打造繁华深处的隐世之地,将生活艺术升华至全新境界。


售楼处电话:400-8787-098转分机号5678【售楼处位置】
售楼处电话:400-8787-098转分机号5678【营销中心】
楼盘详情4008787098-转分机号5678(房价,价格,地址,户型图,交通,周边配套,备案价,楼盘详情,售楼处电话,售楼处地址,最新房源,最新价格,最新动态,最新进展等详情)