首页@最新武汉汉阳澍(营销中心)-汉阳澍售楼处电话_首页网站_内附图文解析_楼盘百科详情→24小时热销电话

丽水楼市

2025-08-15 21:53:38

购房群

买房如何避坑,加入购房群,看看他们怎么说

立即进群

☎️武汉汉阳澍售楼处电话400-8787-098转接输入7777销售(已认证)

➢➢预约参观热线400-8787-098转接输入7777【售楼中心】

➢➢温馨提示——拨打400电话——听到嘀声后——输入分机号7777即可通话

➢➢楼盘基本信息介绍,地址,户型,价格,位置,医疗教育,商业交通配套

➢➢网上售楼中心—匠心钜制-恭迎品鉴-欢迎来电咨询-预约一对一讲解-请提前联系售楼处销售进行登记

免责声明:本文如无意中侵犯了某方的知识产权,告之即删

汉阳·澍

杨泗港快速通道边的项目,正2.5环,在四新的环线地段还不错,并且体量也比较大,共规划有10栋住宅,1401套房源。

最新动态:已于8月9日正式开盘,推出1号楼建面约87-122平米户型,得房率全部超100%,毛坯销售,成交均价约12500元/平,186套房源开盘售罄,当晚紧急加推2号楼,开盘优惠延续一周。

汉阳澍的户型产品也是一大亮点,宣传所有户型优化后的得房率都超100%,在汉阳绝对是独一份的。

并且最小87平,最大122平,开盘成交均价12500元/平也是目前四新板块最低的四代宅,单价低、总价门槛低,对于刚需来说十分友好。

建面约87平米三房两卫户型

87平做到了三房两卫,功能性是值得肯定的,并且面积小也意味着总价更低,约100万起,首付仅需15万起;

建面约94-95平户型

中间户,也是三开间朝南,南向面宽约11.5米,更大一些;

除开开间约3.4米的主卧,开间约3米的南向次卧,客厅开间还有约5.1米,三房+大横厅可以同时存在,比87平户型的尺寸更加开阔,如果有需要,也可以加一张开放式书桌,改造为3+1房;主卧面积约18.9平;餐厅外面还带阳台,南北双阳台设计,晾晒跟景观功能可以分开,舒适度更高。

建面约98平米三房户型

跟上面95平户型布局大体类似,南向开间、客厅面宽尺寸都一样,其他空间布局也差不多,区别在于进门处增加了入户玄关,整体私密性有所增加。

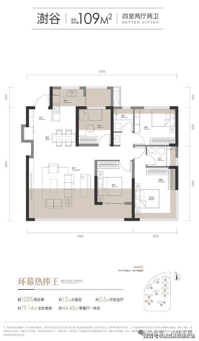
建面约109平米四房户型

109平就做成了四房两卫,不得不说,功能性真的非常强。

进门同样带S墙,南向面宽约12米,比前面几个户型更大一些;主卧开间3.5米,客厅+南向次卧开间约8.5米,其中次卧开间约3米,客厅开间约5.5米,尺寸还可以,后期甚至还可以改造为4+1房。

建面约122平三房户型

南向面宽约14.4米,这个尺寸相当开阔,一般市场上至少也要140平以上户型才能见到;

主卧开间3.6米,面积约21平,尺度更为开阔;南向次卧开间3米,符合传统主卧尺寸布局,并且南向次卧也是套房设计;

客厅开间7.8米,可以保留大横厅设计,也可以改造为客厅+房间,如果房间布局3米开间,客厅还有约4.7米开间,也有横厅既视感;

进门有玄关设计,私密性增强,玄关后还开辟了专门的储藏室,利于收纳;餐厅部分空间也很大。

项目航拍已上线,点击下图查看

大家在乎的教育这块,项目附近有弘桥小学金桥校区,墨水湖小学东校区,晴川英才学校,墨水湖中学,以及拦江堤中学。

另外项目西侧的观澜国际北侧有一块规划的中学用地

据官方信息显示,这一学校有引入三寄宿中学分校或校区的意向。预计2027年开学。

这一中学紧挨着汉阳·澍,建成之后汉阳·澍对口的可能性极大

☎️武汉汉阳澍售楼处电话400-8787-098转接输入7777销售(已认证)

➢➢预约参观热线400-8787-098转接输入7777【售楼中心】

➢➢温馨提示——拨打400电话——听到嘀声后——输入分机号7777即可通话

➢➢楼盘基本信息介绍,地址,户型,价格,位置,医疗教育,商业交通配套

➢➢网上售楼中心—匠心钜制-恭迎品鉴-欢迎来电咨询-预约一对一讲解-请提前联系售楼处销售进行登记

免责声明:本文如无意中侵犯了某方的知识产权,告之即删

全部

相关资讯

报名成功
稍后会有专业的置业顾问联系您
返回楼盘

频道导航

返回首页

看房小程序

APP下载

电话拨通后,请您手动拨打分机号

确定拨打电话

电话号码:

分机号:(可能需要拨分机号)