【幸福城】清盘倒计时!石家庄【幸福城】售楼部—2025最新资讯—400VIP预约专线—楼盘详解—楼盘百科

丽水楼市

2025-08-05 22:59:00

购房群

买房如何避坑,加入购房群,看看他们怎么说

立即进群

~~~石家庄幸福城~~~

🌈石家庄【幸福城】:400-8787-098接通后输入6789【售楼处电话】

🌈石家庄【幸福城】:400-8787-098接通后输入6789【售楼处电话】

温馨提示:网上售楼中心〢欢迎来电咨询〢安全通话隐藏真实号码〢

来电咨询最新售楼处地址,专属置业顾问详解,请提前联系售楼处销售进行预约登记

★项目概况:

【项目名称】幸福城

【项目地址】桥西区新华路车管所西行200米

【售楼处地址】桥西区新华西路车管所对面

【开发商名称】河北百顺基业房地产开发有限公司

【楼盘价格】

B、E区现房单价15000/㎡左右

剩余面积:88㎡、120㎡

D区期房

2号楼11317~11900元毛坯交房

1号楼11800~12000元毛坯交房

3号楼12500~13000元精装修赠地下室

4号楼13000~13500元精装修赠地下室

✅【在售楼栋+面积】

4#楼,面积:88.66-129.89㎡

2#楼,面积:72/88/89/118㎡

1#楼,面积:85/88/93/116㎡

3#楼,面积:88/89/103/129㎡

【产品类型】

B、E区25层到顶(现房)

D区18层到顶小高层(期房)

✅【认购方式】定金:3万5抵5万,限购,限贷,首付3成(本地首套30%,二套首套还清40%,未还清50%,三套必须一次性。外地限购一套,须有三年内连续缴纳两年养老保险或纳税证明)

✅【贷款】全款、商贷、公积金(可用省直、市直、铁路、部队)可以组合贷

【交房时间】B、E区现房,D区 2023年10月底

【交房标准】D1#、2#楼毛坯,D3#、4#楼精装修

【容积率】B、E3.0,D区1.98

【绿化率】50%

【公摊】现房公摊23%,期房23%-29%

【产权】70年

【物业公司】开发商自持物业(幸福物业)

【物业费】现房1.6元、期房1.95

【地下室】1:1(绑定,精装送地下室)

【车位】1:0.7(不绑定 )

🛣【层高】单层层高2.95米,18层到顶

🏘【楼间距】58-123米

❎【施工进度】

现房(贷款通过即可交钥匙)

期房(封顶)

【项目配套】:

1.交通:(公交:9路、11路、15路、314路、61路至车管所下车西行即到幸福城)地铁5分钟即可到达1号线西王站

2.教育:金色摇篮幼儿园、友谊大街小学和幼儿园(已投入使用3年),联邦一中,四十一中(原36中☞片内),一站式教育

3.医疗:医院武警医院、第八医院、第六医院,妇幼保健医院

4.商业:综合商场北国超市、保龙仓超市、东明家具城、桥西蔬菜批发市场

5.银行:等银行/ATM工行、商行、农行邮局/快递中国邮政(大郭村分厅)

6.环境:秀水公园、植物园

【项目卖点提炼】:

1、北接和平路,东临西二环,项目四面环路,交通便利

2、周边有多个超市,成熟社区,配套完善,满足您的日常生活所需

3、精装修房,方便快捷,免去了装修的烦恼,也节省了装修的时间。精装入户大堂,给予业主归家的最高礼遇;

4、超大楼间距123米,通风采光效果好;18层小高层,得房率高

5、教育配套成熟,自建幼儿园和小学近在咫尺,不出小区范围享有全年龄段教育:友谊大街小学,八一小学,国际双语幼儿园,41中分校

D区3号楼户型图

D区期房4号楼户型图带装修

D4两梯三户,三室两厅二卫,约129平米《上图》

D4两梯三户,两室两厅一卫,约88平米《上图》

D4两梯三户,两室两厅一卫,约90平米《上图》

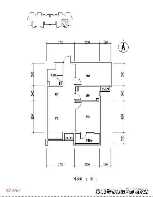
D区2号楼户型图毛坯

~~~石家庄幸福城~~~

🌈石家庄【幸福城】:400-8787-098接通后输入6789【售楼处电话】

🌈石家庄【幸福城】:400-8787-098接通后输入6789【售楼处电话】

温馨提示:网上售楼中心〢欢迎来电咨询〢安全通话隐藏真实号码〢

来电咨询最新售楼处地址,专属置业顾问详解,请提前联系售楼处销售进行预约登记

全部

相关资讯

报名成功
稍后会有专业的置业顾问联系您
返回楼盘

频道导航

返回首页

看房小程序

APP下载

电话拨通后,请您手动拨打分机号

确定拨打电话

电话号码:

分机号:(可能需要拨分机号)