明华誉港城售楼处电话400-8787-098转接7788【营销中心】✅✅
☎☎【售楼中心】400-8787-098转接7788☎☎✅
☎☎【售楼中心】400-8787-098转接7788☎☎✅
明华誉港城售楼中心___欢迎来电咨询丨专业一对一热情服务丨✅✅
纵观杭州,有两条发展轴,从西湖时代走向钱江时代的轴,以及以钱江为依托的拥江发展轴。亚奥城视界超高层就位于这两个轴线的焦点上,是拥江发展和走向钱塘江时代的制高点,也是璀璨光轴的亚奥门户,将为这座极具想象力的城市带来蓬勃的生命力。
▌杭州亚运村宣传视屏这条恢弘的钱塘江不仅承载了历史的积淀与荣耀,更肩负未来发展的重责,它既是城市精神的象征,更是城市靓丽的面孔。
这里星垂平原阔,月涌大江流,它是杭州城市地标建筑的精神性源头。作为钱塘江畔亚奥板块前沿阵地,亚奥城与杭州共鉴时代进阶,启幕未来盛世华章。
一条机场高速,快速抵达萧山国际机场;新钱江二桥、钱江三桥,两座跨江大桥连接钱江两岸;庆春路隧道、博奥路隧道与地铁2号线、地铁6号线等地铁线路共同组成多维立体交通网,畅达全城连接世界,这一次,在亚奥板块,让时间追逐人的足迹。
萧山之眼、奥体之芯,在杭州大湾区、拥江发展战略、亚运会三大利好助力下,未来发展潜力无限。项目紧邻莲花碗体育馆、国际博览中心、亚运村商业:周边坐拥三大城市地标:奥体中心、国际博览城、大莲花碗4大综合体:SKP、奥体印象城、钱江印、钱江世纪城公园商业;市公园:钱江世纪城公园、樱花跑道;
亚奥时代,“奥体-世纪城”板块是未来的杭州“陆家嘴”。明华誉港城位于杭州钱江世纪城核心,占据了这个时代的城市至高点,精研大平层产品,以钱塘江星河畔,闪耀三叶恒星的灵感来源,勾勒出当代共鸣的地标生活,形成杭城轴心、时代的风云人物,献上更具国际感和潮流感的生活范本。
项目自带配套设施十分完善,包括会所、恒温泳池和健身房,业主可以在这些设施中享受高品质的健康生活。同时,三面全景落地玻璃设计可以让居民尽情欣赏城市的美景,感受城市的魅力。


明华誉港城大平层项目是杭州奥体板块的一座高端住宅项目,为业主提供高品质的生活和服务。项目火热销售中,届时将成为杭州房市的一大亮点。
园区采用“围合式”布局,融合“钱塘江”水韵灵感,映衬周围自然生态,配合全冠移植的特色名贵树种,营造出环景畅谈式“艺术公园”。精细规划生活配套,以“私家会所”标准打造。内置室内恒温泳池、私人健身会所等多功能奢华空间。
室内设计大师力作 鼎配云端艺术生活SLD梁志天先生、I.I.D.L郑仕樑先生两大全球TOP级设计大师天团亲自执笔,融汇潮流审美与先进的居住理念,联袂匠作超越时代的美学作品,钜献与世界对语的艺术品味与生活方式。
全球前50位顶尖设计师之一,连续三次荣膺室内设计奥斯卡奖室内设计上,采用LDK一体化设计,带来极具阔正的空间尺度,并以大面米灰、暖灰为主基调,营造出高级优雅的氛围感,同时通过吊灯、艺术玻璃、酒柜等软装艺术作点缀,将艺术与生活融合,简奢中透出时尚前卫,营造出私密、温暖、现代化、国际化及独特的鼎级舒居体验。
白色的岩板与桃木背景墙让人联想到枫丹白露宫殿的动人秋天。打造生活中的高级感不需要繁琐复杂的浮夸装饰,而是要在空间之内做减法。深色与浅色的交叠呼应之间,让曲线与直线共同构建空间的秩序,匹配房间整体弧形外观,打造内部张弛有度、流畅自如的线条感。

开放的客餐厅打破桎梏,餐桌选择了金属与石材结合的独特设计。在完美的采光环境下,让每一次品尝美食的过程也充满仪式感。水纹座椅呼应房间临江主题,让浮动的波纹化为稳固的装饰,承托住和家人一起分享的美好回忆。



作为与房间主人最紧密链接的空间,主卧设计对于展现其品位、格调、审美等多样精致需求的标准更为具象。真皮包裹的墙面让房间内部的光线变得沉稳而内敛。便是其拥有的全套房设计,并且都带有独立的生活空间,包括主卫及个人衣帽间。保证了家庭成员适合的交流尺度,进可以全家交流,退可以互不干扰。

主卧衣帽间与书房通铺深色实木地板,为整个空间奠定了静谧的色感,营造一种回归纯粹与本真的氛围。次卧往往可以体现更广阔的生活理念,在与整体设计风格和谐一致的基础上跳出主卧的氛围 ,提供一个不一样的情感空间。时光在这里好像变得绵长,缓慢也表现出隐秘而深邃的价值。
所有的东西都是精装的,包括中央空调,户式中央空调等等。对于家庭来讲,这种生活品质将会大大提升他们的生活享受,实际上和独栋别墅是一致的生活享受。主卧衣帽间与书房通铺深色实木地板,为整个空间奠定了静谧的色感,营造一种回归纯粹与本真的氛围。


●寰幕视野:每户270°超大环幕视野,带来IMAX般观景效果,打造空间的光瀑体验;
●阔绰层高:约3.95米奢阔层高,厚载一城荣耀,匹配高净值人士的气度与胸襟。
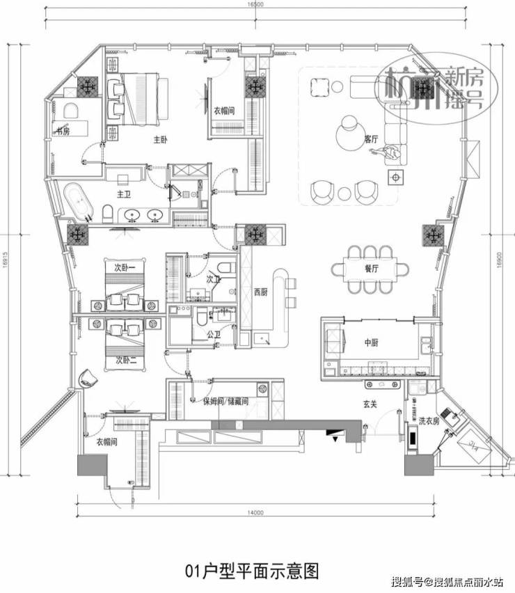
户型图
ENTER TITLE
精装意向空间:
甄选GAGGENAU、Dornbracht、LAUFEN、kaldewei等全球尖端品牌,品质匠奢样板,荟聚鎏金艺术,领驭时代审美,重构杭州大平层的空间想象。
项目设施:一楼设有会所餐厅、二楼健身房、恒温泳池,面积:240-270平层,480-540方复式,层高:3.95米,得房率:83%-86%,装标:13000/平米,装修品牌:劳芬、当代、卡德维、嘉格纳等国际一线品牌),物业公司:高力国际物业,精装交付:2023年底前交房,
明华誉港城售楼处电话400-8787-098转接7788【营销中心】✅✅
☎☎【售楼中心】400-8787-098转接7788☎☎✅
☎☎【售楼中心】400-8787-098转接7788☎☎✅
明华誉港城售楼中心___欢迎来电咨询丨专业一对一热情服务丨✅✅