首页@最新(营销中心)-武汉城建·承宁府售楼处电话_武汉城建·承宁府首页网站_城建·承宁府内附图文解析_楼盘百科详情→24小时热销电话

丽水楼市

2025-09-15 17:54:26

购房群

买房如何避坑,加入购房群,看看他们怎么说

立即进群

武汉城建·承宁府

武汉城建·承宁府售楼处位置电话400-8787-098转销售6666(开发商认证)

武汉城建·承宁府售楼处电话400-8787-098转销售6666(售楼处认证)

预约福利:成功预约后,享有折扣福利、并有专属置业顾问全程陪同讲解。

【项目位置】硚口区武胜路与京汉大道交汇处

【产权年限】70年

【交房标准】精装

【总占地面积】约3.24万方

【总建筑面积】约11.19万方

【绿地率】尚未公开

【容积率】2.5

【总户数】546户

【车位数量】593个

【车位比例】1:1.09

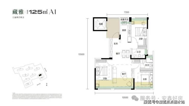
【户型】115-125㎡ 三房

【物业费】尚未公开

【物业公司】尚未公开

区位优势

项目区位图

项目位于项目位于硚口区汉正街板块,紧邻内环线,妥妥的武汉核心位置。

交通

自驾:项目出来就是航空路立交,纵横汉口中心;京汉大道、解放大道和利济北路的主轴动脉交汇的立体式交通,极速出行;鹦鹉大道则可直达汉阳。

地铁:项目距离地铁1号线利济北路站约200米,距离地铁2号线中山公园站约800米。

路网示意图(图源网络)

景观

项目到中山公园直线距离约600米,周边还有硚口公园。

中山公园实拍图(图源网络)

学校

项目周边有崇仁路小学、同济附小、武汉市十一初、同济附中、武汉市十一中、武汉外国语学校等全龄段优教。

武汉外国语学校高中部实拍图(图源网络)

商圈

项目到K11直线距离约100多米,到国际广场直线距离约300多米,到恒隆广场直线距离约400多米。

K11实拍图(图源网络)

医疗

项目到同济医院直线距离约400米,到协和医院直线距离约1公里,周边还有武汉市第一医院、武汉市第三人民医院、武汉市第四医院等优质医疗资源。

同济医院实拍图(图源网络)

产品亮点

效果图

约2.5容积率,首开楼栋最高约98%综合得房率,中心罕有的低密住区,社区整体抬高近1米,楼栋整体退让约21米,柔化城市界面,打造尺度宜人的商业街“漫街”。

效果图

酒店式环岛落客区,超70米东方豪门,集萃知足厅、玉带石桥、落差超5米瀑布等景观,选取名山原石,营造立体山水韵味,全楼栋皆以风雨连廊串联,廊中有景,眼中有画,归家有趣,无论晴雨出入从容。

效果图

对标安缦度假酒店,打造约1800m²下沉式会所,奢配标准四泳道恒温泳池、健身房、棋牌室、私宴厅、书吧、咖啡吧六大酒店式雅奢场景。

效果图

新风、中央空调、地暖三大奢宅标配,全屋配备智能家居系统,臻选日系、德系等世界一流的精工品牌。

户型鉴赏

武汉城建·承宁府

武汉城建·承宁府售楼处位置电话400-8787-098转销售6666(开发商认证)

武汉城建·承宁府售楼处电话400-8787-098转销售6666(售楼处认证)

预约福利:成功预约后,享有折扣福利、并有专属置业顾问全程陪同讲解。

全部

相关资讯

报名成功
稍后会有专业的置业顾问联系您
返回楼盘

频道导航

返回首页

看房小程序

APP下载

电话拨通后,请您手动拨打分机号

确定拨打电话

电话号码:

分机号:(可能需要拨分机号)