➢➢预约参观热线☎400-8787-098转接4444【售楼中心】
➢➢温馨提示——拨打400电话——听到嘀声后——输入分机号4444即可通话
➢➢楼盘基本信息介绍,地址,户型,价格,位置,医疗教育,商业交通
➢➢网上售楼中心—匠心钜制-恭迎品鉴-欢迎来电咨询-预约一对一讲解-请提前联系售楼处销售进行登记!
开发商:山西莱钢绿建置业有限公司
楼层状况: 4号楼总高8层 ,一梯两户;5号楼总高25层,两梯四户
装修标准:精装修交付
🚪户型:建筑面积约82-158平米
产权年限:70年
物业公司:山东信莱物业管理有限公司太原分公司
🏅国企巨著,实力保障
深耕地产领域二十载,凭借其深厚的国企背景和卓越的品牌实力,致力于打造高品质、宜居的居住环境,赢得了广大业主的信赖与好评。 如今,山钢铭著的一期项目已经圆满交付,为业主们呈现了一个集高品质住宅、完善配套与优美环境于一体的理想家园。
➢➢预约参观热线☎400-8787-098转接4444【售楼中心】
交通:紧邻地铁,2号线嘉节站距本项目仅200余米,至南站、机场交通便利
教育:配备有幼儿园(签约新乐贝幼儿园),签约太原市第三十八中学。小学,中学,全学龄教育配套
医疗:邻近山西白求恩医院、中铁十七局医院、山西省儿童医院、妇幼保健院、爱尔眼科医院等
商业:配有4.4万平米高端休闲社区商业。附近有万达广场(龙城店)、北美N1、国金中心等大型商业中心
生态:根据不同主题分别布置童梦乐园、多功能康体设施,雨水花园、户外会客厅、艺术长廊等分区。周边公园环抱,距龙城公园仅300余米,另有祥云公园,晋阳街公园,东篱公园,星河湾公园等
➢➢预约参观热线☎400-8787-098转接4444【售楼中心】
项目总建筑面积478157.5平方米,地处太原南部核芯区域龙城大街板块,揽藏区域内立体交通、一站式优教、生态、医疗等高质配套资源。 承袭山钢集团绿色科技基因,以五恒智慧家居系统为城市带来智慧健康人居。
五恒科技

➢➢预约参观热线☎400-8787-098转接4444【售楼中心】
“恒温、恒湿、恒氧、恒洁、恒静”,以五恒科技系统打造全维舒居空间,为居者完美兑现,为美好生活赋能。
恒温:根据室外温度变化将室内温度恒定于20℃-26℃之间,无论炎夏还是寒冬,让居家生活温暖如春
恒湿:根据季节变化随时调整室内湿度,冬季加湿夏季除湿,使室内湿度常年保持在30%-70%之间,湿润不燥的环境,不必担心因空气潮湿而引起的身体不适
恒氧:全屋置换式新风,将室外的新鲜空气送入室内,确保新风量不低于30m³/h'人,不仅每一口呼吸都纯净、畅然,更能保障家人的呼吸健康
恒洁:通过新风除霾系统连续不间断更换室内空气,排除V0C污染,使室内PM2.5数值不高于 35,全方位守护居者呼吸健康
恒静:外窗采用三玻两腔中空玻璃,隔音降噪保温隔热,有效隔绝室外噪音。户内保持环境噪声日间<45分贝,夜间<35 分贝,告别传统空调系统噪音,守护每一个香甜梦境
智能舒居2.0新品即将入市
北区4#、5#楼压轴新品即将启幕,在原有五恒科技之上,精细化智慧生活空间,引入狄耐克“全屋智控系统”打造智能舒居2.0产品,实现便捷、安全、丰富的智慧生活场景。
➢➢预约参观热线☎400-8787-098转接4444【售楼中心】
户型鉴赏
【4号楼标准层平面图】
4号楼户型图

「方正奢居」
方正三居,重新诠释大家奢适境界,尽显气度格局
「餐客联袂」
客厅与餐厅一脉相承,从容尺度,赋予大家雍容排场
「全明格局」
三开间向阳布局,尽享阳光偏爱,让温暖时刻相伴
「无界通景」
通景阳台匠心设计,实现客厅与卧室无界相连,拓宽视野
「主次有序」
主次双卫合理规划,确保舒适起居体验,彰显尊崇秩序
➢➢预约参观热线☎400-8787-098转接4444【售楼中心】

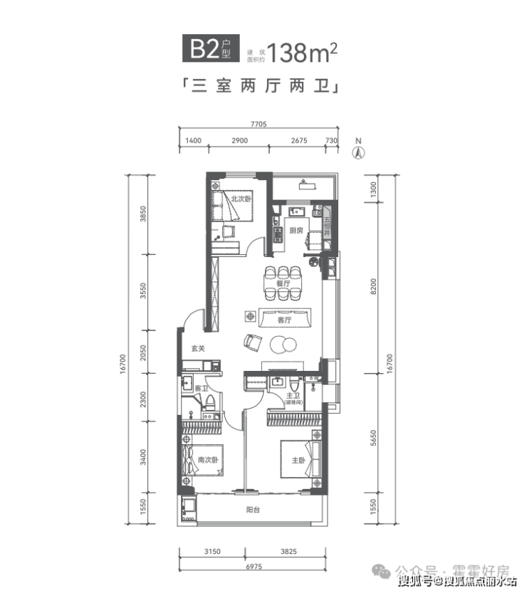
「全明奢居」
方正三居,重塑奢居生活新典范,彰显不凡气韵与空间格局
「南北通透」
南北通透空间,奢阔轩敞,打造高品质住区,打造奢适居住体验
「三卫三浴」
三卫三浴设计巧妙,兼顾舒适与实用性,尽享便利起居
「LDKB一体化」
LDKB一体化空间,客餐厨阳台无缝衔接,赋予生活从容尺度
「主卧尊享」
尊崇主卧套房,私享独立空间,诠释非凡居住体验,彰显尊贵气度
➢➢预约参观热线☎400-8787-098转接4444【售楼中心】
【5号楼标准层平面图】
5号楼户型图

「奢雅宽居」
奢雅三居,以阔绰空间尺度,奢揽人生宽朗境界
「全景视界」
全景落地窗配置,坐拥无界视野,尽揽窗外景致
「餐客一体」
客厅与餐厅双厅一体,宽绰尺度,尽显豁达风范
「阳光双卧」
南向双卧布局,阳光满溢,享受温馨休憩时光
「主卧私享」
主卧套房设计,打造私密自在起居,悦享舒适体验
➢➢预约参观热线☎400-8787-098转接4444【售楼中心】

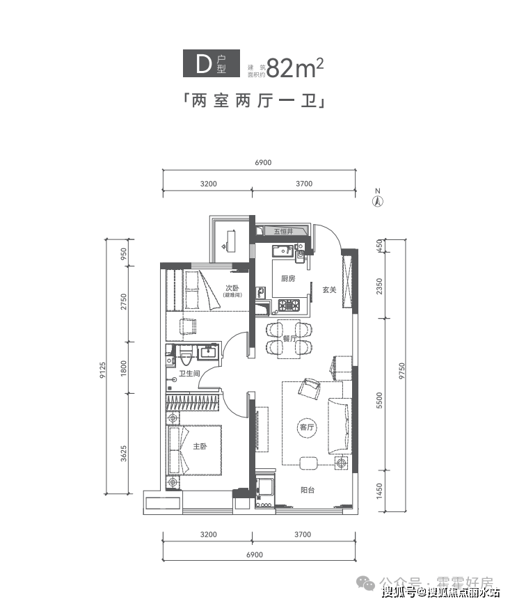
「精致美居」
方正精巧两居,雕琢温馨小筑之美,满溢雅致韵味
「餐客一体」
餐客相融设计,休闲餐饮自在天地,舒适触手可及
「动静分离」
生活空间精心规划,动静区域泾渭分明,起居有序
「飘窗主卧」
主卧飘窗点缀,诗意美景四季更迭,浪漫如影随形
「U 型厨房」
U 型厨房构造,演绎三餐精彩烹饪,时光满是乐趣

「方正阔居」
方正三居,重新定义居家舒适体验,尽享疏阔格局
「餐客联袂」
餐客厅一脉相连,空间流畅无阻,彰显大家风范
「全明光照」
三室向阳而设,阳光肆意洒落,温暖时刻相伴左右
「无界阳台」
通景阳台,客厅与卧室无缝对接,拓宽视觉享受
「主卧尊享」
主卧套房配备步入式衣帽间,尊贵私密,自在私享
➢➢预约参观热线☎400-8787-098转接4444【售楼中心】

「阔朗奢居」
阔朗三居,重塑大家宽绰之享,自在生活随心而驭
「餐厨合璧」
餐厨联袂设计,美味便捷直达,打造流畅餐食空间
「双卧朝南」
朝南双卧布局,四时阳光倾洒,温暖常伴身边
「阔景阳台」
客卧通景阳台,框定无垠天地,匹配视觉奢华盛宴
「主次有序」
合理规划主次双卫,保证舒适起居,尊享私密体验
➢➢预约参观热线☎400-8787-098转接4444【售楼中心】


➢➢预约参观热线☎400-8787-098转接4444【售楼中心】
设计图鉴赏



➢➢预约参观热线☎400-8787-098转接4444【售楼中心】
🏡南区全面升级 高阶改善住区
作为龙城大街顶豪类居住作品,项目南区在核芯地段与全维教育配套加持下,通过精研项目与产品内外空间、提升户内精装、全屋智能化标准,打造面向未来的高阶智能生活住区。社区客厅及别具一格的下沉广场,搭活力环联通的多样森系生活,升级都会居住体验。


➢➢预约参观热线☎400-8787-098转接4444【售楼中心】
➢➢温馨提示——拨打400电话——听到嘀声后——输入分机号4444即可通话
➢➢楼盘基本信息介绍,地址,户型,价格,位置,医疗教育,商业交通
➢➢网上售楼中心—匠心钜制-恭迎品鉴-欢迎来电咨询-预约一对一讲解-请提前联系售楼处销售进行登记!