滨江棠悦芳华轩深度评测:在售房源价格解析、限时钜惠速递、看房专线,周边黄金商圈--最新政策

六安楼市发布

2026-01-21 12:01:00

购房群

买房如何避坑,加入购房群,看看他们怎么说

立即进群

拱墅滨江棠悦芳华轩

☎️VIPline:400 808 7328【已认证】☎️

☎️置业热线:130 6784 6867(同微信)☎️

☎️售楼处〢欢迎来电咨询〢提前预约可享内部优惠〢☎️

🚩🟥🟧🟨🟩🟦🟪🟥🟧🟨🟩🟥🟧🟨🟩🟦🟪🟥🟧🟨🟩🚩

🔥高奢度假奢绽星河云镜、浮光翠园、谧林探月等双园八境,精裁主城都芯谧境🔥

🔥无界聚场特色主题架空层,复合浮生·会客厅、乐淘·历险岛、燃动·活力馆等多元功能,全龄合乐🔥

🔥生活进化建面约99-139㎡创新空间,以S墙收纳、LDK一体、四开间南巨幕光境等颠覆设计进阶改善🔥

棠悦芳华轩,由滨江&兴耀&西房,3家房企共同开发!户型设定在建面约99-139方,售卖单价24000起

棠悦芳华轩户户朝南,LDKB一体化设计,大面宽、大开间、封包阳台(计入一半面积),得房率更高……带来超越期待的居住体验。

☎️VIPline:400 808 7328【已认证】☎️☎️置业热线:130 6784 6867(同微信)☎️

建面约120方四房两卫户型

得益于板式楼型和边套的设计,建面约120方户型实现了L型双边自然采光,同时拥有双向的通风对流优势。

同时,双厅一体化,铺展约6.3米大飘窗,不浪费一点过道,增加了不少家人社交共融场景;南向套房主卧,独立卫浴间+飘窗,居住舒适度更进一步。

☎️VIPline:400 808 7328【已认证】☎️☎️置业热线:130 6784 6867(同微信)☎️

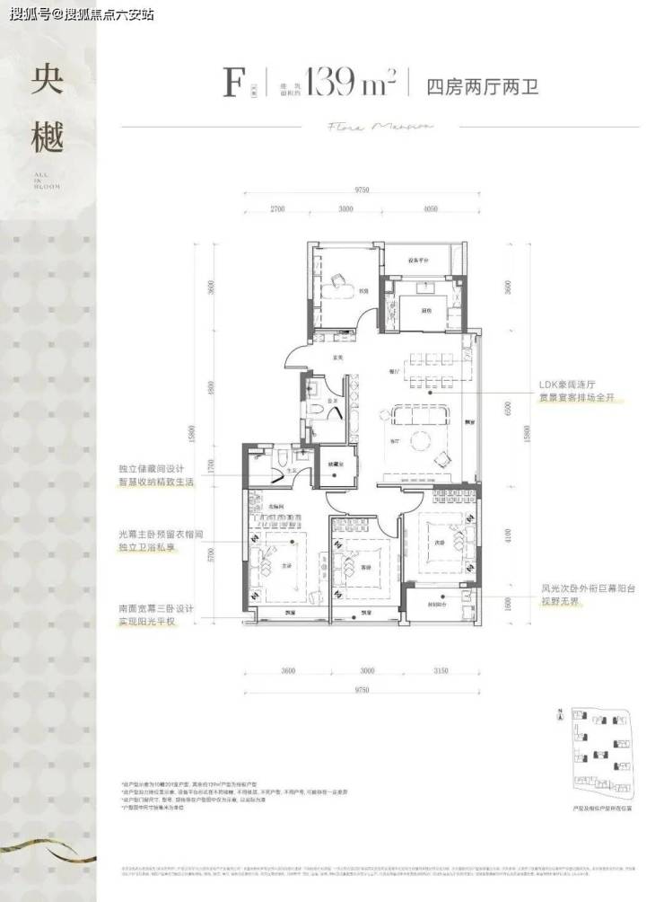
建面约139方四房两卫户型

该边套户型,不仅有270度的采光视野,主/次/客卧三大开间并立朝南,“含阳光量”十足。

南面房间飘窗/阳台设计,充分延伸空间尺度,超宽超大横厅带独立玄关和独立储藏室空间,兼顾大空间尺度、舒适体感和全周期灵动布局,实现了居住价值的真正回归。

这款作为置换买家心仪的房型,以旧换新,以小换大,一次置换即可“无后顾之忧”,生活品质和资产双升舱。

☎️VIPline:400 808 7328【已认证】☎️☎️置业热线:130 6784 6867(同微信)☎️

有人说,在杭州,“滨江造”就是红盘底气,就是流量密码。

诚然,作为深耕杭州33载的奢宅专家,滨江在杭州的号召力,从来是毋庸置疑。比如,在刚过去的2025年前三季度,滨江集团又以561.9亿元销售总额,强势跻身杭州TOP1。

☎️VIPline:400 808 7328【已认证】☎️☎️置业热线:130 6784 6867(同微信)☎️

自杭州取消住宅限价以来,在自古恒贵的主城区,因为单价的上扬以及户型面积的越做越大,很多楼盘的总价甚至直逼千万级,让不少购房者“望房兴叹”。

而棠悦芳华轩,却用门槛级入场券,撕开了主城总价300万级的购房缺口。

☎️VIPline:400 808 7328【已认证】☎️☎️置业热线:130 6784 6867(同微信)☎️

打开杭州楼市地图,若是以武林广场为圆点,以直线距离约8km为半径画个圈,棠悦芳华轩基本上是当下主城300万级新房的“好选项”。它的出现,可以说直接“拉爆”了置业主城的性价比。

☎️VIPline:400 808 7328【已认证】☎️☎️置业热线:130 6784 6867(同微信)☎️

价格虽然让利,但作为滨江33年精选之作,棠悦芳华轩产品力做了“翻天覆地”式的升级。不管是大门、外立面、园林、架空层还是户型设计、精装标准,都是对标限价时代市面上4W+乃至5W+的项目。

当然,棠悦芳华轩的受欢迎,还得益于奢宅专家滨江品牌的有力背书,“滨江造”不仅在新房市场上表现卓越,在二手房市场上亦“所向披靡”。

☎️VIPline:400 808 7328【已认证】☎️☎️置业热线:130 6784 6867(同微信)☎️

棠悦芳华轩示范区实景图,源自网络,侵删:

作为9月主城签约套数TOP1以及长期霸占各大小程序热搜TOP榜单的常客,棠悦芳华轩的热销绝非偶然。爆火的背后,是它的王炸级组合优势,精准集中了购房者的内心需求。

☎️VIPline:400 808 7328【已认证】☎️☎️置业热线:130 6784 6867(同微信)☎️

一言以蔽之,虽然是主城罕见300万级门槛价,却一手集齐了滨江集团品牌背书、滨江造多方位升维王者产品力以及武林核芯区成熟生活圈,妥妥的热销基因。

☎️VIPline:400 808 7328【已认证】☎️☎️置业热线:130 6784 6867(同微信)☎️

景观风格与建筑相统一,整区打造“合悦绽放,漫岛芳华”的主题概念,享艺术、微度假、秀生活的景观,从细节出发匠心打造隐奢美学界面。

☎️VIPline:400 808 7328【已认证】☎️☎️置业热线:130 6784 6867(同微信)☎️

中央水景实图:景观灵感源自著名珠宝品牌CHAUMET,以“繁花造型珠宝”为设计理念,将大胆、华丽、创新于景观之中,形成特有的珠宝风格景观设计系统。

☎️VIPline:400 808 7328【已认证】☎️☎️置业热线:130 6784 6867(同微信)☎️

棠悦芳华轩大门实景:萃取东方礼制精髓,沿东西向主轴设置多重归家院落,形成主入口至迎宾水院及度假水池为一体的礼序归家轴。层层递进的空间,在步移景异中,营造出多重归家仪式。

☎️VIPline:400 808 7328【已认证】☎️☎️置业热线:130 6784 6867(同微信)☎️

棠悦芳华轩作为滨江时隔多年重回华丰板块的代表作,产品力和品牌价值自然也毋庸置疑,最惊喜的是,在购房门槛逐步上涨的当下,项目仍以“主城3万+”的均价,为刚改客群留下主城置业的机会。

☎️VIPline:400 808 7328【已认证】☎️☎️置业热线:130 6784 6867(同微信)☎️

产品方面,项目采用“四面铝板+封闭式阳台”设计,外立面选用基座石材与大面积落地玻璃。室内部分区域采用三玻两腔玻璃,提升隔音隔热效果。社区规划方面,项目采用围合式布局,配备5.4米层高架空层,打造了七大主题空间,包括儿童游乐区和休闲会客区等。

☎️VIPline:400 808 7328【已认证】☎️☎️置业热线:130 6784 6867(同微信)☎️

【开发商】滨江&兴耀&西房

【占地面积】27934㎡

【建筑面积】90548.47㎡(地上62948.47㎡)

【楼幢数】11幢

【楼层状况】12-16层

【面积】99-108-113-120-128-139㎡

【户数】504套

【建筑状态】精装修

☎️VIPline:400 808 7328【已认证】☎️☎️置业热线:130 6784 6867(同微信)☎️

【容积率】2.2

【层高】标准层3米;首层3.6米/4.2米/5.4米

【绿地率】35%

【物业公司】滨江物业

【物业公司】4.8元/平(含能耗)

【交付时间】2027年9月

☎️VIPline:400 808 7328【已认证】☎️☎️置业热线:130 6784 6867(同微信)☎️

户型设计涵盖108至139平方米多种面积段,其中108平方米户型做成四房设计,适合预算有限但需要多功能空间的家庭。装修标准方面,项目配备新风、地暖、中央空调三大件,厨房选用方太系列产品,卫生间采用智能马桶。

☎️VIPline:400 808 7328【已认证】☎️☎️置业热线:130 6784 6867(同微信)☎️

项目内部设置主题架空层,从全龄业主的生活出发,规划了复合阅读书吧、会客、童玩、健身、青少年活动天地、长者康养等功能空间,每一处空间都像是一个超级“聚场”,是开放的社区朋友圈。

比如超级马里奥主题的儿童活动区,不仅铺满了7号楼的架空层,而且步入的瞬间就拥有超强的治愈功能,让孩子拥有更好的童年,也让大人找回童心。

☎️VIPline:400 808 7328【已认证】☎️☎️置业热线:130 6784 6867(同微信)☎️

从市场对比来看,项目所在板块的二手房价格差异明显。以铁路北板块为例,滨江开发的次新小区近期签约均价为4.11万元/平方米,而相邻非滨江项目成交均价约为3.29万元/平方米,价差超过8000元/平方米,体现出品牌开发商的项目溢价能力。

☎️VIPline:400 808 7328【已认证】☎️☎️置业热线:130 6784 6867(同微信)☎️

滨江棠悦芳华轩

☎️VIPline:400 808 7328【已认证】☎️

☎️置业热线:130 6784 6867(同微信)☎️

☎️售楼处〢欢迎来电咨询〢提前预约可享内部优惠〢☎️

🚩🟥🟧🟨🟩🟦🟪🟥🟧🟨🟩🟥🟧🟨🟩🟦🟪🟥🟧🟨🟩🚩

🔥高奢度假奢绽星河云镜、浮光翠园、谧林探月等双园八境,精裁主城都芯谧境🔥

🔥无界聚场特色主题架空层,复合浮生·会客厅、乐淘·历险岛、燃动·活力馆等多元功能,全龄合乐🔥

🔥生活进化建面约99-139㎡创新空间,以S墙收纳、LDK一体、四开间南巨幕光境等颠覆设计进阶改善🔥

全部

相关资讯

报名成功
稍后会有专业的置业顾问联系您
返回楼盘

频道导航

返回首页

看房小程序

APP下载

电话拨通后,请您手动拨打分机号

确定拨打电话

电话号码:

分机号:(可能需要拨分机号)