保利明州瑧悦府户型配套-楼盘详情-保利明州瑧悦府首页网站(2025年宁波海曙区精装住宅保利明州瑧悦府)保利明州瑧悦府

六安楼市发布

2025-07-07 05:48:00

购房群

买房如何避坑,加入购房群,看看他们怎么说

立即进群

宁波海曙区精装住宅保利明州瑧悦府

🔻售楼热线:☎ 400 832 8823「售楼处」☎〢网上售楼中心〢🔻

🔻◆置业顾问:☎ 156 0653 2539「微信同步」☎〢🔻专业一对一热情服务〢◆🔻

🔻⑉⑉⑉ıllı⑉🔻保利明州瑧悦府售楼处(周一至周日 9:00--18:00)一对一咨询🔻看房需要提前电话预约,避免可能案场无人接待!提前预约可享内部优惠〢匠心钜制-恭迎您的品鉴⑉ıllı⑉⑉

在户型设计方面,明州瑧悦深度洞察改善家庭的居住需求,精心打造了建面约120㎡奢适三房户型。该户型凭借南向约11米三开间、舒阔三房格局、科学动线设计以及细节品质等优势,实现空间通透性与功能性的平衡。再加上日立中央空调、地暖智享两联供、方太洗碗机/油烟机/燃气灶等精装优配,全面升级海曙人居体验。🔻售楼热线:☎ 400 832 8823「售楼处」☎〢网上售楼中心〢🔻

🔻售楼热线:☎ 400 832 8823「售楼处」☎〢网上售楼中心〢🔻

当卓越的产品力遇见央企品牌力,当诗意的礼序华宅邂逅海曙西,明州瑧悦以现象级热销印证海曙改善市场的深度认同。目前,建面约120㎡奢适三房持续热销中,珍藏席位不容错过!

🔻售楼热线:☎ 400 832 8823「售楼处」☎〢网上售楼中心〢🔻

从未来的物业服务,到归家动线的规划,再到精装细节的考量,全程为客户进行带看讲解。专业、细致的服务赢得了客户的一致好评,客户纷纷点赞:“这才是央企应有的产品态度!”

在众多开发商还在围绕房屋面积数字展开博弈,保利·明州瑧悦已然跳出了“压缩空间换取数量”的模式,打破了市场同质化的僵局。项目深入洞察生活本质,将生活舒适度作为核心追求,精心打造了建筑面积约120㎡奢适三房户型,凭借其【南向约11米三开间+舒阔三房格局+科学动线设计+细节品质】等优势,构建出更贴合家庭居住舒适度与社交互动需求的空间格局,实现从生存容器到生活容器的华丽变革

保利明州瑧悦府自推出以来,受到了市场的热烈追捧。其高品质的产品、优越的地理位置和丰富的配套设施都使得该项目成为宁波市场上备受关注的高端住宅项目。

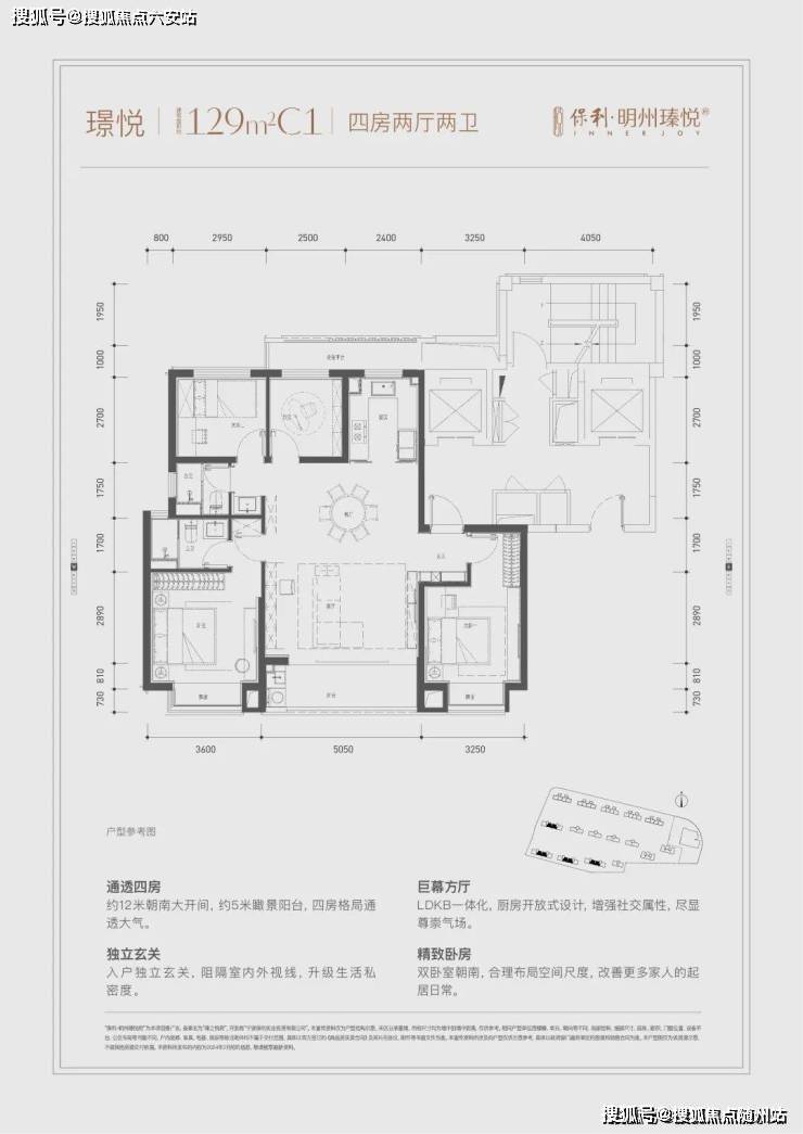
户型鉴赏

在产品打造上,项目立足“一园三堂,意蕴东方”产品表达,以五重归家礼序打造可望、可游的东方风雅园林,让业主在归家之时尽享诗意与宁静。同时,项目还打造了海曙难得一见的户外双泳池组合,为业主构建了一个都市微度假生活场,让业主在家楼下就能享受度假的惬意。此外,项目精心规划国学讲堂/健身区/童玩天地等多元主题架空层,让邻里温度浸润日常。

核心亮点

东方美学园林:

以元代画家倪瓒画作为蓝本,打造“三重归家礼序”景观

包含叠水景观、星空草坪、樱花步道等八大主题园区

度假式配套:

双泳池(含恒温泳池)、全龄架空层泛会所(健身/童玩/休闲)

下沉式泛会所配备海岛吧台,营造五星度假体验。

匠心工艺:

外立面融合玉琮灵感与天一阁飞檐元素,顶部“飞鹤顶”设计。

地段与配套

交通:

地铁2号线藕池站约800米,规划6号线新典路站约500米。

紧邻宁波西枢纽“空铁一体”枢纽(规划中)。

教育:爱菊艺术学校(学区资源)。

商业:海曙龙湖天街(约2km)、恒一广场(约1.5km)。

医疗:海曙中医院(三甲)。

作为保利“悦系”首入宁波的标杆作品,项目以东方美学、精工品质及度假式社区为核心竞争力,定位海曙西改善大盘,适合追求品质生活的购房者。需注意价格与学区政策以实际签约时为准

『云隐园』借鉴倪瓒画作《江亭山色图》,透过蟒水纹编织而成的光影连廊观赏三重水景。中心开阔的静水面仿若天空之境,流水逐级而下,泛起层层涟漪,如同丝绸般柔滑温润。尤其到了烟雨时分,更如一幅描绘江南的水墨画般,氤氲朦胧的诗意。

池畔下沉式的轩堂『兰芷轩』,巧妙地仿效了“孔明灯”的造型,夜晚亮灯之时,“灯罩”呈现温润的玉石质感,好似即将升入夜空,梦回“夜上古都,灯影如梦”的奇景。当坐于其中,枕于水畔,目之所及,又成了“明月松间照,清泉石上流”的景象

作为三个项目中唯一拥有双水系的地块,盛家河、毕家河如玉带环腰,将汀澜瑧悦围合成一座“半岛”,保利浙江区域就在这汀岸观澜间,掩映柔美安宁的幽雅谧境。

保利明州瑧悦府的设计理念源自东方美学,融合现代与传统,自然与人文,打造出一个既宜居又充满文化底蕴的高端住宅社区。项目外立面以玉琮为灵感,勾勒出清透而立体的视觉效果,建筑顶檐则借鉴天一阁的制式,彰显出深厚的文化底蕴。园林设计更是巧妙融入中式园林的意境,山水、花鸟、亭台水榭相映成趣,营造出一片静谧祥和的居住环境。

项目配备有度假酒店同款的户外大型泳池,观星躺椅、海岛吧台、蓝宝石池面等设施一应俱全,为业主打造了一个归家度假的仪式感。在这里,业主可以尽情享受度假般的美好生活。

保利发展浙江公司深研天一阁“堂前—前院—庭院—连廊—后院”的空间结构,化为明州瑧悦府“诗礼门堂、泗水归堂,礼仪连廊、山水隐园、厅堂礼院、度假泳池”五进归家礼序,串联一园三堂,呈现端庄持稳的世家诗礼门庭。

甚至在进门之前,你就已经看到了一幅倒映在水波上的山水画境;进门之后,则是用一件雾霭绕峰的摆件,暗示你是站在山峰上看到的老树和山石。

【东方美学建筑,彰显文化风范】

宁波海曙保利·明州瑧悦府的建筑设计灵感来源于东方传统文化,以玉琮为灵感,勾勒出清透的立面结构,呈现出极具辨识度的“飞鹤顶”。项目借鉴天一阁顶檐的“四角翼然”制式,彰显天下第一藏书楼的文化风范。🔻售楼热线:☎ 400 832 8823「售楼处」☎〢网上售楼中心〢🔻

保利·明州瑧悦 建面约为104-148㎡,,海曙西,柳汀街诗礼华宅 ,10座主题架空层,覆盖健身瑜伽下棋童玩。坐落在海曙西姚丰南板块,整个泳池区域与相邻两侧的景观组团设计相结合,在泳池两侧,宁波悦系首作 敬千载明州/姚丰南改善大盘/自带户外大型游泳池。 🔻售楼热线:☎ 400 832 8823「售楼处」☎〢网上售楼中心〢🔻

【开发商实力背书,品质保障】

作为世界500强企业,中国保利集团旗下拥有6家境内外控股上市公司,其控股子公司保利发展在2023年1-10月房地产全行业销售额排名中位居第一。在浙江区域,保利发展已布局16个城市,打造了70个子项目,累计服务77423户业主。这样的实力背景,为宁波海曙保利·明州瑧悦府的品质提供了坚实的保障。

【地处海曙芯,汲取千年文化底蕴】

宁波海曙保利·明州瑧悦府位于海曙区核心位置,毗邻联丰路-柳汀街,与海曙源心、月湖之畔近在咫尺。柳汀街两侧,一代代宁波世家望族的居址林立,这里不仅是宁波的历史发源地,更是现代都市的繁华所在。项目选址于此,旨在汲取千年文化底蕴,为业主营造一种古今交融的生活方式。

【生活半径,醇熟住区配套】

宁波海曙保利·明州瑧悦府周边配套齐全,生活半径内,涵盖了海曙天街、海曙恒一、千润发购物、集成广场等成熟商业资源。同时,项目周边还拥有爱菊艺术学校、海曙中医院(三甲)等优质城市资源。地铁11号线薛家路站(规划)也在步行范围内,出行便捷,生活无忧。

同时,保利深耕宁波数年,打造了不少品质住区,这些项目不仅为业主提供了高品质的居住环境,更积累了良好的口碑和信誉。对于客户来说,选择保利·明州瑧悦,也是央企的稳健基因在当前市场波动加剧的背景下,成为了客户做出购房决策的关键因素。

明州瑧悦坐落于柳汀街西南,坐拥2KM黄金生活圈,尽享海曙天街(直线距离约2.0KM)、海曙恒一(直线距离约1.5KM)、爱菊艺术学校(直线距离约1.5KM)等优质配套资源,满足业主购物、娱乐、教育等全方位生活需求。(距离数据来源:百度地图)

宁波海曙区精装住宅保利明州瑧悦府

🔻售楼热线:☎ 400 832 8823「售楼处」☎〢网上售楼中心〢🔻

🔻◆置业顾问:☎ 156 0653 2539「微信同步」☎〢🔻专业一对一热情服务〢◆🔻

🔻⑉⑉⑉ıllı⑉🔻保利明州瑧悦府售楼处(周一至周日 9:00--18:00)一对一咨询🔻看房需要提前电话预约,避免可能案场无人接待!提前预约可享内部优惠〢匠心钜制-恭迎您的品鉴⑉ıllı⑉⑉

全部

相关资讯

报名成功
稍后会有专业的置业顾问联系您
返回楼盘

频道导航

返回首页

看房小程序

APP下载

电话拨通后,请您手动拨打分机号

确定拨打电话

电话号码:

分机号:(可能需要拨分机号)