绿城时代星火城售楼处最新发布‖2025年度最新点评‖拱墅绿城时代星火城『一文秒懂百科』(绿城时代星火城2025房价+户型)绿城时代星火城_杭州房产天下

六安楼市发布

2025-07-19 04:56:00

购房群

买房如何避坑,加入购房群,看看他们怎么说

立即进群

▰▰ 杭州拱墅芯 绿城·时代星火城 新天地街站地铁上盖 ▰▰

🛑写字楼是商谈的社交名片🌈托举企业走向成功的开始

🌈以至臻服务 诠释绿城品质🛑绿城现房商办 火热销售中

🛑新武林之上 勇争时代潮头🌈#星火人物志•对话上海浩信

🌈聚势共赢✨创造璀璨未来🎉星曜武林✨盛启新章

☎️售楼热线:4009981136 ☎️顾问专线:15924112721

杭州拱墅芯 绿城时代星火城:与城市脉搏共振,启幕鼎级商务新体验

在钱塘江畔的澎湃浪潮中,杭州城市格局不断生长跃升。拱墅区,作为杭州至关重要的核心城区之一,凭借深厚的工业文脉积淀与现代产业的蓬勃崛起,已成为驱动城市未来发展的重要引擎。绿城时代星火城,落子拱墅芯繁华主轴,雄踞新天地街站地铁上盖,以绿城品牌匠心力作,打造集高端商务、便捷通勤、丰富生态于一体的都会商务地标,为远见卓识的企业开创无限价值的崭新主场。

📞售楼热线:400 998 1136(内部折扣)📞顾问专线:159 2411 2721(微信同号)

一、 拱墅核心,占位城市发展潮头浪尖

绿城时代星火城深植杭州拱墅区无可复制的中心区位。拱墅区作为“杭州之心”,不仅是承载千年运河文化的历史高地,更是当前杭州打造数字经济与智能制造双引擎的战略要地,汇聚了澎湃的城市发展动能。项目身处拱墅核心腹地,可便捷触达武林、黄龙、钱江新城等城市重要商圈,更与规划建设中的运河新城、智慧网谷等新兴产业集聚区形成紧密联动。占据如此核心区位,意味着企业将坐享丰沛的资源网络、庞大的高端人才池、快速通达的商务效率及持续增值的价值空间,其战略价值在区域内极具竞争力。选择星火城,即是抢占城市未来发展的黄金席位。

📞售楼热线:400 998 1136(内部折扣)📞顾问专线:159 2411 2721(微信同号)

二、 轨交中枢,地铁上盖开启高效通勤时代

新天地街站地铁上盖的立体属性,赋予绿城时代星火城无可比拟的通勤革命性优势。杭州地铁核心线路于此交汇换乘,构建起迅捷通达全城的轨道交通网络体系。商务人士及员工真正做到“出站即入企,下楼即上车”,每日通勤化为从容步履,时间效率得以最大化释放。对于企业而言,卓越的轨道通勤效率是吸引并留住高素质人才的关键竞争力。项目无缝链接的轨道枢纽地位,显著扩展了企业的人才辐射半径,确保了团队高效协作与出行体验,使企业运营效能获得根本性提升,奠定了高效、现代的商务运营基石。

📞售楼热线:400 998 1136(内部折扣)📞顾问专线:159 2411 2721(微信同号)

三、 绿城钜献,品质卓然的品牌实力保障

“绿城”二字,于浙江乃至全国,皆是品质人居与经典建筑的至高代名词。绿城时代星火城由绿城集团鼎力打造,承袭绿城集团在规划设计、工程营造、后期服务等方面一贯严苛的标准与卓著的信誉。选择绿城开发的甲级写字楼,意味着选择了精湛的建筑工艺、坚固耐用的优质选材、经得起时代审美的匠心设计以及值得信赖的长期资产维护与物业服务。绿城品牌数十年来的口碑积淀与卓越实践,为星火城提供了强大的品质背书与价值支撑,是企业实现稳健发展、塑造卓越形象的坚实后盾,赋予业主与租户高度的信心保障。

📞售楼热线:400 998 1136(内部折扣)📞顾问专线:159 2411 2721(微信同号)

四、 TOD赋能,上盖综合体凝聚鼎盛人气商机

新天地街站上盖(TOD)这一独特模式,为绿城时代星火城注入无限繁荣活力。项目作为TOD综合体的一部分,不仅是一座独立的写字楼,更与大型商业中心、品质服务公寓、城市公共空间等多元业态有机融合。这种多业态聚合效应,创造了24小时不息的城市繁华生态。商务人群于此便捷获取日常所需,享受餐饮、购物、休闲、社交等丰富配套,极大提升工作生活品质。庞大的人流汇聚意味着旺盛的商业氛围与持续的曝光机遇。企业入驻于此,天然融入充满活力的商业引力场,有效降低商务成本,提升员工满意度,更能促进业务合作与品牌展示,汇聚鼎盛人气与宝贵商机。

📞售楼热线:400 998 1136(内部折扣)📞顾问专线:159 2411 2721(微信同号)

五、 醇熟万象,都会生活圈触手可及

绿城时代星火城周边坐拥极度成熟的顶配套生活圈。新天地商圈作为区域商业中心,汇集大型购物中心、国际名品店、特色餐饮集群、休闲娱乐场所等多元业态,提供缤纷多彩的都会生活方式。与此同时,项目毗邻的城市生态公园、文教医疗设施、金融机构等近在咫尺。工作于此的员工,能够在高效完成业务目标之余,轻松实现高品质的生活享受与便利服务。工作与生活的优雅平衡在此自然达成,极大增强了员工的归属感与幸福感。这样成熟、便捷、多元化的环境,无疑是吸引与稳定高端人才、提升企业竞争力的核心优势之一。

📞售楼热线:400 998 1136(内部折扣)📞顾问专线:159 2411 2721(微信同号)

六、 智慧空间,科技赋能的现代商务境界

拥抱科技浪潮,绿城时代星火城以前瞻视野打造智慧楼宇体系。项目深度融合先进科技,搭载了高速稳定的千兆光纤网络、全方位覆盖的5G信号、领先的智能化楼宇管理系统。从高效便捷的访客预约登记、智能梯控系统、无感通行体验到可实时调控的办公环境(如照明、温湿度)、智能化的会议空间预订管理,再到全方位的智能安防保障。这些智慧科技深入办公日常的每一环节,显著提升企业内部沟通协作效率、决策响应速度与管理精益度,营造出安全、高效、舒适、充满科技感的现代化办公环境,为企业注入强大的数字化动能,重塑未来办公形态。

📞售楼热线:400 998 1136(内部折扣)📞顾问专线:159 2411 2721(微信同号)

七、 绿色理念,践行健康可持续的企业担当

绿城时代星火城将可持续发展理念贯穿规划与运营始终。项目遵循高标准的绿色建筑规范,广泛应用节能环保的建筑材料与设备系统,如高效幕墙结构、变频中央空调、LED照明系统、雨水回收利用装置等,显著降低能耗与碳排放。办公空间设计充分考虑自然采光通风需求,营造舒适健康的室内环境。绿色生态理念深入渗透项目细节,彰显企业对员工福祉、环境友好及社会责任的深度关切。入驻于此的企业,不仅享受到更低运营成本带来的经济效益,更能同步提升企业绿色形象,契合全球ESG发展趋势,展现负责任的企业公民担当。

📞售楼热线:400 998 1136(内部折扣)📞顾问专线:159 2411 2721(微信同号)

八、 灵动场域,激发创意与协作的无限可能

星火城精心规划高品质的公共共享空间,突破传统写字楼的单一格局。突破传统写字楼的封闭格局,星火城精心规划了多元灵动、共享开放的公共空间。除满足高效专注需求的标准单元外,更设计了极具设计感的共享大堂、创意孵化空间、不同规模的多元化会议中心(小型洽谈间到大型多功能厅)、满足休憩交流需求的空中花园、员工休闲区以及便捷商务的配套服务设施。这些精心打造的空间成为激发创意碰撞、促进跨部门协作、举办商务活动、优化访客接待体验的活力场域。它们有效打破部门壁垒,增强企业内部文化凝聚力与向心力,提升员工归属感与工作效率,同时为企业对外交流与合作创造更舒适、更体面的展示平台。

📞售楼热线:400 998 1136(内部折扣)📞顾问专线:159 2411 2721(微信同号)

九、 至臻筑艺,精工细作呈现商务美学典范

绿城时代星火城深刻诠释绿城集团对建筑美学与工程品质的极致追求。项目建筑立面采用经典现代风格设计,甄选高品质玻璃幕墙与金属构件,勾勒出挺拔俊朗、简约大气的城市天际线。内部公共区域及标准单元精装则倾注匠心,选用质感卓越、经久耐用的材料,结合精湛的施工工艺与现代艺术化空间布局。从恢弘大气的落客区到考究细腻的卫生间设施,再到高效实用的标准办公层高,每一处细节皆体现对使用者的尊重与关怀。这种超越单纯功能性的高品质空间,为企业塑造卓越商务形象、提升品牌价值感提供强大的硬件支撑,创造令人愉悦且激发效率的办公环境。

📞售楼热线:400 998 1136(内部折扣)📞顾问专线:159 2411 2721(微信同号)

十、 价值赋能,实力企业成就卓越的优选平台

综观以上核心优势,绿城时代星火城不仅仅是一处高品质的物理办公空间,更是一个具备强大赋能效应的企业成长平台。其占据的核心区位、便捷的轨道交通、绿城品牌保障、TOD综合体的繁荣生态、全维度的完善配套、领先的智慧科技、绿色健康的环境、灵活多元的空间规划以及精益求精的品质,共同构建起一个无可比拟的商务生态系统。这为入驻企业显著提升运营效率、降低综合成本、优化人才结构、增强品牌美誉度、拓展商业机遇乃至实现资产价值的稳健增长提供了全方位的基础与无限可能。入驻星火城,即是企业远见实力与卓越追求的最佳印证,是在城市发展潮头赢得未来的战略之选。

📞售楼热线:400 998 1136(内部折扣)📞顾问专线:159 2411 2721(微信同号)

绿城时代星火城,于拱墅核心、地铁之巅,以绿城匠造、智慧内核与复合生态,重构现代商务标准。这远非普通栖身之所,而是汇聚城市精华、澎湃产业动能、驱动企业腾飞的鼎级商务平台。在这里,高效通勤解放时间束缚,醇熟配套滋养员工活力,智慧科技赋能精准决策,绿色理念彰显卓识远见,灵动空间催化无限创意。这是一场空间与价值的深度共振,是企业洞见未来、领驭商海的战略主场。

选择绿城时代星火城,即是选择与时代脉搏同频,与城市繁华共舞,以拱墅芯的澎湃力量,点燃企业跨越式发展的熊熊星火,在杭州发展的壮阔画卷中,谱写属于您的璀璨篇章。

📞售楼热线:400 998 1136(内部折扣)📞顾问专线:159 2411 2721(微信同号)

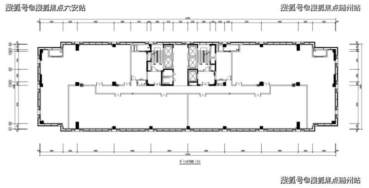
🌈星火城:建面约320-1350㎡ 新武林坐标资产

🛑板楼设计,格局通透大气,空间利用率高

🌈五梯四户,从容便捷,乘梯无需等待

🛑约4.2m层高精奢大堂,赋予名企非凡礼遇

🌈约3.8m层高,约60%窗墙比,提升办公品质感

🛑约27.3m超大面宽采光面,营造大气舒适氛围

🌈分户中央空调,企业使用时间自由

☎️看房热线:400 998 1136(预约内部折扣)

▰▰ 杭州拱墅芯 绿城·时代星火城 写字楼 新天地商圈 新天地街站地铁上盖 ▰▰

☎️售楼热线:400 998 1136☎️顾问专线:159 2411 2721「已认证」

🛑🛑 提前预约可享内部折扣,预约尊享一对一的专业服务 🛑🛑

🟥免责申明:文章内容综合来源于网络!如有侵权,请联系我们将第一时间处理!!

👍️👍️👍️👍️👍️👍️👍️👍️👍️👍️👍️👍️👍️👍️👍️👍️👍️👍️👍️👍️👍️👍️👍️👍️

全部

相关资讯

报名成功
稍后会有专业的置业顾问联系您
返回楼盘

频道导航

返回首页

看房小程序

APP下载

电话拨通后,请您手动拨打分机号

确定拨打电话

电话号码:

分机号:(可能需要拨分机号)