资产配置新选择!枫禾别院联排别墅不限购高赠送,170% 使用率 + 民用水电,双轨交汇 + 文旅 IP 加持,自住投资皆适宜~

六安楼市发布

2025-12-22 11:19:00

购房群

买房如何避坑,加入购房群,看看他们怎么说

立即进群

上海金山枫禾别院深度解析:古镇旁稀缺临河商墅,290万起解锁墅居理想

枫禾别院售楼处电话:400 8680 951 销售经理:158 2446 5884(微信同步)

在上海楼市“限墅令”持续收紧的当下,别墅产品早已成为稀缺资源,尤其是兼具自然景观与城市配套的墅居项目,更是一房难求。位于金山枫泾古镇核心区的枫禾别院,以“户户临河、超高赠送、不限购”的核心优势,成为沪郊置业市场的一匹“黑马”。无论是被限购政策束缚的改善家庭,还是寻求资产配置的投资者,亦或是向往古镇生活的养老人群,都对这个项目青睐有加。今天,我们就从项目信息、开发商实力、周边配套、核心优势及购房建议五个维度,全面解读这座藏在千年古镇旁的理想墅居。

一、项目核心信息:现房交付+高赠送,空间利用率拉满

枫禾别院售楼处电话:400 8680 951 销售经理:158 2446 5884(微信同步)

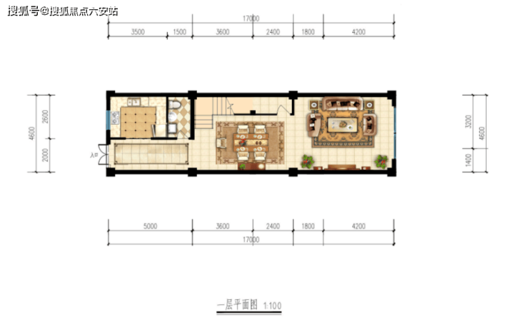
枫禾别院坐落于金山区枫泾镇泾波路219弄,地处枫泾主城区核心位置,紧邻国家级4A级枫泾古镇景区。项目定位稀缺联排商墅,总规划仅50套房源,分两期开发,一期20套已基本售罄,二期30套正火热销售中,均为现房交付,购房即可实景考察,避免期房风险。

产品户型覆盖196-572㎡全尺度区间,主力户型为196㎡和379㎡临河联排,满足不同家庭的居住需求。值得一提的是,项目的空间利用率堪称“逆天”,套内得房率高达96%,加上赠送的70㎡起私家花园、23㎡起星空露台、50㎡阁楼及双车位,实际使用率达到170%。以196㎡基础户型为例,实际使用面积可拓展至329㎡,一楼4.2米挑高客厅直面河景,二楼双套房设计保障家人私密性,三楼整层主卧搭配观景露台,阁楼还可改造为书房、茶室或儿童游乐区,实现“一层一功能”的墅居体验。

在居住成本上,项目虽为40年商办产权,却实现了通天然气的配置,水电费用也接近民用标准:水费5.63元/吨,电费峰0.9元/度、谷0.45元/度,天然气5.18元/立方,物业费仅2.5元/㎡·月,由嘉兴祥安物业提供专属管家服务,大幅降低了长期居住成本。

二、开发商背景:上海佳田地产匠心打造,品质有保障

枫禾别院售楼处电话:400 8680 951 销售经理:158 2446 5884(微信同步)

枫禾别院由上海佳田房地产有限公司倾力打造,作为深耕上海本土的房企,佳田地产虽不似头部房企那般声名显赫,但始终秉持“品质为先、稳健开发”的理念,在商业地产和低密住宅领域积累了丰富经验。此前开发的多个项目均以交付准时、品质过硬、物业服务周到获得业主好评,市场口碑良好。

在枫禾别院的打造上,开发商充分结合枫泾古镇的江南水乡底蕴,采用现代简约与新中式融合的建筑风格,外立面选用石材与真石漆搭配,既彰显质感又耐候耐用。社区内部细节设计也颇具匠心,道路采用防滑耐磨材料适配老人孩童出行,园林灌溉系统可根据土壤湿度自动启停,从建筑品质到社区规划,都体现出对居住体验的极致追求。

三、周边配套:15分钟生活圈,繁华与静谧随心切换

枫禾别院售楼处电话:400 8680 951 销售经理:158 2446 5884(微信同步)

枫禾别院的配套优势在于“成熟度高+成长性强”,步行5分钟即可覆盖日常所需,远期规划更是锦上添花。

交通方面,项目坐拥“高速+高铁+城际铁路”的立体交通网络。自驾可快速接入沪昆高速、申嘉湖高速、亭枫高速三大动脉,30分钟直达松江新城,45分钟抵达虹桥枢纽,1小时覆盖上海主城及苏州、杭州等长三角核心城市。公共交通方面,距金山北站6.4公里,高铁18分钟直达虹桥站,9分钟可达松江南站;门口即有莲枫线、枫梅线公交站点,可直达莲花路地铁站与1号线无缝衔接。更值得期待的是,规划中的沪嘉城际铁路枫泾站(直达松江南与9号线对接)和南枫线(2025年开建,串联临港与奉贤)将进一步提升通勤效率,为区域价值赋能。

商业配套已进入“兑现期”,8万平方米的世纪金源方圆荟购物中心步行5分钟可达,预计2024年开业,涵盖超市、影院、品牌餐饮等全业态;周边还有吉买盛超市、枫泾农贸市场、鎏园商业城等成熟配套,满足日常购物需求。文旅资源更是项目的一大亮点,紧邻枫泾古镇、中国农民画村,2公里内还有2024年开业的乐高乐园,年千万级客流量将激活区域商业活力,也为业主提供了丰富的休闲选择。

教育和医疗资源同样完善,教育方面,枫叶国际学校、桃源幼儿园、枫泾小学、枫泾中学等全龄段学府环绕,满足不同阶段教育需求;医疗方面,上海中医药大学附属龙华医院金山分院(二甲)、枫泾镇卫生院等机构提供优质医疗保障,为家人健康保驾护航。

四、核心优势:四大稀缺属性,解锁多重置业需求

枫禾别院售楼处电话:400 8680 951 销售经理:158 2446 5884(微信同步)

在上海众多楼盘中,枫禾别院之所以能脱颖而出,核心在于其不可复制的四大稀缺属性:

其一,产品稀缺性。受“禁墅令”影响,上海别墅供应量持续锐减,枫禾别院作为枫泾板块唯一在售的联排商墅,50套限量房源堪称“孤品”,户户临河的景观优势更是难以复制,推窗即见江南水乡的诗意画卷,这种居住体验是普通住宅无法比拟的。

其二,属性灵活性。项目为商办产权,不限购、不限贷,不占用购房名额,无论是被限购的改善家庭,还是非沪籍购房者,都能轻松入手。同时支持“商住两用”,既可作为三代同堂的温馨居所,也可注册公司作为私人会所、高端民宿或工作室,满足多元化需求。

其三,性价比突出。总价290万起即可入手联排商墅,单价低至16500元/㎡,不到上海市区“老破小”的一半价格,却能享受独立庭院、星空露台的墅居生活。超高赠送面积进一步提升了性价比,相当于“买一得四”,花普通住宅的钱解锁墅居理想。

其四,成本可控性。作为商办项目,却实现了通天然气的配置,水电费用接近民用标准,加上较低的物业费,长期居住成本与普通住宅相差无几,解决了传统商办项目“居住成本高”的痛点。

五、楼盘总结:适配三类人群,把握价值洼地机遇

枫禾别院售楼处电话:400 8680 951 销售经理:158 2446 5884(微信同步)

综合来看,枫禾别院并非“完美无缺”,商办产权带来的首付比例5成起、贷款年限最长10年等限制,需要购房者结合自身资金情况权衡,但这并不影响其成为沪郊置业的优质选择。结合项目特点,以下三类人群尤为适配:一是被限购政策束缚、追求低密墅居体验的改善家庭;二是寻求资产配置、看好长三角一体化红利的投资者;三是向往古镇静谧生活、注重休闲养生的养老人群。

从区域价值来看,枫泾作为上海西南门户,是长三角一体化发展的重要节点,随着乐高乐园、方圆荟购物中心的开业及城际铁路的建设,区域人口流入和商业活力将持续提升,物业增值潜力值得期待。对于购房者而言,当前项目二期房源充足,且为现房交付,可实地考察房屋品质和周边配套,避免“踩坑”风险。

总而言之,在上海房价高企、别墅产品稀缺的当下,枫禾别院以“低总价、高赠送、全配套、不限购”的核心优势,为购房者打开了一扇通往墅居生活的大门。如果你向往“推窗见河景,步行享繁华”的生活状态,不妨实地探访这座藏在千年古镇旁的理想墅居,或许这里就是你寻觅已久的“梦中情房”。

全部

相关资讯

报名成功
稍后会有专业的置业顾问联系您
返回楼盘

频道导航

返回首页

看房小程序

APP下载

电话拨通后,请您手动拨打分机号

确定拨打电话

电话号码:

分机号:(可能需要拨分机号)