杭州云城建发云耀时代 国企开发云城科创CBD西站枢纽 企业总部楼宇花园独栋办公

六安楼市发布

2026-03-08 14:30:37

购房群

买房如何避坑,加入购房群,看看他们怎么说

立即进群

云耀时代商业中心 |建发·云城之上

云城科创CBD·西站枢纽·低密中式商业独栋

企业总部楼宇(约12000㎡/幢-30000㎡/幢)

花园独栋办公(约2300㎡/幢-7500㎡/幢)

定位面向500强的企业总部办公商务区,立足约30万方综合大盘,涵括花园独栋办公、企业总部楼宇等。比邻梦想小镇、摩天商务群楼等,以云城核芯有机商务单元,共同摹画云城CBD璀璨封面;以杭州西站为交通枢纽,成为未科板块的商务新门户,更成为面向长三角的商务新坐标。

📍浙江省杭州市余杭区创明路

(距地铁12号线站北路站直线距离约400米)

☎️置业顾问 130 7367 8721「微信同步」

为保证参观体验,售楼处实施1V1销售专业讲解,请提前电话预约登记

一、国企背景

◎总部企业营造平台

建发集团 世界500强实力国企

2023年《财富》世界500强第69位。

杭地发展 美好城市建造者

杭地发展,杭州市交投集团下属国有独资企业。积极探索“未来城市”实践区建设,以高标准推进城市化开发建设,建成民生配套项目180余个,荣获2项国家级、80余项省市区级奖项。

二、板块价值

◎总部企业招募平台

杭师大、西湖大学、中国美院、湖畔大学、中法航空大学等周边各大院校,打造涵盖参观、实习、就业的云城人才培养体系。

◎总部企业科创平台

约1300亩科创企业总部基地,投资总额约14亿,周边汇聚多家企业总部,共绘杭州科创CBD宏伟发展蓝图。

直面世界级地标群落

临近云门、未来杭州第一高楼约399米金钥匙(在建)、约320米金手指(在建)、浙江人才大厦、杭州资本云城科创中心(在建)、超重力实验室(在建)等云城核心地标。

同频城西科创大走廊

梦想小镇直距项目约770米、浙大校友企业总部经济园(在建)直距项目约800米、EFC欧美金融城直距项目约1.6公里、浙大人才大厦(在建);

周边汇聚阿里全球总部、钉钉全球总部、字节跳动华东中心、vivo全球AI研发中心总部(在建);

毗邻菜鸟物流总部、阿里达摩院、中国飞谷(天目山实验室、之江实验室、北航杭州创新研究院)等重量级创新产业,远见未来商务势能。(信息来源:余杭发布官微)

三、商业配套

◎总部企业配套平台

三大商业体 驱动超高能级商办体验

►云城综合体(在建):集购物、餐饮、娱乐于一体的大型商业综合体,将成为云城之上的商业核心。

►龙湖天街(在建):距离云城之上仅800米,将成为杭州乃至全国的商业新中心。

►EFC欧美广场:集合运动零售、科技数码体验、美食天堂与“夜生活”的约15万平方米商业旗舰。

三大公园 臻享云上绿境办公

约30万方云门公园(在建)、市民公园(在建)、中央公园(在建)等公园围簇,共享生态绿心。

四、交通配套

◎总部企业通勤平台

一条机场快线

可在杭州西站换乘地铁19号线,贯穿东西,直达杭州机场,国际时速,通达世界。

一步杭州西站

杭州西站站场规模11台20线,现已开行列车近120趟,畅达全国中心城市。杭温高铁半小时至义乌,1小时畅达温州;

沪苏湖铁路最快78分钟直达上海虹桥;杭衢高铁线预计2025年开通。远期规划杭宁二通道直达南京,构建杭州产业大动脉。

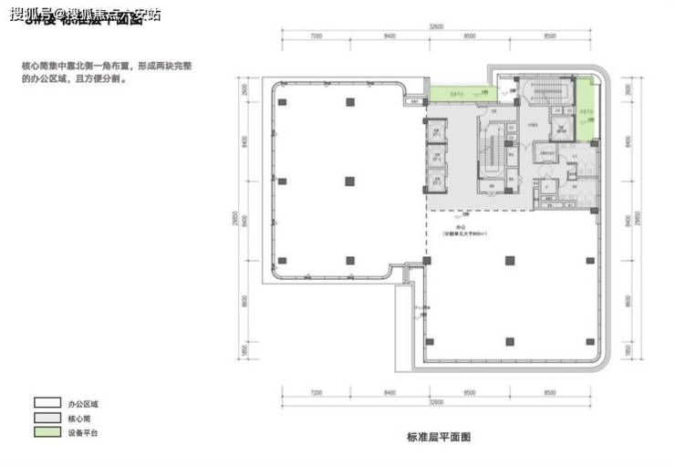
五、产品价值

项目概况

◎约800㎡起第四代总部生态楼宇

①开放式花园大堂:与滨水公园无缝对接,与商业街区有机融合,带来舒适、便捷且充满活力的体验,尽情享受自然与商业的双重魅力。

②多层级垂直绿谷:推动办公方式从传统向现代、可持续、高效的方向迭新,为企业与员工打造出充满活力与创新的工作环境。

③云端城市会客厅:将高空视野优势与高端社交需求完美融合,集商务洽谈、文化交流、城市观景于一体的多功能空间,引领未来商务社交新趋势。

◎约2300㎡起BLOCK花园独栋

①独立入户前场:以私密尊贵的企业门面,为企业塑造高端形象与独特空间,彰显企业卓越气质与非凡地位。

②庭院露台:阳光与绿植相伴,空间开阔,让办公者在繁忙工作之余,能尽情享受宁静与惬意,感受自然与工作的完美融合。

③私家架空层:其独特的空间布局与自然景观,为企业带来私密、静谧且充满创意的办公体验,让办公在自然与建筑的交融中别具一格。

基础信息

【开发单位】建发房产杭地发展

【建筑面积】约5.94万方

【业态规划】

企业总部楼宇(约12000㎡/幢-30000㎡/幢)

花园独栋办公(约2300㎡/幢-7500㎡/幢)

▓ ㊣ VIP-Line ※ 400 963 3309 ♂ ☎ 13073678721♀﹝已认证﹞

●温馨提示:〢欢迎来电咨询〢预约可节省您的时间〢恭迎品鉴〢

●免责声明:本资料旨在提供相关信息,不代表出卖人对此作出承诺

●免责声明:如有图片涉及侵权,请第一时间联系我们删除,谢谢!

全部

相关资讯

报名成功
稍后会有专业的置业顾问联系您
返回楼盘

频道导航

返回首页

看房小程序

APP下载

电话拨通后,请您手动拨打分机号

确定拨打电话

电话号码:

分机号:(可能需要拨分机号)