2025杭州拱墅区绿城时代星火城(房产评测·拱墅区绿城时代星火城优缺点解析)拱墅区绿城时代星火城楼盘详情/拱墅区绿城时代星火城房价/户型

六安楼市发布

2025-06-10 09:07:17

购房群

买房如何避坑,加入购房群,看看他们怎么说

立即进群

拱墅区绿城时代星火城

提前预约可享内部优惠〢匠心钜制-恭迎您的品鉴

☎️【售楼热线】:400 895 8893☎️【案场销售】:132 1616 8490【可加微信】✔✔

绿城时代星火城是拱墅区的一处高端商务地标,在拱墅城市发展的浪潮中,一座座商务地标拔地而起,见证着城市的繁荣与活力。而在这片充满机遇的土地上,绿城时代星火城写字楼以其卓越的品质和前瞻的规划,成为城市芯的商务新地标,赋能企业发展新未来。

杭州市拱墅区长路,紧邻新天地街地铁口C口

占地面积:约13759平方米

总建筑面积:约48034.5平方米

建筑构成:由5幢高层办公楼组成,总层数为17层

办公空间:提供建面约320㎡-1350㎡的办公空间,满足不同企业的需求

商铺数量:共有4套商铺

**新武林核芯商务地标,启幕未来办公新范式**

在杭州新武林核芯腹地,一座约4.8万方的“TOD商务封面”——**绿城时代星火城**正以颠覆性姿态崛起。

作为绿城中国打造的现房商务标杆,项目以地铁3/4号线零距离接驳、约320-1350㎡灵动空间及“生态办公”理念,为全球企业开启智慧商务与资产升值的双重想象。

☎️【售楼热线】:400 895 8893☎️【案场销售】:132 1616 8490【可加微信】✔✔

建筑设计与设施

建筑风格:以现代风格为主,融合了绿色建筑理念,外观简洁大气。

玻璃幕墙设计:独特的玻璃幕墙设计,让写字楼在阳光下熠熠生辉。

中央花园:配备约1800㎡的中央花园,为员工提供良好的工作环境和休闲空间。

智能化系统:采用先进的智能化系统,包括安保、能源、信息等各方面,为企业提供高效、便捷的办公体验。

☎️【售楼热线】:400 895 8893☎️【案场销售】:132 1616 8490【可加微信】✔✔

【开发商】:杭州星源置业有限公司

【管理商】:绿城房地产建设管理集团有限公司

【总占地面积】:约13759㎡

【地上建筑面积】:约48034.5㎡

【产品面积】:约320-1350㎡

【总层数】:17层

【交付时间】:现房

【总户数】:5 幢62套办公、4套商铺

【梯户比】:五梯四户

【标准层高】:约3.8米(3-16层)

地理位置与交通

核心地段:位于杭州拱墅区核心地段,紧邻城市主干道,交通便捷。

地铁交通:紧邻地铁3号线与4号线的交汇处,出行极为便利。

周边配套

商业配套:周边聚集了中大银泰城、嘉里城市之星、杭州电竞中心(亚运场馆)、亚运会新天地主题观赛公园、武林美术馆等地标性建筑。

综合设施:为企业提供了购物、餐饮、娱乐等便利,满足了员工的日常需求。

☎️【售楼热线】:400 895 8893☎️【案场销售】:132 1616 8490【可加微信】✔✔

*一、核芯区位与交通枢纽优势**

- **新武林核芯占位**:项目位于拱墅区新天地商圈核心,紧邻约180万方杭州最大综合体新天地,汇聚中大银泰城、亚运电竞中心、武林美术馆等地标,形成“商务+文化+商业”多元生态圈,助力企业品牌曝光与资源整合。

- **零距离双地铁上盖**:无缝衔接地铁3号线与4号线交汇的**新天地街站**,15分钟直达武林广场、钱江新城等核心商圈,周边秋石高架、留石快速路等4条主干道环绕,30分钟覆盖萧山机场、杭州东站等交通枢纽

办公空间特点

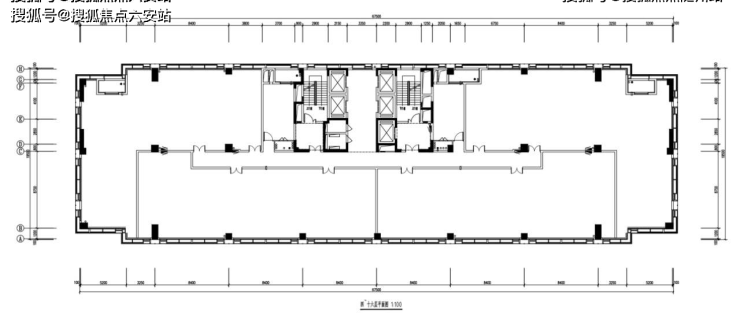
层高与面宽:办公空间层高约3.8米,面宽约27.3米,格局通透大气,营造舒适商务办公体验。

梯户比:5梯4户的设计,企业出行便捷从容。

精装大堂:层高约7.8m的精装大堂,赋能企业形象资产,彰显高端商务礼遇。

☎️【售楼热线】:400 895 8893☎️【案场销售】:132 1616 8490【可加微信】✔✔

销售与服务

物业管理:由绿城房地产建设管理集团有限公司作为管理商,提供高品质的物业服务。

绿城时代星火城写字楼以其优越的地理位置、便捷的交通网络、高端的硬件设施和专业的软件服务,成为了新武林核芯区域的一颗璀璨明珠。无论是对于企业还是个人来说,这里都是一个值得选择的好地方。

建面约320-1350㎡ 新武林坐标资产

☎️【售楼热线】:400 895 8893☎️【案场销售】:132 1616 8490【可加微信】✔✔

☎️【售楼热线】:400 895 8893☎️【案场销售】:132 1616 8490【可加微信】✔✔

板楼设计,格局通透大气,空间利用率高

五梯四户,从容便捷,乘梯无需等待

约4.2m层高精奢大堂,赋予名企非凡礼遇

约3.8m层高,约60%窗墙比,提升办公品质感

约27.3m超大面宽采光面,营造大气舒适氛围

分户中央空调,企业使用时间自由

☎️【售楼热线】:400 895 8893☎️【案场销售】:132 1616 8490【可加微信】✔✔

🚩专业一对一热情服务〢文章内容综合来源于网络、仅分享,版权归原作者所有✔✔

🚩如有侵权,请联系我们,我们第一时间处理✔✔

全部

相关资讯

报名成功
稍后会有专业的置业顾问联系您
返回楼盘

频道导航

返回首页

看房小程序

APP下载

电话拨通后,请您手动拨打分机号

确定拨打电话

电话号码:

分机号:(可能需要拨分机号)