宁波江北金隅大成时代
☎TEL:4009633309【售楼中心】
☎置业热线:13073678721(同微信)
(温馨提示:长按号码可直接拨号)
提前预约〢享内部优惠〢一对一服务
疫情防控不松懈〢请戴好口罩〢谢谢配合

项目信息:
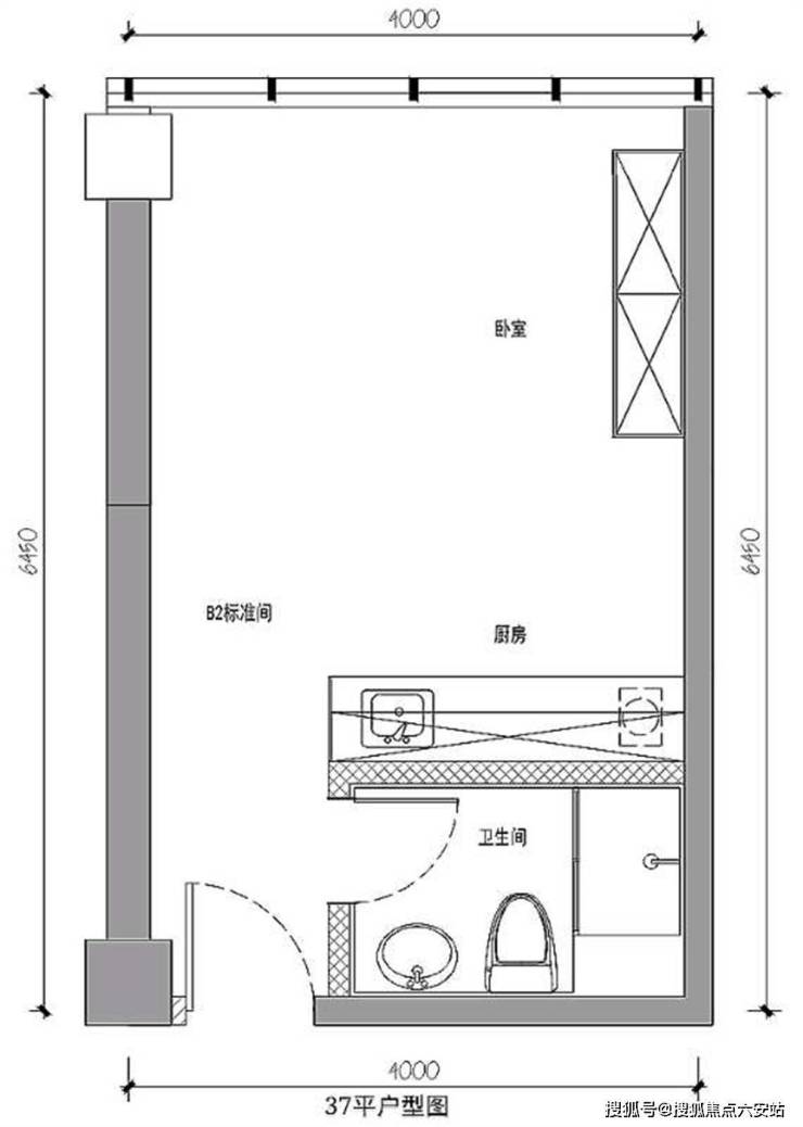
产品:37-55平 平层SOHO(毛坯)
均价:16000(款清交付)
层高:3.5米
梯户比:2梯12户
产权:40年
物业:银亿物业(3.8/平/月)

地段:金隅大成时代位处连接“三江口”与“新三江口”城芯主轴——大闸路与环城北路交叉口路,坐镇新三江口,是全宁波仅有的先进区域.

配套:
商业配套:天一广场、和义大道、老外滩、来福士广场、日湖中心等国际先进商业中心;万豪大酒店、威斯丁、香格里拉大酒店等五星级酒店
浙江第3座超级商业体---万象城
生活配套:绿岛公园、姚江花博园、永丰公园、日湖公园、新三江口公园等公园,还有宁波大剧院、宁波市图书馆
学校配套:惠贞书院、江北外国语学校、江北实验小学中学等名牌贵族学校
医疗配套:宁波市排名前列医院、第二医院
交通配套:2号线正大路站,贯穿镇海,栎社机场,火车站,以及规划中的7号线(家门口)。
项目户型:






项目样板房:




☎TEL:4009633309【售楼中心】
☎置业热线:13073678721(同微信)
(温馨提示:长按号码可直接拨号)
提前预约〢享内部优惠〢一对一服务
疫情防控不松懈〢请戴好口罩〢谢谢配合