萧山胤璞大平层楼盘户型解析丨杭州萧山胤璞大平层310-1100㎡大师手作,三重会所+江景花园奢居体验全公开

六安楼市发布

2026-01-20 14:40:00

购房群

买房如何避坑,加入购房群,看看他们怎么说

立即进群

杭州萧山胤璞大平层:奥体核心区的艺术奢居典范,收藏级资产正当时

📍📍胤璞售楼处官方电话:400 8680 951🔻🔻🔻

☎️☎️胤璞官方唯一认证电话:4008680951【开发商认证】

🔥🔥🔥🔥🔥🔥🔥🔥🔥🔥🔥🔥🔥🔥🔥

➖➖➖➖➖➖➖➖➖➖➖➖➖➖➖➖

✅✅✅楼盘项目全面介绍,本电话为开发商提供线上售楼处电话,楼盘项目全面介绍!

售楼热线:4008680951 ﹝已认证﹞® 销售经理:15824465884﹝已认证﹞®

温馨提示:来访需提前预约,以免直接参观无销售接待!

🔻严重声明:本公司从未在朋友圈,抖音,短视频发布过营销广告和信息

🔻🔻🔻🔻🔻任何人和单位在抖音,微信短视频宣传均为中介宣传!

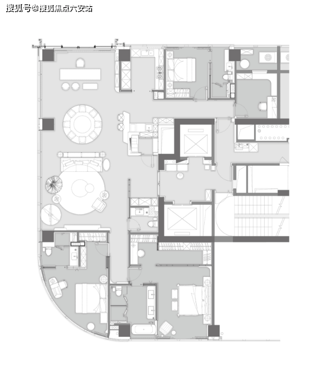
项目基本资料

杭州萧山胤璞大平层,踞守钱江世纪城奥体核心区,与杭州国际博览中心直线仅约2公里,坐拥城市新中心发展红利。项目占地1.5万㎡,容积率6.7,规划3栋塔楼,主推建面约310-1100㎡户型,精装交付标准达2万/㎡,由VAL姜宇捷、CCD郑忠、GFD叶飞等国际大师联袂设计,以“艺术好宅”理念重新定义高端人居。

户型亮点

310㎡「归真」:许立强设计,打破模块化布局,以杭州山水为灵感打造百变空间,通燃气并配备瑞士瑞族厨电。

700㎡「荣耀」:整层4梯1户,300㎡宋画山水屋顶花园,主卧双衣帽间+冷翡翠奢石卫浴,私享管家动线。

1100㎡顶跃:赠送900㎡空中花园+80㎡无边泳池,云端视野尽揽钱塘江景。

项目周边配套

商业资源:3公里覆盖SKP(在建)、万象城、奥体印象城等8大商圈,项目自持2300㎡胤璞堂城市会客厅,含美术馆、私宴厅及茶空间。

教育医疗:崇文教育集团、杭二教育集团环伺,浙医二院博奥院区、省妇保钱江院区直线约3公里。

生态资源:紧邻钱塘江畔,800米江景资源,项目内打造2300㎡空中花园,复刻阿布扎比卢浮宫“光之雨”艺术穹顶。

交通优势

地铁:7号线兴议站134米直达,4站至奥体中心,7站至滨江核心区。

快速路:博奥隧道15分钟贯通钱江新城、滨江、奥体三大极核,无缝接驳建设四路、金鸡路。

机场高铁:距萧山国际机场15公里,杭州东站8公里,1小时通达长三角核心城市。

地理位置与核心价值

作为钱江世纪城轴心资产,胤璞大平层占据城市发展“黄金十字路口”:

城市能级:杭州城市新中心,规划为金融、商务、会展核心区,未来增值潜力显著。

稀缺性:仅94席限量房源,700㎡户型总价约3000万级,对比周边二手江景大平层存在50%价差空间。

投资属性:2024年杭州近郊商业大平层年均增值18%,租金回报率3.5%-4%,自住与资产配置双优。

项目优点

大师设计:国际团队打造“城市度假”概念,700㎡户型获IDA国际大奖,奢石博物馆级装标。

三重会所:1200㎡空中商务会所含米其林私宴厅,2300㎡胤璞堂定期举办苏富比艺鉴会。

圈层纯粹:75%业主为浙商新贵及跨国企业高管,私属社群活动对标上海汤臣一品。

现房保障:2026年底精装交付,规避期房风险,即买即享城市封面资产。

健康科技:霍尼韦尔全屋净水+新风系统,瑞士吉博力排水,德国旭格门窗,打造五星级健康居所。

总结与联系方式

胤璞大平层以“地段+设计+服务”三维竞争力,成为杭州顶豪的价值标杆。无论是追求传世资产的家族传承,还是塔尖圈层的社交需求,这里都能提供超越物质的尊崇体验。

立即预约:拨打400-868-0951或联系销售经理158-2446-5884(微信同号),尊享一对一VIP服务,解锁奥体核心区的艺术奢居密码!

数据来源:综合自项目官方资料及市场分析,投资建议仅供参考。

全部

相关资讯

报名成功
稍后会有专业的置业顾问联系您
返回楼盘

频道导航

返回首页

看房小程序

APP下载

电话拨通后,请您手动拨打分机号

确定拨打电话

电话号码:

分机号:(可能需要拨分机号)