滨杭滨纷城/价格/户型-杭州看房网-滨杭滨纷城(2025年临平核心区滨杭滨纷城)滨杭滨纷城楼盘详情

六安楼市发布

2025-10-13 08:00:00

购房群

买房如何避坑,加入购房群,看看他们怎么说

立即进群

滨杭滨纷城✅杭州滨纷城售楼热线:☎ 400 832 8823「售楼处」☎〢🔻已认证〢◆🔻

杭州临平区东湖新城住宅滨杭滨纷城✅置业顾问:☎ 156 0653 2539「微信同步」☎〢🔻一对一热情服务〢◆🔻

❍ 滨江集团&杭铁集团合作的首个地铁综合体上盖的TOD项目。

TOD是以公共交通(地铁、公交、轻轨)为核心,将居住、购物、娱乐等功能集中一体的城市综合性开发,能促进可持续、宜居的城市发展。滨杭滨纷城✅杭州滨纷城售楼热线:☎ 400 832 8823「售楼处」☎〢🔻已认证〢◆🔻

Chapter 10建筑

❍ gad天团 蒋愈大师设计 三种美学建筑,部分弧形阳台&部分铝板外立面滨杭滨纷城✅杭州滨纷城售楼热线:☎ 400 832 8823「售楼处」☎〢🔻已认证〢◆🔻

在楼盘的南面甚至还放下了一个约10万方的商业综合体。

对于一个超级大盘而言,商业是激活整个社区的活力引擎,但像滨杭滨纷城这样,直接在楼盘里面造一个大体量商业综合体的TOD,整个杭州都屈指可数。滨杭滨纷城✅杭州滨纷城售楼热线:☎ 400 832 8823「售楼处」☎〢🔻已认证〢◆🔻

滨纷城总建面约63万㎡,融合了居住、公园、商业、办公、学校等五大业态,规划有公园、商业、邻里中心、双幼儿园、九年一贯制学校等复合内容。通过联动周边城市资源,项目旨在构建一个面向青年的缤纷生活场,为居民提供一站式的生活体验。滨杭滨纷城✅杭州滨纷城售楼热线:☎ 400 832 8823「售楼处」☎〢🔻已认证〢◆🔻

地铁9号线车辆段上盖,高速串联钱江新城

横跨地铁9号线兴元路站(在建)、康信路站(在建)两大站点,毗邻临平主轴荷禹路、宁桥大道,快速接驳钱江新城、城东新城、滨江,奢享融入城市核芯的生活圈。

全维繁华商圈,移步缤纷的都会奢享

坐拥临平万达广场、临平银泰等,项目自带约10万㎡商业配套,奢享都会缤纷。

都会公园谧境,栖息身心的城市留白

打造约7万㎡公园,区域荟萃临平山、玉架山考古遗址公园,龙安湖公园、龙安湖体育公园等自然资源,隐逸悠闲。

❍ 一芯一环滨纷十境 :开敞式中心花园

一芯:链接全区的滨纷时尚艺术花街

一环:覆盖全龄健康活动的24节气环形约2.4公里跑道

滨纷十境:艺术花街、双景观水池、约2.4公里24节气环形跑道、六感高尔夫花园、摩登剧场、林下多彩花园、五大滨纷儿童乐园、活力运动场(网球场,羽毛球场,五人制足球场,完整篮球场,半篮球场,乒乓球场地)、健身活力场地、帐篷营地

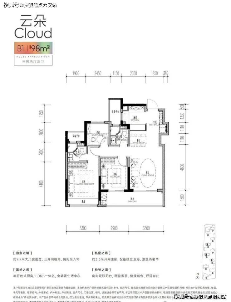
【户型赏析】

若三代同堂或二胎家庭,112㎡四房边套会是一个更经济实惠的选择。整体布局是在98㎡基础上增加了一个北向次卧,在保证各自有独立居住空间的同时还能保留书房这个“现代刚需”。由内到外都给出了绝对的诚意。

然后是非常难得的98㎡边套户型,同样是三房设计,空间却更加舒适,约5.8米的边厅加飘窗,小户型的餐厅客憋屈感一下子消解了,还增加了不少拓展空间。

滨杭滨纷城✅杭州滨纷城售楼热线:☎ 400 832 8823「售楼处」☎〢🔻已认证〢◆🔻

杭州临平区东湖新城住宅滨杭滨纷城✅置业顾问:☎ 156 0653 2539「微信同步」☎〢🔻一对一热情服务〢◆🔻

全部

相关资讯

报名成功
稍后会有专业的置业顾问联系您
返回楼盘

频道导航

返回首页

看房小程序

APP下载

电话拨通后,请您手动拨打分机号

确定拨打电话

电话号码:

分机号:(可能需要拨分机号)