▰▰ 宁波海曙区 江汇城·姚江印 431㎡精装江景大平层 总价557万起 ▰▰
宁波新热土——五江稀贵地脉,姚江南岸崛起
打造海曙副中心、对标外滩、规划约50万方国际滨水综合体;
邵家渡大桥(在建)、机场路高架、通途路(高架)等多维度交通贯通高铁站、机场及江北、海曙区块;
占据城市繁华地脉,车水马龙、光影霓虹,目光所及皆是粲然生辉;更是拥有江河水岸、四季不同景的自然风光!
宁波海曙区 江汇城·姚江印 431㎡精装江景大平层 总价557万起
售楼处电话/位置:400 998 1136「营销中心」✔✔✔
郑重承诺:开发商直销,中介勿扰!
或拨打顾问专线 :159 2411 2721「微信同号」✔✔✔
免责申明:文章内容综合来源于网络!如有侵权,请联系我们将第一时间处理!!
👍️👍️👍️👍️👍️👍️👍️👍️👍️👍️👍️👍️👍️👍️👍️👍️👍️👍️👍️👍️👍️👍️👍️👍️
宁波海曙 江汇城·姚江印 精装江景大平层
宁波无它· 4.79米挑高431㎡精装江景大平层
单户建筑面积:431m²
总 层 数:3-17层,楼幢总高度约87m
单户层高:4.79m非凡层高(3层层高3.6m)
价格区间: 精装修均价约2.52万m²
装修标准:7000元/㎡,亦可专属升级定制
交房时间:现房款清即交付,精装修为款清后18个月
使用率:实际使用率约80%(高拓面积)
梯 户 比:每户享私家专属电梯1-2部,电梯品牌OTIS electric(西子奥的斯)
江汇城姚江印优势简析:
1、水生财,遇水则顺,宁波豪宅的聚集地无不与水结缘,三江,东钱湖,明湖!
姚江南岸、五江交汇,江河资源不可复制,是居住(豪宅)的最佳选择,天然生态景观全城稀缺,滨河绿化公园,健身休憩观光的理想之地。
2、入则宁静,出则繁华,是个闹中取静的区块,交通便捷(邵家渡大桥在建,贯通海曙江北,高架快速抵达机场/高铁站)。
3、配套已经成熟,楼下就是海曙外国语学校,咖啡吧等商墅街区,一路之隔有菜场邻里中心(规划),周边高鑫广场、麦德龙等商圈成熟。
4、自身公区配套齐全,海派酒店式大堂,大气车库入户大堂,健身房,茶室包间配套功能区。
5、明亮阔绰电梯厅,私享1-2部专梯,再家门口就享受酒店式的奢阔。
6、大户高门,3米高定制双开铜门,回家仪式感直接拉满。
7、宁波首家层高4.79米,无敌层高大平层,起居、活动、储藏等全方位功能,全面满足个性化空间需求,空间上的奢侈可谓宁波标杆,居住这样的房子,在家实现全方位生活休憩需求。
8、五星级酒店套房主卧,居住的不仅是奢阔豪华,更是身心的自由!8米面宽落地窗(带独立阳台),看的不仅是五江口四季不同风景,更是春夏秋冬的心情!
9、剧场式客厅(装修后净高3.8米),8米大开间,餐客厅一体贯通,聚会,会客,艺术陈列,无所不能!
10、内庭空中花园,在家足不出户就可感受自然,可贯通于厨房自然天成,烹饪、用餐,自然情景随时切换!
11、花园茶吧,男女主人休憩品茗茶叙,既可私密又可浪漫,应人应时应景都可以别具一格!

12、仅30户,稀缺!一层两户面积统一431平方,业主圈层很纯粹且高端。
13、万科物业,专属配置2-3位(保安管家),享受低密高配的物业服务,还可提供多种私人定制专属服务。
14、门厅,玄关,花园,大尺度赠送空间,实际使用率超乎想象。
15、环境,空间,私密、便利,可满足高端人群商务会客,可做圈层的绝佳之所。
宁波更高定!
值此姚江印,尊享生活峯度
酒店式大堂、书吧童乐、健身房、茶室、商务会客间,对标星级酒店,打造了多个功能空间;
提供入住、托管、尊享、特享等多种定制服务,给予居者一个全新生活方式的温暖归所,触发关于美好生活的更多可能;为全龄层业主带来便利尊享的生活盛宴,兑现菁英阶层的舒意生活。
定制奢装交付(精装交标7000元/m²,另可升级私人专属定制)交付,
高配摩根智能,全屋中央空调、地暖、新风系统,定制铜门、进口大理石;配置约克、西顿、西门子、高仪、百隆等众多一线品牌。
项目甄选万科物业(连续10年蝉联行业百强TOP1,中国物业管理行业的领跑者),为业主提供高品质好服务。满足私人、专属与尊贵的居家需求,给予星级酒店般的归家礼遇。
宁波无它——不止于此,无界空间想象
仅30尊席431m²作品,以前瞻匠心观创新空间设计
4.79米极致层高、大尺度高赠空间、剧场式会客厅、星级套房
东向宽幕景观视野,西向大面积景观内庭
每个空间,都彰显着居者对生活的深度洞察和无限想象!
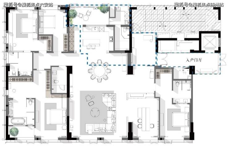
B户型-德馨
建筑面积约431m²| 5室3厅5卫1花园
明亮电梯厅
畅享独立采光、2梯尊享设计,尊崇大宅入户礼仪
奢享阔尺玄关
高门大户、独立鞋帽间,尽享归家仪式与丰富收纳
剧场式会客厅
非凡面宽层高、巨幕全景观,艺术陈列收纳,超越寻常格局
七星级主卧
奢阔双衣帽间、豪华卫浴空间、约8米面宽,尽揽星光滨水绿荫
花园式厨房
景观花园贯连厨房,开放式餐厨岛台,演绎自然星级盛宴生活
全套房设计
动静分区、丰沛收纳、起居私密,赋能每位家人多元需求
高拓空间
可拓大尺度空间、丰盈全屋精彩想象
宁波首发
多维实景,引领美意生活示范
艺术级电梯厅、专梯专属设计,尊享私属归家礼遇;
剧场式客厅、女王休闲吧、品茗雅赏,清风畅行、阳光美艳;
内廷花园、绿意盎然的绿植、宛如一片小森林,足不出户交融自然;
阔绰衣帽间、雅奢卫浴、专属休憩阳台;
更有头排河景,尽揽五江口大境,塔尖级视野,共鸣城市天际风景!
A户型-鸿儒
建筑面积约431m²| 5室3厅5卫1花园
私享电梯厅
艺术级电梯厅、专梯专属设计,尊享私属归家礼遇
酒店式入户门厅
酒店式大堂入户玄关,天幕式顶空,尽享大户归家仪式
巨幕会客厅
非凡面宽层高、玻璃巨幕全景观,起居会客、大有可为
尊崇主卧
阔绰衣帽间、雅奢卫浴空间、专属休憩阳台,彰显总裁套房风范
闲趣景观内庭
闲趣景观花园、静谧自然时光
高拓空间
可拓大尺度空间、丰盈全屋精彩想象
宁波海曙区 江汇城·姚江印 431㎡精装江景大平层 总价557万起
售楼处电话/位置:400 998 1136「营销中心」✔✔✔
郑重承诺:开发商直销,中介勿扰!
或拨打顾问专线 :159 2411 2721「微信同号」✔✔✔
免责申明:文章内容综合来源于网络!如有侵权,请联系我们将第一时间处理!!
👍️👍️👍️👍️👍️👍️👍️👍️👍️👍️👍️👍️👍️👍️👍️👍️👍️👍️👍️👍️👍️👍️👍️👍️