杭州 融创·杭曜之城——融创品质都市改善大盘,金沙湖CBD圆心
☎开发商电话:4009981136「提前预约享内部折扣」☎
☎售楼处热线:15924112721「详情请致电咨询,微信同步」☎
◆疫情期间〢看房需提前预约〢请戴好口罩〢做好疫情防护〢谢谢配合◆

择址四号大街与1号大街交汇处,尽享金沙湖核心繁华资源,构建与时代潮流先锋社区,下沙都市标杆性大盘。
项目位置:四号大街与三号大街,六号大街交汇处
项目名称:融创·杭曜之城
精装限价:30000元/㎡(含3500精装)
项目体量:共10幢高层 可售高层8-9-10幢
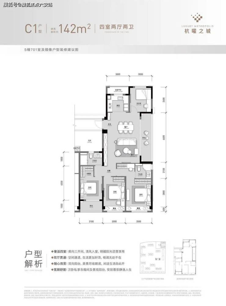
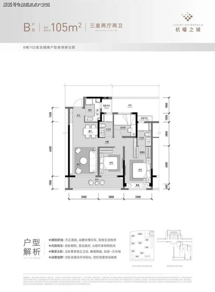
在售面积:约105㎡、128㎡、130m2
容积率:杭曜之城约2.6
绿化率:约35%
总户数:1719户
梯户比:2梯4户
产权性质:70年
层数:(杭曜之城18-27F)
装修标准:3500,具体明细即将发布
项目优势:融创品质都市改善大盘,金沙湖CBD圆心,文教之城,名校比邻,繁华之都,三地铁环绕。
【金沙湖】
金沙湖~杭州较大的人工湖,高达970亩,面积堪比纽约中央公园中心湖
由国际级规划大师卡洛斯设计
涵盖了网红沙滩公园、中央广场、樱花大道、环湖跑道等~
四期金沙湖大剧院于明年建成,继钱江新城第二大剧院
另外项目周边还有杭州电子科技大学、浙江传媒学院、中国计量大学、浙江理工大学等高校在侧,人文底蕴浓厚。
总的来说,配套基本集中在西面金沙湖附近,以及北面大学城附近,配套整体比较多,生活所需不必担心。

项目简介:
杭州融创正荣杭曜之城,融创、正荣双匠联袂时代巨著,落笔钱塘主城之芯,奢享金沙湖核心繁华,核聚钱塘科学城(在建中)智创中心、繁盛中心和人居样板中心于一体,云集创富高知新贵,成就城市新贵宜居主场。
时代之上的大城所望,涵盖居住、商业、乐活景观等多种功能生活场所,营造缤纷多彩生活。精研精装美宅,荟聚一线品牌,以大城质感共鸣时代新贵生活

教育资源:
周边住宅学.区划分为文清小学,由文海实验学校直接管理,为文海教育集团的一个校区,毕业后都直接升入文海实验学校(初中部)就读。
除了地块自身需要配建的幼儿园之外,项目周边还有景苑小学、景苑中学在300m左右。
交通配套:
地铁一号线高沙站直线约800米
金沙大道、金沙湖隧道、德胜快速路直抵市芯
医疗配套:邵逸夫医院、浙江省中医院
行政人文:行政服务中心、金沙湖大剧院、文化中心广场、文体中心、国际会展中心

成熟商圈:
1、龙湖金沙天街:杭州日均客流量第二的综合体
2、金沙印象城:约19万方体量
3、下沙银泰百货
杭州 融创·杭曜之城——融创品质都市改善大盘,金沙湖CBD圆心
☎开发商电话:4009981136「提前预约享内部折扣」☎
☎售楼处热线:15924112721「详情请致电咨询,微信同步」☎
◆疫情期间〢看房需提前预约〢请戴好口罩〢做好疫情防护〢谢谢配合◆