上海宝山金色宝邸(杭天下)丨上海宝山金色宝邸(2025年)首页网站丨上海宝山金色宝邸周边配套-售楼处电话-交房时间-楼盘详情-户型-价格-地址

六安楼市发布

2025-06-29 09:51:32

购房群

买房如何避坑,加入购房群,看看他们怎么说

立即进群

《上海宝山金色宝邸:北上海低密墅区的传世资产》

在宝山2035规划的城市蓝图中,一座承载生态与人文的墅居地标正焕发新生——金色宝邸。踞守罗泾国际生态商务区核心,以1.3容积率、55席类独栋别墅与精装现房交付,为高净值人群打造“资产+生活”双栖价值体。售楼处VIP:400 8680 951,置业电话:158 2446 5884(微信同步),邀您共鉴北上海的墅居传奇。

一、北上海芯,执掌城市战略红利

金色宝邸雄踞潘沪路188弄,距7号线美兰湖站9公里,紧邻s7沪崇高速与沪太路快速路,30分钟直达静安寺、虹桥枢纽。作为上海主城区北扩战略核心,项目坐享三大价值引擎:

产业升级:毗邻北郊未来产业园,聚焦机器人、智能制造等新兴产业,预计导入超5万高端人才;

生态基底:115亩罗泾公园环伺,荻泾河、小川沙河等生态绿带交织,绿化覆盖率超60%;

交通动脉:2025年s7二期通车后,15分钟直通外环,与规划中运量交通形成立体路网。

二、55席类独栋,定义低密生活范式

作为北上海稀缺的整栋产权资产,金色宝邸以四大维度革新墅居标准:

建筑美学:

英伦风格立面搭配红砖坡顶,4.5米挑高客厅与270°观景露台,致敬经典庄园美学;

330-500㎡灵动空间,地下室赠送面积最高达200㎡,支持酒窖、影音室等多元场景定制。

精工基因:

全屋配置大金中央空调、威能地暖、3m净水系统,德国旭格门窗实现45分贝静音标准;

私家电梯直达+双产权车位,匹配塔尖人群私密需求。

三、全维生活场,都会繁华触手可及

金色宝邸以“步行即享”重构生活便利性:

教育矩阵:罗泾中学(234米)、宝山实验学校(1.2公里)构筑全龄教育链;

商业旗舰:

社区底商涵盖世纪华联超市、巴比馒头等生活配套;

3公里内宝山万达广场、龙湖天街(规划)满足高端消费需求;

健康护航:罗泾镇社区卫生服务中心(272米)、华山医院北院(8公里)构建分级诊疗体系。

四、现房资产,价值兑现零时差

在期房风险频发的市场环境下,金色宝邸以三大优势锁定资产安全:

价格倒挂:周边次新别墅挂牌价5万+/㎡,项目现房均价仅3.4万/㎡,价差空间达32%;

产权优势:70年住宅属性不限购,地下室含双车位产权,资产配置灵活度拉满;

增值预期:紧邻规划中的上海国际酒类贸易中心,板块能级提升带动租金收益看涨。

金色宝邸以罗泾生态基底为纸,以英伦墅居美学为笔,正在书写北上海资产价值的新篇章。无论是家族传承的终极居所,还是全球化资产配置的压舱石,这里皆是时代赋予的确定性答案。

即刻致电

售楼处VIP专线:400 8680 951

置业顾问:158 2446 5884(微信同步)

抢占北上海最后55席传世资产,让金水湖畔的清风为您的名字加冕!

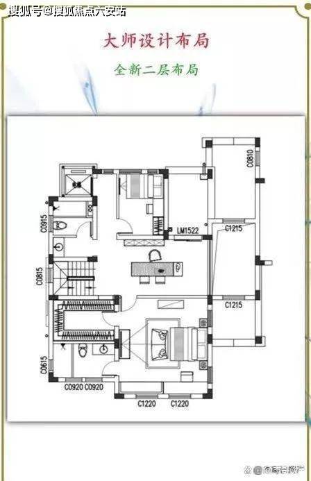
在售户型图赏鉴↓↓↓

样板间赏鉴↓↓↓

全部

相关资讯

报名成功
稍后会有专业的置业顾问联系您
返回楼盘

频道导航

返回首页

看房小程序

APP下载

电话拨通后,请您手动拨打分机号

确定拨打电话

电话号码:

分机号:(可能需要拨分机号)