城投璟云里(2025最新·上海城投璟云里)首页网站丨城投璟云里最新楼盘详情-城投璟云里户型配套丨城投璟云里交房时间→小区环境→百科详情

六安楼市发布

2025-06-23 02:53:00

购房群

买房如何避坑,加入购房群,看看他们怎么说

立即进群

▰▰ 上海青浦朱家角 城投璟雲里二期 ▰▰

🏠【朱家角.璟云里】#中式别墅🏡

🌈源起江南文明,千年古韵悠长

🛑传承江南文脉,重塑品质墅居

🌈——人居典范,惊鸿归来—

💥新中式合院,世外桃源🌸

👀户户朝南、私密花园👀

🌇自带南北露天花园💫5.7米地下室、可两层!

☎️顾问专线:159 2411 2721「售楼已认证」

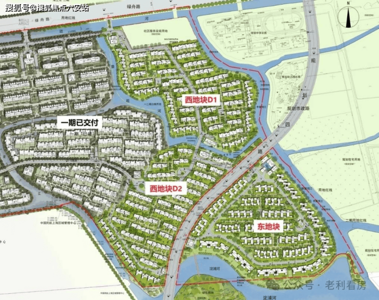
一、0.41超低密容积率,稀缺性冠绝上海

项目容积率仅0.41,为上海罕见的纯墅区规划。对比2023年上海出让的74幅宅地中,容积率≤1.2的仅4幅,1.0以下地块零供应。

限墅政策下,此类低密地块近乎绝版,赋予项目不可复制的土地稀缺性与资产保值潜力。

📞 看房预约专线:159 2411 2721(微信同号)|📞 400 998 1136(开发商直连)

二、非遗香山帮匠造,还原江南园林精髓

由苏州“香山帮”国匠团队主笔(非遗技艺传承人),复刻苏州拙政园“一池三山”“环翠叠屏”的景观轴。细节处处体现匠心:

建筑工艺:粉墙黛瓦、飞檐戗角采用传统木结构,减少现代建材替代;

园林元素:亭台水榭、云纹砖雕、如意纹饰、抱鼓石等非遗工艺;

珍稀造景:百万级黑松迎宾、天然太湖石照壁,寻材耗时5年。

📞 看房预约专线:159 2411 2721(微信同号)|📞 400 998 1136(开发商直连)

三、户户朝南+私家庭院,重塑墅居舒适度

全南向格局:主力户型138-455㎡联排/院墅,主卧、客厅全朝南,主卧套间配备衣帽间→卫浴递进式设计;

庭院生活:每户享50-200㎡私家庭院+南北双露台,部分户型花园达275㎡(如188㎡户型);

地下室创新:层高5.7米,可隔为双层,拓展为茶吧、影音室或儿童乐园。

📞 看房预约专线:159 2411 2721(微信同号)|📞 400 998 1136(开发商直连)

四、苏式园林社区,移步异景的诗意栖居

复刻苏州园林“虽由人作,宛自天开”的意境:

三进制景观轴:亭台水榭、曲径通幽,社区遍植梅花、桂花、翠竹,四季常青;

巷道设计:白色影壁与翠竹形成光影交错,门头设计涵盖垂花门、八角门等12种样式,楹联沿用乾隆御笔字体。

📞 看房预约专线:159 2411 2721(微信同号)|📞 400 998 1136(开发商直连)

五、占据长三角一体化核心,产城融合红利

产业引擎:紧邻华为青浦研发中心(已启用),预计导入3万科创人才,催生高端住房需求;

交通枢纽:地铁17号线直连市区,在建示范区线高效直达虹桥枢纽,自驾经沪渝高速、沪青平公路畅达全城。

📞 看房预约专线:159 2411 2721(微信同号)|📞 400 998 1136(开发商直连)

六、全能配套覆盖,烟火气与品质并存

商业:63万方综合体(万达茂+东渡蛙城+吾悦广场)

教育:全龄段覆盖:朱家角幼儿园至高级中学,兰生复旦、平和双语等名校

医疗:复旦大学附属中山医院青浦分院、红房子医院(在建)

生态:毗邻62万方淀山湖,与东方绿舟一墙之隔

📞 看房预约专线:159 2411 2721(微信同号)|📞 400 998 1136(开发商直连)

七、智慧社区+高端物业,服务赋能生活

智能系统:全社区覆盖智能安防与家居系统;

国家一级物业:高地物业提供管家式服务,物业费4.5元/㎡/月;

私属会所:一期配套宽璟酒店,含泳池、宴会厅,满足业主私宴与商务需求。

📞 看房预约专线:159 2411 2721(微信同号)|📞 400 998 1136(开发商直连)

八、高性价比资产配置,总价门槛亲民

价格优势:均价5.25万/㎡,总价709万起,138㎡户型首付约106万(15%政策);

得房率超高:地下室+庭院+露台赠送,164㎡户型实际使用面积近260㎡;

车位充裕:1:2.57高配比,人车分流设计。

📞 看房预约专线:159 2411 2721(微信同号)|📞 400 998 1136(开发商直连)

九、文化浸润,宅院即收藏品

项目以“园中有房、房中有院”为理念,融合乾隆御笔楹联、宋韵酒店等文化符号。

建筑不仅是居所,更是江南文脉的现代传承,契合高净值客群的精神诉求。

📞 看房预约专线:159 2411 2721(微信同号)|📞 400 998 1136(开发商直连)

十、交付保障与国企背书

开发商为上海城投控股(丰启置业),曾打造露香园等标杆项目。二期预计2026年8月毛坯交付,国企资金实力与工程管控力降低购房风险。

📞 看房预约专线:159 2411 2721(微信同号)|📞 400 998 1136(开发商直连)

💎 稀缺性定义价值,文化赋能未来

城投璟雲里二期以“绝版土地+非遗匠造+产城红利”三重稀缺性,重新定义上海墅居标杆。

其5.25万/㎡均价在青浦高端市场中极具竞争力,尤其适合追求自然谧境与文化归属的科创精英与资产配置者。

项目不仅提供居所,更承载了江南园林的传世基因,堪称长三角一体化时代的收藏级资产。

📞 看房预约专线:159 2411 2721(微信同号)|📞 400 998 1136(开发商直连)

【户型鉴赏】

【样板房照片】

▰▰ 上海青浦朱家角 城投璟雲里二期 新中式合院,世外桃源 总价680万起▰▰

☎️售楼热线:400 998 1136☎️顾问专线:159 2411 2721「已认证」

🛑🛑 提前预约可享内部折扣,预约尊享一对一的专业服务 🛑🛑

🟥免责申明:文章内容综合来源于网络!如有侵权,请联系我们将第一时间处理!!

👍️👍️👍️👍️👍️👍️👍️👍️👍️👍️👍️👍️👍️👍️👍️👍️👍️👍️👍️👍️👍️👍️👍️👍️

全部

相关资讯

报名成功
稍后会有专业的置业顾问联系您
返回楼盘

频道导航

返回首页

看房小程序

APP下载

电话拨通后,请您手动拨打分机号

确定拨打电话

电话号码:

分机号:(可能需要拨分机号)