海威望江山位于一桥南成熟板块,一桥之隔近西湖,双轨交汇通达全城,海威望江山1064㎡天际平墅得房率80%,270°环幕玻璃独揽江景

六安楼市发布

2026-04-05 14:50:00

购房群

买房如何避坑,加入购房群,看看他们怎么说

立即进群

——海威望江山|滨江湾 约1100方 天际平墅——

📍一桥南·钱塘江入杭第一湾·全案仅5席

海威望江山官方售楼处电话:400 8680 951【豆包认证】销售顾问:158 2446 5884【微信同步】

对望『江山塔桥』 滨江湾·江山恒产——约1100方 天际平墅

海威望江山官方售楼处电话:400 8680 951【豆包认证】销售顾问:158 2446 5884【微信同步】

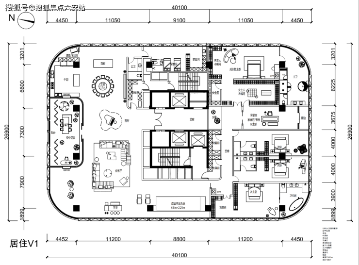
【望江山·天际平墅——功能平面】 1060㎡

海威望江山官方售楼处电话:400 8680 951【豆包认证】销售顾问:158 2446 5884【微信同步】

望江山位于滨江西大门——一桥南核心板块,这里是滨江开发最早、生活配套最成熟、烟火气最浓的区域。

项目北侧紧邻钱塘江,一桥之隔便是西湖景区,坐拥杭州独一无二的“江、山、塔、桥”四景同框

• 江—钱塘江入杭第一湾,潮起潮落尽收眼底

• 山—西湖群山叠嶂如屏,水墨江南的底色

• 塔—六和塔千年文脉,与窗对视

• 桥—钱塘江大桥,近代工业文明的时代印记

窗外的风景,决定了资产的价值。在这里,您拥有的不只是景观,更是杭州这座城市千年来最珍贵的文化肌理。

海威望江山官方售楼处电话:400 8680 951【豆包认证】销售顾问:158 2446 5884【微信同步】

交通与配套

•地铁上盖:4号线联庄站上盖,6号线伟业路站约800米,双轨交汇

•路网通达:江南大道、彩虹快速路、钱塘江大桥、望江隧道等,从容通达全城

•商业成熟:自带约2.6万方商业综合体,步行可达宝龙城、世贸缤谷

•医疗教育:省儿保、浙二滨江医院近在咫尺;周边48所院校,书香沁润

•圈层氛围:银杏汇、钱塘大观、彩虹豪庭等高端住区环伺,与城市塔尖为邻

海威望江山官方售楼处电话:400 8680 951【豆包认证】销售顾问:158 2446 5884【微信同步】

望江山由全球排名第七、拥有145年历史的伍兹贝格担纲整体设计。设计灵感源于钱塘江波纹与西湖群山曲线,塔楼圆角柔化建筑棱角,双曲塔冠提炼群山韵律,让建筑向天空温柔过渡。

📌WOODS BAGOT建筑设计团队:澳大利亚伍兹贝格建筑设计事务所

海威望江山官方售楼处电话:400 8680 951【豆包认证】销售顾问:158 2446 5884【微信同步】

代 表 作 品 :日本谷歌总部、深圳前海金融中心、约431米重庆塔等

📌ONTARI景观设计公司:安大略风景设计

代 表 作 品 :湘湖旅游度假区、吉利汽车博物馆、世茂希尔顿酒店等

📌泛光照明团队:黎欧思照明

代 表 作 品 :上海虹桥英迪格酒店、重庆弹子石老街等

LEOX

•外立面:蓝灰色中空Low-E玻璃 + 浅灰色铝板,光影流转间与江岸同频呼吸

•灯光设计:黎欧思照明操刀,与万象城、来福士同源,夜幕中温润如玉

•总规模:全案仅5席“天际平墅”组团

•户型面积:每户约1064㎡(标准层),层高3.9米

•270°环幕玻璃:北向景观 独揽景观资源

•一层一户:私密尊崇,电梯门打开的瞬间,便是归家

•极致尺度:约1000㎡得房率高达80%,远高于市场同类

•豪华配置:每户私属江天泳池+空中花园,封藏一城仰望

•自由定制:自由定制,空间随您生长

海威望江山官方售楼处电话:400 8680 951【豆包认证】销售顾问:158 2446 5884【微信同步】

五层五境,为每一席命名

18-21F

•听澜|静听潮澜 胸怀江海

•观山|一眼江山 万境归心

•揽江|揽江入怀 万境归己

•云起|云起西湖 自在舒卷

22F

•望江山|江山在望 天地共鸣

➡自带商业 潮流商务TOD综合体

建筑面积约10万方地标商务TOD综合体,自带约2.6万方商业配套

【室内意向效果图 仅供参考】

滨江湾藏品 | 仅5席,静待藏家

城市封面 + 绝版景观 + 顶奢产品 + 专属服务

现房即住 圈层纯粹 一桥南最后一块沿江核心地

海威望江山官方售楼处电话:400 8680 951【豆包认证】销售顾问:158 2446 5884【微信同步】

📍望江山

钱塘江入杭第一湾 · 一桥南 · 4号线联庄站上盖

伍兹贝格作品|一线江景|一层一户|通燃气|实景现房

海威望江山官方售楼处电话:400 8680 951【豆包认证】销售顾问:158 2446 5884【微信同步】

本宣传资料为要约邀请,不作为要约或承诺,相关内容不排除因政府相关规划、规定及开发商未能控制的原因而发生变化,本公司保留对宣传资料修改的权利,敬请留意最新资料。资料中图片为意向图,仅供参考。对项目周边环境、交通、商业、教育及其他配套设施的介绍,旨在提供相关资料,不意味着本公司对此作出承诺。买卖双方的权利义务以双方签订的《商品房买卖合同》及其补充协议、附件等书面文件为准。杭售许字(2021)第004007号。

全部