成都【空港发展云璟林著】售楼处首页_6月房价【空港发展云璟林著】售楼处电话_地址_户型图_楼盘详情

搜狐焦点泸州站

2025-06-03 14:36:00

购房群

买房如何避坑,加入购房群,看看他们怎么说

立即进群

成都【空港发展云璟林著】销售中心电话:028-87788752(中介勿扰)

售楼处价格,户型图,地址,电话,样板房,周边配套,项目介绍

温馨提示:绝不收取任何费用,请提前1小时预约看房,以免带来不好的看房体验

------------------------------------------

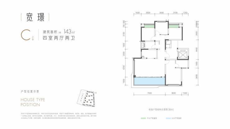
【空港云璟林著】高端人居典范全维度解读作为成都空港城市发展集团倾力打造的品质住区,【空港云璟林著】(备案名:云璟林著苑)正以卓越的产品力引领城南改善型住宅市场。项目位于双流区物联大道核心地段,总占地约83亩,规划21栋11-17层低密洋房,容积率仅2.0,为842户菁英家庭构筑舒居范本。置业热线速览:- 官方售楼处:028-84720058(认证专线)- 渠道经理专线:13281850333(微信同号)温馨提示:为保障看房体验,建议提前预约登记,项目提供免费专车接送服务,详情可致电咨询。产品力解析:作为空港发展·国际怡心湖1号作品,项目主推建面约113-182㎡纯板式洋房,当前主力在售6栋(183㎡)、12-13栋(113㎡)、15-16栋(134㎡)及10-18栋(143㎡)。价格体系呈现梯度分布:- 113㎡:总价210万起- 134㎡:清水250万起/精装2.5万㎡- 143㎡:约2.2万㎡,总价310万起- 183㎡:2.5万㎡起整体均价维持在1.9-2.5万/㎡区间

规划亮点深度呈现:1. 空间配置:采用1T2、2T2梯户比,物业费3.2元/㎡/月2. 户型分布: - 113㎡:1/2/12/13/17/20/21栋 - 134㎡:11/14/15(清水)/16/19栋 - 143㎡:3/4/5/7/8/9/10/18栋 - 183㎡:6栋(限量32套)3. 交付标准:2025年底分批次交付,提供清水/精装双选项户型设计哲学:主力125.68-182.38㎡四居户型经反复推敲,其中143㎡明星户型以"零浪费"空间设计赢得市场认可。无论是成长型家庭还是多代同堂,均能在此找到理想的生活解决方案。创新性的双装修标准,更精准匹配不同客群的个性化需求。

随着怡心湖城市副中心加速成型,【空港云璟林著】凭借黄金区位、产品创新及国企背书,正持续获得高净值客群青睐。

成都【空港发展云璟林著】销售中心电话:028-87788752(中介勿扰)

售楼处价格,户型图,地址,电话,样板房,周边配套,项目介绍

温馨提示:绝不收取任何费用,请提前1小时预约看房,以免带来不好的看房体验

全部

相关资讯

报名成功
稍后会有专业的置业顾问联系您
返回楼盘

频道导航

返回首页

看房小程序

APP下载

电话拨通后,请您手动拨打分机号

确定拨打电话

电话号码:

分机号:(可能需要拨分机号)