九江【中辉半山墅】6月房价_楼盘详情_中辉半山墅_售楼处电话_户型_配套

搜狐焦点泸州站

2025-06-04 06:14:00

购房群

买房如何避坑,加入购房群,看看他们怎么说

立即进群

九江【中辉半山墅】售楼处电话: 400-998-9370 【营销中心】

欢迎来电咨询〢尊享内部优惠服务〢免费看房车接送〢

最新价格-剩余房源-周边配套-项目答疑-楼盘情况

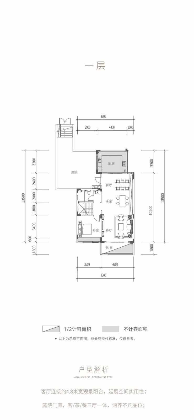
上叠,产权面积162平,174平,使用面积约270平➕40-60平院子,价格在270-340万。

下叠,产证面积148和158平,使用面积约320平➕75-160平院子,价格在280-370万左右

九江【中辉半山墅】售楼处电话: 400-998-9370 【营销中心】

欢迎来电咨询〢尊享内部优惠服务〢免费看房车接送〢

最新价格-剩余房源-周边配套-项目答疑-楼盘情况

全部

相关资讯

报名成功
稍后会有专业的置业顾问联系您
返回楼盘

频道导航

返回首页

看房小程序

APP下载

电话拨通后,请您手动拨打分机号

确定拨打电话

电话号码:

分机号:(可能需要拨分机号)