【湖语颂】

湖语颂售楼处:4008378831
置业顾问:13057464852(同微信)
天镜湖畔 法式人文墅区
建面约105-140㎡装修洋房
建面约155-185㎡法式叠墅
洋房样板房和别墅板房均已开放,火爆热销中
基础信息
所属区位:太仓市·科教新城·天镜湖
楼盘地址:太仓市科教新城天镜湖东桴亭路与文渊路交界处
开发商:碧桂园&龙光&金地
物业类型:8层洋房 + 6层叠墅
产权年限:70年
绿化率:超37%
物业费:商业3元、住宅1.74元、能耗0.5元
装修配置:精装洋房+低密叠墅
产品信息:建面约105-140㎡装修八层洋房
建面约155-185㎡法式低密叠墅
一、天镜湖畔 太仓唯一都市湖居

湖语颂位于科教新城天镜湖板块,距离天镜湖仅800米,占据太仓唯一的都市湖居资源。
【交通配套】沪苏通铁路太仓站、太仓南站、G15沈海高速
【教育配套】南郊幼儿园、科教新城实验小学、良铺中学、太仓高中
【周边商业】南洋广场、华旭广场、万达广场、华发商城、天镜湖商业街、海运堤风情商业街
【公园】天镜湖公园

二、湖语颂 全太仓唯一的低密墅区
湖语颂,承袭莫奈花园法式优雅基因,景观与建筑巧妙结合,形成容积率约1.6法式景观境界。
产品规制上,限高8层24米,匠造33栋6层叠拼别墅、18栋8层精装洋房,三面环水,北高南低人性设计,呈现法式经典的对称布局。
户型打造上,建面约105-140㎡装修八层洋房,建面约155-185㎡阔绰人文叠墅,不同的产品形态匹配出城市人物的理想生活方式。

三、ONE系迭代著品
湖语颂建筑风格为法式风格,立面材料为局部石材、真石漆、保温一体板及L0W-E中空玻璃,整体色调为经典的法式米白色搭配灰色坡屋顶,透露出法式优雅高贵的质感。

四、法式园林,让生活沉浸于浪漫
湖语颂,将高雅的艺术气质,浓郁的历史沉淀,充满浪漫气息的规制融入到每一个景观细节中,打造一座充满浪漫气息和艺术色彩的社区,每一次归家都是一场穿越花园般旅行。
【三大仪式入口】

【全龄活动场地】

【约1200米健康跑道】

【绿意森氧社区】

【法式商业街区】

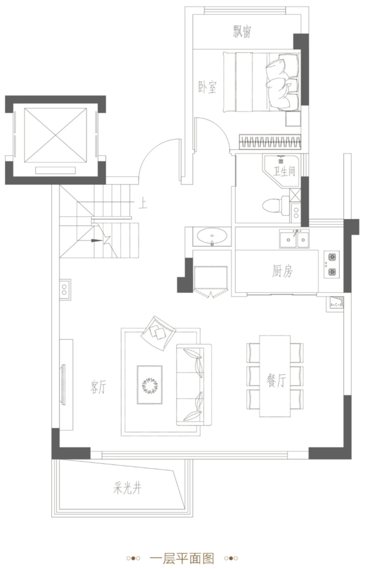
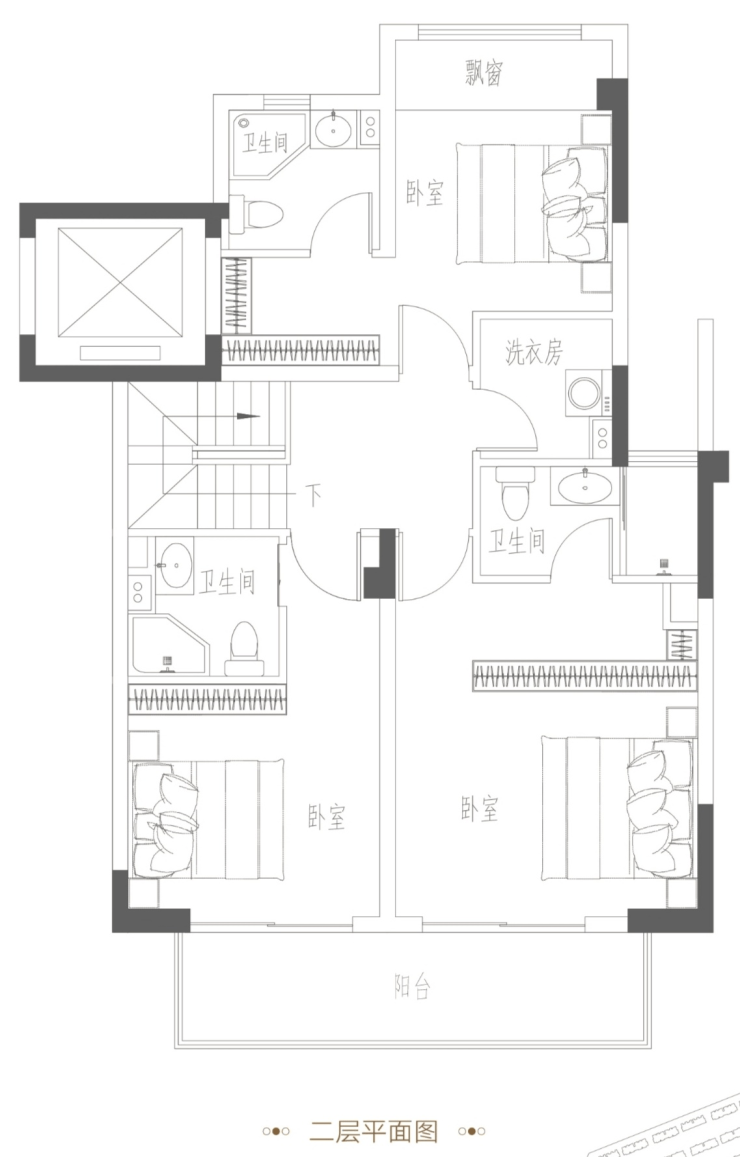
五、户型赏析(得房率:约82%~87%)
叠墅A户型(中叠)


户型亮点:
约6.55米面宽双层阳台,双层270°转角飘窗
南向四卧,动静分离
三层约7.2米面宽大横厅
四层双套房设计
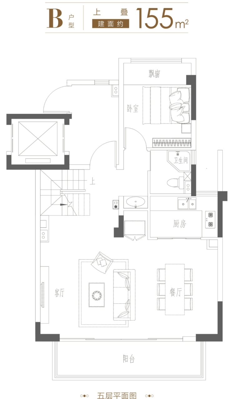
叠墅B户型(上叠)



户型亮点:
独立入户设计
约6.15米面宽阳台
五层约7.55米面宽大横厅
六层奢阔主卧设计
叠墅B户型(中叠)


户型亮点:
独立入户设计
约6.15米面宽双层阳台
三层约7.55米面宽餐客厅
四层全套房设计
叠墅B户型(下叠)



户型亮点:
负一层储藏室建面约80㎡,约5.1米层高
一层约7.55米面宽大横厅
二层全套卧设计
洋房户型:

户型亮点:
三开间朝南
约1.6米进深双阳台|约7.3米面宽
约3.6米面宽主卧套房
约4.75米面宽厨房

户型亮点:
约10.9米大面宽|三开间朝南
约6.3米面宽阔绰双阳台| 进深约1.8米
约4米大面宽客厅
约3米面宽主卧套房|全开间飘窗

户型亮点:
超12米大面宽|三开间朝南
约7.6米面宽| 约1.8米进深双阳台设计
约5.3米面宽阔绰客厅
约4.05米面宽奢华主卧套间| 步入式衣帽间
湖语颂售楼处:4008378831
置业顾问:13057464852(同微信)
热销中......
➽售楼中心〢欢迎来电咨询〢看房请提前预约〢专业一对一热情服务➽