速看!全面掌握无锡新吴区中邦拉普达楼盘资讯!2025 最新售楼处价格、深度评测、详尽户型配套等尽在中邦拉普达首页网站

连云港楼市发布

2025-04-18 22:52:17

购房群

买房如何避坑,加入购房群,看看他们怎么说

立即进群

无锡新吴区中邦拉普达

☎️售楼专线:4009983632 ☎️

☎️置业热线:13270987731(同微信)☎️

➤售楼处〢欢迎咨询〢提前预约可享内部优惠〢➤

1 地段位置

中邦拉普达位于新吴区江溪板块。

新吴区位于无锡市偏东部,西邻经开区、北接锡山区,常住人口约72万人,是吴文华的发源地和核心区域。区域内不仅有着鸿山文化、泰伯庙等历史文化底蕴,还依靠苏南硕放国际机场、城际高铁新区站、京杭大运河以及多条高速公路形成了水陆空立体交通体系。

目前,新吴区已经云集了包括SK海力士、阿斯利康、博世等在内的全球知名企业,集齐了六个特色小镇——硕放航空小镇、鸿山物联网小镇、慧海湾小镇、梦溪小镇、梅里文化小镇和旺庄智能装备小镇。☎️售楼专线:4009983632 ☎️

区域配套也在不断升级

江溪板块处于新吴、梁溪、锡山三区交汇处,故此可以享受三区配套。板块距离成熟商圈长江路沿线相对较近,已经形成了丰富的人居氛围,虹桥医院、仁德医院、春城实验小学等多项配套云集。去年地铁3号线通车,给板块再添一项人居利好。

除此之外,板块内产业发展也颇具潜力,集办公、商业于一体的大型产业园——中韩科技园已经公示规划。整个园区建筑采用合理的功能布局和高度设计,打造最美城市天际线,提升城市形象和品质,将吸引更多的优秀企业和人才入驻。

目前,江溪板块居住氛围成熟,品牌房企扎堆,万科、融创、保利、中海、国信等都已入驻,区域整体居住品质也能够得到保障。☎️售楼专线:4009983632 ☎️

2 产品特色

中邦拉普达位于新吴区江溪板块,与中邦欢乐颂、中邦城市花园均是同一开发商,且彼此相邻。

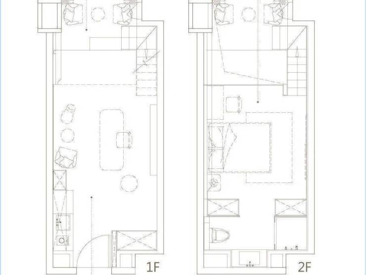
该项目是集酒店、LOFT公寓、艺术中心、特色商业为一体的一站式城市综合体,目前在售的是三期LOFT产品,主力户型建面约40㎡左右,少量东西侧户型50-67㎡,6梯30户,总高33层,毛坯交付。

据悉,该项目1楼为入户大厅,挑高5.8米,目前已经装修完毕;2楼为配套酒店大堂;3楼配备商业及㎡的公区;4楼至8楼为酒店客房;9楼至32楼为可售LOFT公寓;33楼为艺术展厅。项目外立面为150米全玻璃幕墙,每户LOFT均拥有全落地窗

值得一提的是,该项目同步运营拉普达艺术中心,配备艺术中心、朵云食堂、沉浸式剧场、休闲书吧、健身房、共享办公室、屋顶花园等。另外,星巴克咖啡已经入驻。☎️售楼专线:4009983632 ☎️

3 户型分析

目前中邦拉普达在售9、10、16、22层的LOFT公寓,以42㎡户型为主,东西两侧有少量50-67㎡户型。

42㎡户型挑高4.6米,毛坯交付,购房者可自行架构两层,随意发挥,亦可打造为双钥匙户型,更有利于后期出租。

另外由于其商办的性质,购房者在用作住所之外,也可用作工作室、产品展示空间等。

值得一提的是,该户型整体方正,带有全落地窗设计,配备6+12+6中空LOW-E钢化超白玻璃。

4 周边配套

该项目北侧即为地铁2号线庄桥站,一站可至宜家荟聚商圈,两站达到锡山八佰伴,四站可换乘地铁3号线;反方向,两站可到九里河公园,四站可到映月湖公园,六站可至无锡东站高铁站。☎️售楼专线:4009983632 ☎️

项目周边有3个公交站台,分别是春暖路(中邦城市)站、金福南苑站和中邦城市站,776、162、758、802路经过,可通往南长街、梅村、人民医院、宜家、工博园等区域。稍远一些还有春阳路(锡沪路)站等。

项目紧邻太湖大道高架和无锡东收费站,往东可通往景云立交、往南可通往金城东路高架,市内外出行均属便利。但是需要注意的是,毗邻京沪高速,来往大车较多,路面情况一般。

项目周围主要有中海寰宇天下幼儿园,有东亭实验小学、东亭中学、春阳实验小学等。需要注意的是,该项目属于商办性质,无学区划分。

距离项目最近的医院为锡山人民医院东亭分院。

无锡市锡山人民医院东亭分院是锡山人民医院(集团医院)成员单位,为二级乙等综合性医院。医院现开放床位150张,儿科、妇科、消化内科、中医骨伤科为特色专科。☎️售楼专线:4009983632 ☎️

项目周边商业资源非常丰富。首先,其本身自带部分商业,目前已经投入运营,据悉其三期产品三楼还将设置部分特色商业。其次,项目距离宜家荟聚商圈、锡山八佰伴不远,乘坐地铁仅需1-2站。

另外,项目周边还有新城中央公园、伯渎港滨水小公园等休闲配套,空闲时间亦可乘坐地铁前往九里河湿地公园和映月湖公园野餐露营等。

5 价格分析

该项目在售LOFT公寓,整体均价12000元/㎡,具体一房一价。目前同板块内暂无公寓项目在售,最近的公寓项目为锡山区的中堂嶺寓,建面30-80㎡,均价13500元/㎡。

项目周围住宅项目主要有国信世家臻园、绿城诚园、银城春晓观棠、东城中央府、吉宝季景铭邸等,均价在1.5-2.2万/㎡左右。

二手房也以住宅产品为主,中邦城市花园均价1.6万/㎡左右,华宇观澜华府均价1.9万/㎡左右,金福北苑均价1.5万/㎡左右。仅有紧邻中邦拉普达的中邦欢乐颂为公寓产品,均价1-1.1万/㎡左右。

目前同板块内中邦拉普达为唯一在售公寓项目,产品具备一定的稀缺性。另外,板块内住宅项目要么价格相对较高,要么对首付要求较高,中邦拉普达12000元/㎡的均价还是比较可观的,对于想要临时过渡的年轻人来说是个不错的选择。

而且项目不仅是做公寓产品,其附带的艺术中心倘若运营得当,也会形成一股助力。最后,板块内已经形成了浓厚的人居氛围,周边也有一些企业,所以出租的可能性也比较大。

但是需要注意的是,公寓产品在后期转手中存在一定的局限性,所以总体来说该项目具备一定的价格潜力但不能过分期待。☎️售楼专线:4009983632 ☎️

6 项目亮点

靠近地铁高架 出行便利

项目靠近地铁2号线庄桥站和太湖大道高架,无论是自驾出行还是公共出行都比较便利。

配套全面 商业丰富

项目自身配备商业,距离宜家荟聚、锡山八佰伴也不远,可以满足生活购物和娱乐需要。

具备一定的稀缺性

目前同一板块内无公寓产品在售,产品具备一定的稀缺性。

配备艺术中心 综合发展

项目配备朵云咖啡、朵云食堂、沉浸式剧场等艺术设施,更吸引年轻人

无锡新吴区中邦拉普达

☎️售楼专线:4009983632 ☎️

☎️置业热线:13270987731(同微信)☎️

➤售楼处〢欢迎咨询〢提前预约可享内部优惠〢➤

全部

相关资讯

报名成功
稍后会有专业的置业顾问联系您
返回楼盘

频道导航

返回首页

看房小程序

APP下载

电话拨通后,请您手动拨打分机号

确定拨打电话

电话号码:

分机号:(可能需要拨分机号)