解码苏州吴江汾湖静湖雅院价值!康力大道旁轨交 S7 规划,中加枫华国际学校 2.6 公里,大渠荡生态公园 751 米漫步空间

连云港楼市发布

2025-07-06 14:02:00

购房群

买房如何避坑,加入购房群,看看他们怎么说

立即进群

静湖雅院

一线湖景房,近高铁、高架

高科技住宅,自带医疗商业

售楼热线:400 870 9151 ✔✔✔☎

置业顾问:131 8266 1993(同微信)✔✔✔☎

售楼处位置:400 870 9151 ✔✔✔☎

预约看房,置业顾问一对一对接,享受额外优惠!

价格:13000起

得房率:78%-82%

车位比:1:1.45

产权年限:70年

绿化/容积率:35%/1.6

总栋数/总户数:12栋/564户

建面98㎡ 建面115㎡ 建面125㎡ 建面100㎡

交房时间:期房 2025.10.31

10号楼 6号楼 15号楼 9号楼 12号楼 8号楼等

总楼层数:高层23-24层/小高层7-9层/花园洋房6层

物业公司/费用:实地物业/3.08元/月/平米

位置:江苏省苏州市吴江区汾湖高新区海南路和中心河路交叉口

交通:多维路网畅行长三角

静湖雅苑地理位置得天独厚,交通出行极为便捷。项目约 7 公里处直达苏州南站,这里是沪苏湖铁路与通苏嘉甬城际高铁的 “十字” 交汇点 。待沪苏湖铁路通车后,从汾湖出发,8 分钟便能抵达松江,20 分钟可直达上海虹桥枢纽,大大缩短了与上海的时空距离,实现高效商务通勤与便捷出行。

在公路交通方面,区域内临沪大道、康力大道、芦莘大道等城市主干道纵横交错,且沪渝高速、常嘉高速已建成通车,为自驾出行提供了极大便利。无论是前往苏州城区,还是去往上海、浙江等地,都能快速上高速,畅行长三角。规划中的 S7 号线未来将与苏州 4 号线和上海 17 号线无缝对接,届时,轨道交通将进一步提升居民出行的便捷性,构建起更为完善的区域交通网络,实现半小时苏沪同城生活,让静湖雅苑的居民轻松融入长三角都市生活圈 。

商业:多元业态满足日常所需

静湖雅苑周边商业配套丰富,全方位满足居民的购物、休闲、娱乐需求。项目自带约 5000㎡社区商业,其中逗号集市拥有品类丰富的食材摊位,配备多渠道智能收银系统,并提供在线商城和智能配送机器人线下配送等服务,日常生鲜采购足不出社区即可完成;家有健康建筑面积约 500㎡,提供常规医疗检测、远程视频问诊、自助购药等医疗相关服务的智能化医疗设备,支持 7*24 小时自主购药和体检,时刻守护居民健康;保实盒等商家入驻,带来一站式购物体验,满足日常生活琐碎需求 。

此外,汾湖购物中心、华润万家、嘉乐城等大型商业体分布在项目周边。汾湖购物中心汇聚众多品牌商家,涵盖服装、餐饮、娱乐等多元业态,是居民周末休闲购物的好去处;华润万家作为知名连锁超市,商品种类齐全,品质有保障,为日常购物提供便利;嘉乐城同样集购物、餐饮、休闲于一体,拥有富泰超市、社区集智慧生活超市(吴江嘉乐城店)等,满足居民日常采买的同时,还能提供休闲娱乐选择,丰富居民生活。

教育:全龄优质教育资源环伺

教育资源是衡量一个区域居住价值的重要因素,静湖雅苑周边教育配套完善,从幼儿园到中学,全龄优质教育资源环伺。项目南侧约 800 米处,集中了汾湖实验幼儿园、实验小学、实验中学 。汾湖实验幼儿园以科学的教育理念和专业的师资团队,为幼儿提供良好的启蒙教育环境;实验小学注重培养学生的综合素质,教学成果显著;实验中学拥有丰富的教学经验和优秀的师资力量,为孩子的中学学习打下坚实基础,让孩子在家门口就能享受一站式优质教育服务,家长接送省心省力 。

在项目东侧约 2.6 公里处,还有中加枫华国际学校,学校引入国际化教育课程和先进教学方法,为孩子提供国际化的教育视野和学习体验,满足不同家庭对教育多元化的需求,为孩子的未来发展提供更广阔的空间 。

医疗:为健康生活保驾护航

健康保障是生活的基石,静湖雅苑周边医疗配套能够为居民的健康生活保驾护航。吴江区第五人民医院距离项目较近,作为区域内重要的医疗服务机构,医院科室设置齐全,拥有专业的医疗团队和先进的医疗设备,可满足居民日常诊疗、疾病预防、康复保健等基本医疗需求 。此外,若遇到更为复杂的医疗问题,周边还有三级综合中山医院青浦分院朱家角人民医院等可供选择,为居民的健康增添多一层保障,让居民在日常生活中无医疗后顾之忧 。

生态休闲:拥抱自然诗意生活

静湖雅苑周边生态环境优美,是亲近自然、享受休闲时光的理想之地。项目鼎立在洋砂荡湿地公园东畔,与三白荡生态公园、大渠荡生态公园也相距不远 。洋砂荡湿地公园拥有约 1200 亩的广阔湖景,270° 无敌观湖视野让居民推窗即揽自然风光,私藏约 800m 一线生态资源,清晨可在湖边慢跑,呼吸清新空气,傍晚可漫步湖畔,欣赏落日余晖 。三白荡生态公园、大渠荡生态公园同样景色宜人,公园内绿树成荫、花草繁盛,设有休闲步道、健身设施、儿童游乐区等,无论是亲子游玩、户外运动,还是散步放松,都能在此找到属于自己的一方天地,让居民在繁华都市中也能时刻拥抱自然,享受诗意生活 。

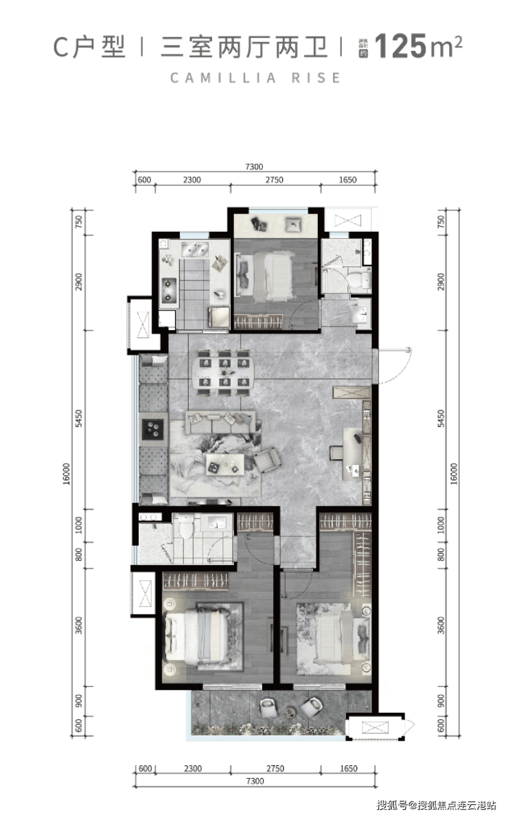
户型鉴赏:售楼热线:400 870 9151 ✔✔✔☎

静湖雅院

一线湖景房,近高铁、高架

高科技住宅,自带医疗商业

售楼热线:400 870 9151 ✔✔✔☎

置业顾问:131 8266 1993(同微信)✔✔✔☎

售楼处位置:400 870 9151 ✔✔✔☎

预约看房,置业顾问一对一对接,享受额外优惠!

全部

相关资讯

报名成功
稍后会有专业的置业顾问联系您
返回楼盘

频道导航

返回首页

看房小程序

APP下载

电话拨通后,请您手动拨打分机号

确定拨打电话

电话号码:

分机号:(可能需要拨分机号)