杭州钱江世纪城大平层-明华誉港城
售楼处电话:400 998 3631✔✔
明华誉港城营销中心电话4009983631 ✔✔
明华誉港城售楼处位置400-998-3631
明华誉港城置业顾问:131 6013 6853【营销中心】
【总占地面积】:10904㎡
【地上建筑面积】:70745㎡
【总层数及层高】:共2栋楼,1#楼36层, 2#楼37层,标准层高3.95米
【户型产品】:建面约240/270㎡光幕平层、建面约480/540㎡寰景跃层
价格:1000万起
【梯户比】:6梯4户(含1部消防梯)
【总户数】:260套
【车位配比】:约1:2
【物业】:全球五大行物业公司—高力国际
【项目动态】:现房销售
商业:周边坐拥三大城市地标:奥体中心、国际博览城、大莲花碗4大综合体:SKP、奥体印象城、钱江印、钱江世纪城公园商业 市公园:钱江世纪城公园、樱花跑道 教育:崇文、杭二中、学军、惠灵顿; 医疗:浙二滨江分院、省妇保、省儿保3所三甲医院等医疗资源;
在杭州大湾区建设、拥江发展战略及亚运会三重机遇叠加下,奥体-世纪城板块已形成城市地标集群:莲花碗体育中心、国际博览中心、亚运村商业构成城市级配套矩阵。半径三公里内汇聚SKP、奥体印象城等四大商业综合体,钱江世纪城公园与樱花跑道构成生态走廊,形成国际赛事承办与城市CBD功能复合型发展极。
明华誉港城作为钱江世纪城核心区标杆项目,以国际金融中心标准打造高端平层产品。建筑采用三面全景幕墙设计,整合云端会所、恒温泳池、智能健身中心等高端配套,构建兼具国际视野与潮流体验的都会生活场域。其空间布局融合钱塘江自然韵律与天体运行意象,通过现代建筑语汇诠释城市轴心区的时代精神,为全球精英群体提供匹配城市发展高度的品质栖居方案。

明华誉港城大平层项目是杭州奥体板块的一座高端住宅项目,为业主提供高品质的生活和服务。项目火热销售中,届时将成为杭州房市的一大亮点。
园区采用“围合式”布局,融合“钱塘江”水韵灵感,映衬周围自然生态,配合全冠移植的特色名贵树种,营造出环景畅谈式“艺术公园”。精细规划生活配套,以“私家会所”标准打造。内置室内恒温泳池、私人健身会所等多功能奢华空间。
室内设计大师力作 鼎配云端艺术生活SLD梁志天先生、I.I.D.L郑仕樑先生两大全球TOP级设计大师天团亲自执笔,融汇潮流审美与先进的居住理念,联袂匠作超越时代的美学作品,钜献与世界对语的艺术品味与生活方式。
白色的岩板与桃木背景墙让人联想到枫丹白露宫殿的动人秋天。打造生活中的高级感不需要繁琐复杂的浮夸装饰,而是要在空间之内做减法。深色与浅色的交叠呼应之间,让曲线与直线共同构建空间的秩序,匹配房间整体弧形外观,打造内部张弛有度、流畅自如的线条感。

开放的客餐厅打破桎梏,餐桌选择了金属与石材结合的独特设计。在完美的采光环境下,让每一次品尝美食的过程也充满仪式感。水纹座椅呼应房间临江主题,让浮动的波纹化为稳固的装饰,承托住和家人一起分享的美好回忆。



作为与房间主人最紧密链接的空间,主卧设计对于展现其品位、格调、审美等多样精致需求的标准更为具象。真皮包裹的墙面让房间内部的光线变得沉稳而内敛。便是其拥有的全套房设计,并且都带有独立的生活空间,包括主卫及个人衣帽间。保证了家庭成员适合的交流尺度,进可以全家交流,退可以互不干扰。

主卧衣帽间与书房通铺深色实木地板,为整个空间奠定了静谧的色感,营造一种回归纯粹与本真的氛围。次卧往往可以体现更广阔的生活理念,在与整体设计风格和谐一致的基础上跳出主卧的氛围 ,提供一个不一样的情感空间。时光在这里好像变得绵长,缓慢也表现出隐秘而深邃的价值。
所有的东西都是精装的,包括中央空调,户式中央空调等等。对于家庭来讲,这种生活品质将会大大提升他们的生活享受,实际上和庭院是一致的生活享受。主卧衣帽间与书房通铺深色实木地板,为整个空间奠定了静谧的色感,营造一种回归纯粹与本真的氛围。


●寰幕视野:每户270°超大环幕视野,带来IMAX般观景效果,打造空间的光瀑体验;
●阔绰层高:约3.95米奢阔层高,厚载一城荣耀,匹配高净值人士的气度与胸襟。
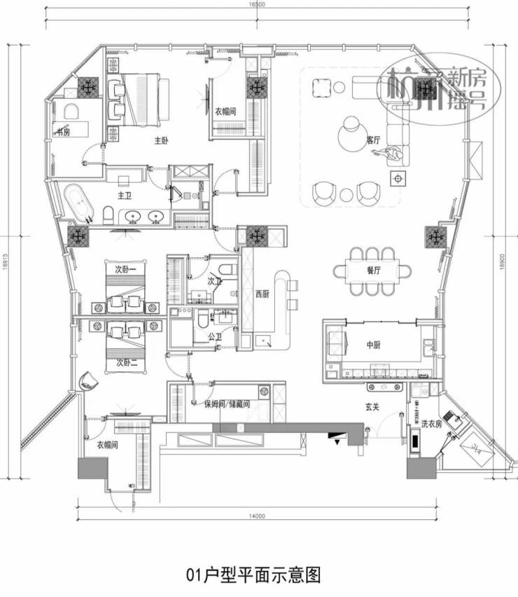
户型图
ENTER TITLE
精装意向空间:
甄选GAGGENAU、Dornbracht、LAUFEN、kaldewei等全球尖端品牌,品质匠奢样板,荟聚鎏金艺术,领驭时代审美,重构杭州大平层的空间想象。
项目设施:一楼设有会所餐厅、二楼健身房、恒温泳池,面积:240-270平层,480-540方复式,层高:3.95米,得房率:83%-86%,装标:13000/平米,装修品牌:劳芬、当代、卡德维、嘉格纳等国际一线品牌),物业公司:高力国际物业,精装交付:2023年底前交房,
杭州奥体大平层明华誉港城售楼处电话
☎:400-998-3631(预约看房热线√√)
明华誉港城售楼处电话/地址☎:400-998-3631【售楼中心已认√√】
➨����售楼处电话:400-998-3631√√【电话预约☎】售楼处营销中心:400-998-3631(开发商热线)售楼中心电话/地址☎:4009983631【售楼处已认证√√√】★来电可了解楼盘最新动态,项目全面介绍(包含最新发布:在线预约看房丨在售房价优惠丨户型面积房源丨交房时间丨交通地铁丨商业配套丨教育资源丨小高层洋房丨独栋别墅丨联排合院丨商业别墅丨得房率丨容积率丨小区环境丨优缺点分析丨楼盘测评丨在售户型图丨项目介绍丨最新房源丨周边配套丨详细解答丨一对一热情讲解〢区域板块等信息!★郑重承诺:由开发商旗下销售团队全程营销策划,房源信息真实有效!如果您想了解更多楼盘详情,欢迎提前预约拨打售楼处电话400 998 3631√√√(已认证)
Here is the professional English translation of the property listing for Minghua Yugang City in Hangzhou:
Minghua Yugang City | Grand River-View Residences | Qianjiang Century City, Hangzhou
Sales Hotline: 400 998 3631 ✔✔
Marketing Center: 400 998 3631 ✔✔
Location Inquiry: 400-998-3631
Property Consultant: 131 6013 6853 [Marketing Center]
Luxury Finishes from ¥13,000/sqm | Directly Opposite IFC | Asia-Olympic Gateway | Twin Riverfront Towers Landmark | 270-500㎡ Cloudtop Mansion with Ready-to-Move-In River Views!
Rising at the core of Hangzhou’s Asia-Olympic hub, Yugang City showcases luxury finishes starting at ¥13,000/sqm, commanding unparalleled views of the International Finance Centre (IFC). As the definitive Asia-Olympic gateway and an iconic twin-tower riverside landmark, it offers 270-500㎡ cloudtop mansions where every square meter exudes prestige.
Project Highlights:
Unit Sizes: 240-540㎡
Panoramic 270° River/City Views | Total Price from ¥10 Million
Site Area: 10,904㎡
Above-Ground GFA: 70,745㎡
Towers: 2 (Tower 1: 36F; Tower 2: 37F) | Floor Height: 3.95m
Layouts:
240/270㎡ River-View Flats (Full-Height Glazing)
480/540㎡ Sky Duplex Penthouses
Elevator Ratio: 6 elevators (incl. 1 fire elevator) for 4 units
Total Units: 260
Parking Ratio: ~1:2
Property Management: Colliers International (Top 5 Global Firm)
Status: Ready-to-Occupy
Surrounding Amenities
Commercial:
3 Landmarks: Olympic Sports Center, International Expo Center, "Big Lotus Bowl" Stadium
4 Major Malls: SKP, Olympic Impression City, Qianjiang In, Qianjiang Century City Park Commercial
Parks: Qianjiang Century City Park, Sakura Running Trail
Education: Chongwen School, Hangzhou No.2 High School, Xuejun School, Wellington College
Healthcare: 3 Top-Tier Hospitals – Zhejiang Univ. Binjiang Branch, Provincial Women’s & Children’s Hospitals
Urban Context
Capitalizing on the Hangzhou Bay Area Initiative, Riverfront Development Strategy, and Asian Games legacy, the Olympic-Century City zone has emerged as a cluster of urban icons: Lotus Bowl Stadium, International Expo Center, and Asian Games Village form a city-class infrastructure network. Within a 3km radius lie four commercial complexes (including SKP and Olympic Impression City), while Qianjiang Century City Park and Sakura Running Trail create an ecological corridor. This fusion of global-event hosting and CBD functionality establishes a world-class development hub.
Design & Architecture
As a benchmark project in Qianjiang Century City’s core, Minghua Yugang City delivers premium residences crafted to IFC standards. Featuring triple-aspect floor-to-ceiling glazing, it integrates elite amenities: cloudtop clubhouse, heated indoor pool, and smart fitness center – curating a cosmopolitan lifestyle blending international perspectives with contemporary luxury.
The design synthesizes the Qiantang River’s rhythm with celestial motifs, using modern architectural language to embody the spirit of Hangzhou’s central axis. It offers global elites a residence aligned with the city’s soaring ambition.
Landscape & Lifestyle
Courtyard-style layouts draw inspiration from the Qiantang River, harmonizing with natural ecology through mature transplanted trees to create an art-inspired garden park. Life-enriching facilities rival private clubs, including a heated indoor pool and exclusive gym.
Interior Mastery
Curated by global top designers SLD (Steve Leung) and IIDL (Ivan Cheng) – winners of the "Interior Design Oscar" – interiors merge avant-garde aesthetics with innovative living concepts.
Key Features:
LDK integrated layout (Living-Dining-Kitchen) maximizing spatial fluidity
Elegant palette: beige-gray and warm gray tones
Artistic accents: bespoke chandeliers, art glass, wine cellars
White marble and walnut walls evoke Fontainebleau’s autumnal elegance
Streamlined curves and clean lines mirror the building’s architectural arcs
Open-plan dining with river-inspired ripple-patterned seating
"Sophistication thrives in restraint," the design declares, balancing dark-light interplay to craft serene, modern interiors with international flair.
Epitome of Urban Living
Minghua Yugang City redefines luxury living in Hangzhou’s Olympic hub. With sales in full swing, this development is poised to become a defining landmark in the city’s property landscape.
Note: Image placeholders and repetitive formatting from the original text have been omitted for clarity
杭州奥体大平层明华誉港城售楼处电话
☎:400-998-3631(预约看房热线√√)
明华誉港城售楼处电话/地址☎:400-998-3631【售楼中心已认√√】
➨����售楼处电话:400-998-3631√√【电话预约☎】售楼处营销中心:400-998-3631(开发商热线)售楼中心电话/地址☎:4009983631【售楼处已认证√√√】★来电可了解楼盘最新动态,项目全面介绍(包含最新发布:在线预约看房丨在售房价优惠丨户型面积房源丨交房时间丨交通地铁丨商业配套丨教育资源丨小高层洋房丨独栋别墅丨联排合院丨商业别墅丨得房率丨容积率丨小区环境丨优缺点分析丨楼盘测评丨在售户型图丨项目介绍丨最新房源丨周边配套丨详细解答丨一对一热情讲解〢区域板块等信息!★郑重承诺:由开发商旗下销售团队全程营销策划,房源信息真实有效!如果您想了解更多楼盘详情,欢迎提前预约拨打售楼处电话400 998 3631√√√(已认证