苏州科技城太湖大道 2025 号建发和萃澜庭,其售楼中心网站首页,为您呈现实时报价、绝美园林景观、多样户型区间、深度房型解析及丰富商圈配套 。

连云港楼市发布

2025-06-19 18:01:00

购房群

买房如何避坑,加入购房群,看看他们怎么说

立即进群

建发和萃澜庭

售楼热线:400 870 9151 ✔✔✔☎

置业顾问:131 8266 1993(同微信)✔✔✔☎

售楼处位置:400 870 9151 ✔✔✔☎

预约看房,置业顾问一对一对接,享受额外优惠!

价格:均价20000起6#洋房限时加推123㎡245万起

容 积 率: 1.80

占地面积:67474.7㎡平方米

建筑面积:121454平方米

交房时间:2024.12.30

产权年限:70年

总 户 数:1074户

绿 化 率:37.00%

物业公司:金地智慧服务

得房率:80%-88%

在售楼栋:20幢 16幢 25幢 12幢 8幢 19幢等

梯户比:小高层2梯4户/花园洋房0梯0户/花园洋房1梯2户

开 发 商:武汉城建 金地集团 建发集团

装修情况: (精装交付,中央空调、地暖、新风三大件齐全)

楼盘地址:苏州科技城太湖大道与福东路交汇处

一、交通配套

有轨电车1号线、2号线“龙康路站”步行约605-627米

规划地铁9/10/11/13号线(具体以政府批复为准)

周边公交站:下许桥(178米)、西渚实验小学(395米)等,覆盖63路、330路、441路、3001路社区巴士等10余条线路

紧邻太湖大道、中环北线西延,自驾通达市区及周边区域便捷

二、商业配套

生活新空间(50米)、时尚水岸(约1.1公里)、丰茂里商业街、星悦里(在建)等,涵盖餐饮、购物、休闲

自建约2000㎡商业街,含便利店、药房、咖啡厅等,步行5分钟可达太湖大道沿线餐饮集群

三、教育资源

小学:科技城实验小学(西渚校区)

中学:新区第三中学

科技城外国语学校、伊顿外籍人员子女学校、江苏省苏州实验中学(科技城校区)等

幼儿园:西渚实验幼儿园、龙惠幼儿园等多所

四、医疗资源

科技城医院(三甲):距离约603米,提供综合诊疗服务

社区卫生服务:科技城卫生服务中心(467米)、社区内设24小时健康驿站及AED急救设施

五、生态休闲

公园:诺贝尔湖公园、彩石湖公园(3公里内)、大阳山国家森林公园、太湖湿地公园(车程一刻钟内)

文体设施:科技城文体中心(1公里内)

六、社区内部配套

规划宠物友好公园、无障碍通道、智能垃圾分类站,公共区域WIFI全覆盖

? 位置示意

【户型介绍】

101㎡ 三室两厅两卫,经典的小三房,胜在两卫设计,功能性很齐全,但面积注定了空间尺寸,餐厅会稍显拥挤。

112㎡ 三室两厅两卫,这个户型很棒,面积放大之后,各空间的尺度也上去了,开间5米的竖厅不用再摆餐桌,市面上同等面积做5.6-6米的横厅,这个竖厅会更舒服,而且还是边户。

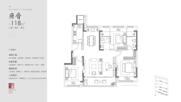
118㎡ 三室两厅两卫,你敢相信这是118㎡的户型?不计飘窗和半个阳台的赠送,这个户型的得房率至少在85%左右,标准的南北通、大横厅、大阳台、主卧的空间也不小,外卫还是干湿分离!100分,很优秀!这也是和萃澜庭的主力户型,都在10-11层的小高层,买不到。

建筑面积约118㎡样板间效果展示图,具体以实际交付为准

四开间朝南,全明通透,尺度感、舒适感直接拉满!约5.7米奢阔大横厅,连接景观阳台,非同一般的“尺度”,一进门便是扑面而来的大气感和充足的采光,享IMAX观景视野。

独立餐厅设计,北向观景,与厨房隔而不离,让宴客空间更显尊崇,盛载阖家团圆场景;全屋6个高附赠飘窗,空间利用率极高,可以说放在整个苏州市场都很能打!

建发和萃澜庭

售楼热线:400 870 9151 ✔✔✔☎

置业顾问:131 8266 1993(同微信)✔✔✔☎

售楼处位置:400 870 9151 ✔✔✔☎

预约看房,置业顾问一对一对接,享受额外优惠!

全部

相关资讯

报名成功
稍后会有专业的置业顾问联系您
返回楼盘

频道导航

返回首页

看房小程序

APP下载

电话拨通后,请您手动拨打分机号

确定拨打电话

电话号码:

分机号:(可能需要拨分机号)