苏州姑苏平江观梅雅园小区环境-2026笔记已更新!平江观梅雅园区位|地址丨价格丨周边配套丨楼盘详情

连云港楼市发布

2026-01-15 17:52:00

购房群

买房如何避坑,加入购房群,看看他们怎么说

立即进群

苏州平江观梅雅园-苏州城区纯墅+低密阔绰于奢华

🔻🔻🔻🔥🔥🔥🔥🔥🔥🔥平江观梅雅园售楼处电话4008083612(已认证)🔥🔥🔥🔥🔥🔥🔥🔻🔻🔻售楼处已盛大开放(欢迎━致电预约)

最新消息

平江新城首个联排案名公示

平江观梅雅园

容积率仅有1.05

规划9幢3F联排+2幢8F洋房

南向面宽近10米,侧边大露台

沿河而建 自带商业配套

妥妥的出入皆繁华静谧

根据规划公示显示,该项目将打造11幢住宅,其中9幢3F联排,2幢8F洋房,比较纯粹的低密改善住宅。

平江观梅雅园由苏州城投开发,定位为姑苏核心区罕见的低密改善型住宅,项目规划9幢3层联排别墅 + 2幢8层洋房,总计约855户,容积率仅1.05,绿化率高达39.36%,是当前苏州主城区内难得一见的“类别墅”产品。项目摒弃了高密度高层模式,以“少而精”的产品逻辑,打造纯粹的圈层居住体验。

其建筑外立面采用深灰色屋檐 + 大面积落地玻璃窗 + 金属线条勾勒的新中式风格,既呼应了平江路一带的古城肌理,又注入了现代简约的审美语言,形成“古韵今风”的视觉张力。项目沿河而建,部分楼栋享有水岸景观,营造出“观水听风”的诗意生活意境。

交付标准 :全屋精装修交付,三大件(空调、地暖、新风)标配,主卧配备独立衣帽间与卫浴,厨房采用中西双厨设计,预留电梯位,满足多代同堂的居住升级需求。

🔻🔻🔻🔥🔥🔥🔥🔥🔥🔥平江观梅雅园售楼处电话4008083612(已认证)🔥🔥🔥🔥🔥🔥🔥🔻🔻🔻售楼处已盛大开放(欢迎━致电预约)

分布上,联排别墅沿河排开,洋房沿分布,圈层更加纯粹。小区东侧为主出入口,北侧为次出入口,出入口均设计了汽车坡道,是姑苏核心区罕见的地下停车位。

💎平江观梅雅园售楼处电话☎ 400 808 3612 ✅✅「已认证」💎

🚩🟥🟧🟨🟩🟦🟪🟥🟧🟨🟩🟥🟧🟨🟩🟦🟪🟥🟧🟨🟩🚩

项目的外立面让人惊艳,大面积落地玻璃窗+深灰色屋檐+金属线条勾勒,既有现代感又不失姑苏古城古韵底色。

🔻🔻🔻🔥🔥🔥🔥🔥🔥🔥平江观梅雅园售楼处电话4008083612(已认证)🔥🔥🔥🔥🔥🔥🔥🔻🔻🔻售楼处已盛大开放(欢迎━致电预约)

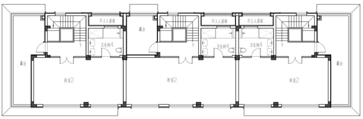
项目户型也同步公示,3F联排南北接口入户,南向面宽近10米。

1F为活动区,餐客厅一体化,中西双厨,干湿分离客卫,预留电梯位,南向卧室,可作为老人房。

2F生活区,餐客厅上空挑空,两个独立的卫生间,可根据自己的需求,设计成两个套房。

💎平江观梅雅园售楼处电话☎ 400 808 3612 ✅✅「已认证」💎

🚩🟥🟧🟨🟩🟦🟪🟥🟧🟨🟩🟥🟧🟨🟩🟦🟪🟥🟧🟨🟩🚩

3F为生活区,边户主卧大套房+侧边L型大露台,中间户主卧大套房+北侧露台。让生活充满更多可能。

🔻🔻🔻🔥🔥🔥🔥🔥🔥🔥平江观梅雅园售楼处电话4008083612(已认证)🔥🔥🔥🔥🔥🔥🔥🔻🔻🔻售楼处已盛大开放(欢迎━致电预约)

8F洋房户型,4房2厅2卫设计,全屋飘窗,南向面宽约10.2米,四开间朝南,其中3卧室均朝南,并且南向双套房。

南北双阳台,南向双联阳台,保证采光和通风的充足,入户家政间,保证收纳空间。

土拍回顾——

该地块成交于今年1月中旬,由苏州荣和工程建设拿下,成交楼面价18022元/㎡,地块容积率约1.05!

💎平江观梅雅园售楼处电话☎ 400 808 3612 ✅✅「已认证」💎

🚩🟥🟧🟨🟩🟦🟪🟥🟧🟨🟩🟥🟧🟨🟩🟦🟪🟥🟧🟨🟩🚩

苏地2024-WG-Z46号地块,紧邻护城河,地块占地约1.18万㎡,非常迷你。

该地块也是一宗商住混合用地,容积率约1.05,根据出让要求,建筑高度≤40米。

根据拿地要求,该项目建筑立面要与周边区域整体风貌协调,强化建筑“第五立面”设计,立面材质以铝板、石材为主,采用透视围墙。

🔻🔻🔻🔥🔥🔥🔥🔥🔥🔥平江观梅雅园售楼处电话4008083612(已认证)🔥🔥🔥🔥🔥🔥🔥🔻🔻🔻售楼处已盛大开放(欢迎━致电预约)

💎平江观梅雅园售楼处电话☎ 400 808 3612 ✅✅「已认证」💎

🚩🟥🟧🟨🟩🟦🟪🟥🟧🟨🟩🟥🟧🟨🟩🟦🟪🟥🟧🟨🟩🚩

🔻🔻🔻🔥🔥🔥🔥🔥🔥🔥平江观梅雅园售楼处电话4008083612(已认证)🔥🔥🔥🔥🔥🔥🔥🔻🔻🔻售楼处已盛大开放(欢迎━致电预约)

该地块还自带一个建面约不小于700㎡的商业。未来业主下楼即可满足日常生活所需,生活方便。

苏州平江观梅雅园-苏州城区纯墅+低密阔绰于奢华

💎售楼处官方电话☎ 400 808 3612 ✅✅「已认证」💎

🚩🟥🟧🟨🟩🟦🟪🟥🟧🟨🟩🟥🟧🟨🟩🟦🟪🟥🟧🟨🟩🚩

💎网上营销官方电话☎ 400 808 3612 ✅✅「官方认证」

📍📍 ➖➖➖➖➖➖➖➖➖➖📍📍

不负信赖,品质再进阶

不负热望,璀璨绽新

🔝☎【售楼热线】:400 808 3612 ☎⫷

🔝☎【置业顾问】:13013766193「微信同步」⫷

🔝➤售楼处〢欢迎咨询〢提前预约可享内部底价〢➤

🔝售楼处直销热线|中介勿扰|欢迎致电咨询

🔝温馨提示:为了节约您的等待时间,看房请提前致电售楼处预约!!!

🔻🔻🔻🔥🔥🔥🔥🔥🔥🔥🔥🔥🔥🔥🔥🔥🔥🔥🔥🔥🔥🔥🔥🔥🔥🔥🔥🔥🔥🔥🔥🔥🔥🔻🔻🔻

🔝⑉⑉⑉ıllı⑉🔻售楼处(周一至周日 9:00--20:00)一对一咨询🔻看房需要提前电话预约,避免可能案场无人接待!提前预约可享内部优惠〢匠心钜制-恭迎您的品鉴⑉ıllı⑉⑉🔝☎官方售楼处电话: 400 808 3612 ✅✅「已认证」💎 ☎置业顾问经理专线 :13013766193「微信同号」💎

全部

相关资讯

报名成功
稍后会有专业的置业顾问联系您
返回楼盘

频道导航

返回首页

看房小程序

APP下载

电话拨通后,请您手动拨打分机号

确定拨打电话

电话号码:

分机号:(可能需要拨分机号)