中海姑苏第
姑苏核心·双轨交汇天街畔
约130-183㎡奢阔平层
购房专线:400 870 9151 ✔✔✔☎
房产顾问:131 8266 1993(微信同步)✔✔✔☎
营销中心地址:400 870 9151 ✔✔✔☎
预约参观,专属顾问全程服务,尊享特别礼遇!
单价:3.8-4.7万
130㎡(三室两厅双卫)
155㎡(四室两厅双卫)
183㎡(四室两厅三卫)
项目占地:约1.6万平方米
总套数:186户
容积比率:约1.8
绿化比例:30.00%
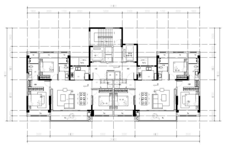
建筑形态:规划2栋14层、4栋17层低密住宅
主力户型:约130㎡、155㎡、183㎡
投资建设:中海地产
物业服务:中海物业
交付标准:精装交房,装修标准≥3000元/㎡
项目地址:姑苏区沧浪街道劳动路南彩虹路西
姑苏第(备案名:胥涛雅筑)仅规划6栋14-17层低密住宅,堪称稀缺臻品。建筑设计融入苏绣框景美学,园林景观借鉴《姑苏十景册》意境,户型设计契合现代居住理念,打造130-183㎡都会平层典范。
交通配套:双地铁环绕(2号线、5号线),快速接驳劳动路、桐泾南路等主干道,畅达西环、南环、干将西路等城市要道
商业配套:毗邻胥江天街,汇聚超30%苏州首进品牌,缔造时尚生活圈
教育资源:胥江小学、胥江实验中学等优质学府环伺
医疗资源:苏州市立医院、苏大附二院近在咫尺
生态休闲:举步可达劳动公园;沿胥江景观步道直达桐泾公园,尽享自然诗意
【户型臻品】130-183㎡隐贵平层。匠心打造超凡居住体验,以阔绰空间、精选用材、考究工艺、智能收纳等细节,成就都会隐贵宅邸。
130㎡户型布局示意
130㎡采用两梯两户设计,配置三居室。入户玄关储物空间充裕,收纳系统完善。南向三面宽达13.2米,6.4米横厅与景观阳台无缝衔接。

155㎡户型布局示意
155㎡同为两梯两户设计,规划四房两卫。户型格局与183㎡相似,南向面宽14.9米,5米客厅衔接8米观景阳台。

183㎡户型布局示意
183㎡采用两梯两户设计,配置四房三卫(含双套房)。方正布局零浪费;南向四开间面宽16.3米,6米客厅连接9米阳台;独立玄关预留家政间;餐厨区南北通透;主卧套间约32.6㎡,配置双台盆卫浴系统;次卧套间面积可观(卫浴无窗)。

中海姑苏第
姑苏核心·双轨交汇天街畔
约130-183㎡奢阔平层
购房专线:400 870 9151 ✔✔✔☎
房产顾问:131 8266 1993(微信同步)✔✔✔☎
营销中心地址:400 870 9151 ✔✔✔☎
预约参观,专属顾问全程服务,尊享特别礼遇!