雁云庭
吴中甪直首个四代宅
打造8栋4F叠墅+5栋高层四代宅
带空中花园,高赠送
雁云庭售楼热线:4008709151 ✔✔✔☎
雁云庭置业顾问:131 8266 1993(同微信)✔✔✔☎
雁云庭售楼处位置:售楼热线:400-8709-151 ✔✔✔☎
雁云庭预约看房,置业顾问一对一对接,享受额外优惠!
价格:待定
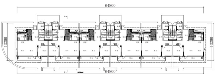
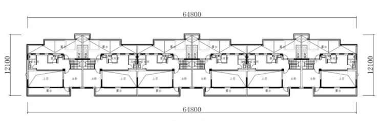
总楼栋:8幢4F叠墅+5幢24-25F四代高层产品
容积率:1.8
占地面积:37740.2平
总建筑面积:102549.31平
开发商:斜港置业、吴城置业和甪直房地产开发公司联合
地址:吴中区甪直镇鸣市路南侧、经三路东侧

雁云庭售楼热线:4008709151 ✔✔✔☎
项目位于甪直镇鸣市路南侧、经三路东侧,容积率1.8,占地面积约3.8万㎡,2023年12月被斜港置业&吴城置业&甪直房地产开发竞得,成交总价约6.8亿,成交楼面地价10000元/㎡,未来房价或许会有惊喜。

产品亮点:雁云庭售楼热线:4008709151 ✔✔✔☎
第四代住宅设计
高层采用奇偶错层布局,奇数层南向、偶数层北向设置空中庭院,实现垂直绿化;户型为4房2厅3卫,客餐厅一体化设计,装标≥2000元/㎡
低密叠墅组合
下叠:附赠独立院子,挑空客厅设计,南向卧室连通阳台
上叠:顶层设星空阁楼与超大露台,打造私人空中花园
配套与区位:雁云庭售楼热线:4008709151 ✔✔✔☎
交通:依赖自驾,北接甪直大道(连通金鸡湖大道),南靠东方大道(通往独墅湖高教区)
教育:北侧星泽实验学校(星海教育集团)已投用
商业:规划1座邻里中心、2条商业水街,现有南山维乐城等配套
市场动态:雁云庭售楼热线:4008709151 ✔✔✔☎
项目周边新房高层均价约2.2万+/㎡,叠墅2.8-3万/㎡,雁云庭售价待定
作为板块首个四代宅,其低密叠墅与空中庭院设计有望提升区域房价天花板









