姑苏区中海姑苏第(2025年-中海姑苏第实时更新)中海姑苏第首页网站-房价户型配套

连云港楼市发布

2025-06-30 10:24:00

购房群

买房如何避坑,加入购房群,看看他们怎么说

立即进群

苏州姑苏区胥江天街旁-中海姑苏第

售楼处电话:400 998 3631✔✔

中海姑苏第营销中心电话4009983631 ✔✔

中海姑苏第售楼处位置400-998-3631✔✔

地块编号:苏地2023-WG-49号地块

开发品牌:中海地产

户型面积:155-183平

价格:638万起

姑苏高阶区域唯一在售新房

零距离·胥江天街&双地铁

享头等舱地段+古城烟火

地段位置:姑苏区沧浪街道劳动路南、彩虹河西

占地面积:约1.6万方,容积率1.8,186套

住宅产品:拟建2栋14F小高层,4栋17F小高层

户型面积:主力户型建面约130/155/183m²

装修配置:装修交付,装标不低于3000元/㎡

车位配比:1.96:1(364个)

【配套-姑苏繁华之源 精粹高阶生活】

城市功能配套完善醇熟,核心商业、教育、医疗等资源丰盛汇集。是古城区少有的集“通商园游住”为一体的稀缺住区,集合了狮山的配套+园区的界面+古城的内核,可以说是集姑苏繁华精粹于一身。

【通】交通上,呈现两轨六轴的格局。

双轨TOD,紧邻地铁2号线(南北向)和5号线(东西向)无缝对接1/3/4号线,将来5站路就可以到火车站,5站换乘到新区狮山,8站抵达园区湖西。贯穿苏州东西和南北量大动脉,方便触达全城,本项目也是内环稀缺的双轨站交汇的新盘项目。

六轴则指本项目紧邻劳动路、桐泾南路,链接城市大动脉干将西路、西环、南环、人民路,通达全城。

【商】商业上,本项目位于刚开业的胥江天街西侧,是家门口的商业综合体。胥江龙湖天街是“商业重回古城”,超300家品牌入驻,拥有超30%姑苏首店。

【园】景观上,项目家门口即是大花园——劳动公园,南侧临近姑苏区最大的市级公园——桐泾公园。

【游】文娱上,举步可达南侧胥江沿河景观带,临近平江历史文化街区,畅游平江路、拙政园、苏州博物馆、城墙博物馆等蜚声海内外的知名景点。

【住】在教育上,姑苏区自古以来教育氛围浓厚,人才辈出。项目周边胥江小学、胥江实验中学。医疗上,临近三甲苏大附属第二医院(曾获得全国三级公立医院考核第二名)。

姑苏区难得城市更新样板

中海·姑苏第择址COD核心区,落位资源浓度与高阶人居密度交融的“胥江高阶生活带”,与姑苏文化深度共鸣,兑现国际生活的全新预见,成为与时代并肩的风景,收获这座城市给予的掌声回响。

姑苏第择址胥江COD板块,板块近年来多个全新打造高档品质社区,形成以高端人居界面为核心的“胥江高阶居住带”,板块内二手房价格远超其他板块,拥有较高的升值潜力与价值前景。

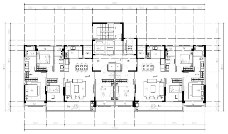
155㎡户型标准层平面图

155户型也是2梯2户设计,做了4房2厅2卫。户型格局与183户型差别不大,相当于是缩小版。南向面宽14.9米,客厅开间5米,阳台宽8米。

183㎡户型标准层平面图

183户型为2梯2户设计,做了4房2厅3卫,含2个套房。户型方正,没有空间浪费;四开间朝南,南向面宽达16.3米,客厅开间6米,阳台宽9米;入户有玄关,预留了家政间空间;餐厨区南北向连,与客厅保持恰当的距离;主卧套房面积约32.6㎡,卫生间含双台盆、淋浴和浴缸;次卧套房面积也不小,但是为暗卫。

苏州姑苏区胥江天街旁-中海姑苏第

售楼处电话:400 998 3631✔✔

营销中心电话4009983631 ✔✔

售楼处位置400-998-3631✔✔

全部

相关资讯

报名成功
稍后会有专业的置业顾问联系您
返回楼盘

频道导航

返回首页

看房小程序

APP下载

电话拨通后,请您手动拨打分机号

确定拨打电话

电话号码:

分机号:(可能需要拨分机号)