吴江汾湖嘉乐城
自带商业综合体嘉乐城
长三角一体化先行启动区
售楼处电话:400 870 9151 ✔✔✔☎
置业顾问:131 8266 1993(同微信)✔✔✔☎
售楼处位置:400 870 9151 ✔✔✔☎
预约看房,置业顾问一对一对接,享受额外优惠!
价格:11000起
交房时间:现房得房率:79%-79%
总栋数/总户数:2栋/198户
绿化/容积率:18.5%/4.9
车位比:1:1.14产权年限:70年
总楼层数:高层24-33层
物业公司/费用:好得家物业/1.7元/月/平米
几梯几户:高层1梯2户/高层2梯4户/高层3梯6户
面积:86-107-111-113-114-121-127㎡
开发商:苏州鹏云集团
楼盘位置:江苏省苏州市吴江区浙江路

项目亮点
长三角一体化先行区——汾湖
距苏州南站(在建)约7千米,虹桥下一站
华润万家、星巴克、上影影城一路之隔
自带商业综合体,配套完善
双阳台设计,全明采光

交通配套
公交系统:小区周边形成“百米公交圈”,文化中心站(151米)、洋砂路北京路口站(297米)等站点覆盖792路、7308路等多条线路,15min可达苏州南站(在建)
。自驾可通过洋砂路、北京路快速接驳常台高速,1小时直达上海虹桥枢纽
未来规划:苏州轨交10号线延长线(汾湖段)拟在文化中心设站,将进一步便利出行
教育配套
全龄教育资源:1.6公里内覆盖汾湖实验幼儿园、上海世外教育附属汾湖实验小学(1.3公里)、吴江汾湖经济开发区实验初级中学等,涵盖私立与公立学校
。中加合作苏州枫华高级中学校等国际教育资源亦在周边
商业与生活服务
商业综合体:自持嘉乐城生活广场(23米)包含超市、影院等业态,另有沪宁时代购物广场(1.8公里)提供品牌消费
。浦北农贸市场(1.2公里)满足日常买菜需求
运动休闲:500米内分布台球馆、跆拳道馆等,形成“下楼即运动”的便捷生活圈
医疗与金融
医疗机构:3公里范围内有吴江区第五人民医院、芦墟中心卫生院等
银行网点:江苏银行(330米)、建设银行等多家金融机构提供便捷服务
环境与生态
小区三面环湖(大渠荡、三白荡等),毗邻大渠荡生态公园,生态环境优越,常有白鹭、野鸭栖息




户型鉴赏:售楼处电话:400 870 9151 ✔✔✔☎

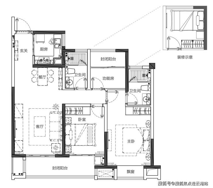
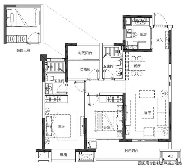
A户型127㎡3室2厅2卫

B户型111㎡3室2厅2卫

C户型114㎡3室2厅2卫




➨🚩🚩售楼处电话:400-870-9151√√售楼处营销中心:400-870-9151(开发商热线)售楼中心电话/地址☎:4008709151【售楼处已认证√√√】★来电可了解楼盘最新动态,项目全面介绍(包含最新发布:在线预约看房丨在售房价优惠丨户型面积房源丨交房时间丨交通地铁丨商业配套丨教育资源丨小高层洋房丨独栋别墅丨联排合院丨商业别墅丨得房率丨容积率丨小区环境丨优缺点分析丨楼盘测评丨在售户型图丨项目介绍丨最新房源丨周边配套丨详细解答丨一对一热情讲解〢区域板块等信息!★郑重承诺:由开发商旗下销售团队全程营销策划,房源信息真实有效!如果您想了解更多楼盘详情,欢迎提前预约拨打售楼处电话400 870 9151√√√(已认证)