售楼处隐山(无锡梁溪区)隐山|房价|房型|隐山户型图_隐山交通地铁_隐山楼盘详情-隐山

连云港楼市发布

2025-06-30 02:38:00

购房群

买房如何避坑,加入购房群,看看他们怎么说

立即进群

无锡梁溪区-世纪金源隐山

售楼处电话:400 998 3631✔✔

隐山营销中心电话4009983631 ✔✔

隐山售楼处位置400-998-3631✔✔

隐山置业顾问:131 6013 6853【营销中心】✅✅

|占地面积:约3.4万

|建筑面积:约3.8万方

|总户数:144户

|容积率:约1.2

价格:待定

户型面积:233-340-423-435-618平㎡

|产品类型:五层叠墅、四层叠墅、合院

|开发公司:梁溪文旅×世纪金源&腾云筑科

璀璨资源 传统都心底色

>>都会繁华|恒隆广场、八佰伴、三阳百盛、崇安寺生活街区

>>畅达交通|西内环快速线、运河东路、盛岸路、地铁4号线

>>自然禀赋|惠山国家森林公园、锡惠公园、运河艺术公园、京杭运河

>>名校环绕|无锡市惠山小学、无锡外国语学校(通惠西路校区)、无锡市第一中学“

无锡文化豪宅新标杆:它超越常规,打造“山水+文化+城芯+宅院”的四维共生,山水为骨、文化为魂、城芯为脉、宅院为形;

典藏级江南园林:故园新造,平移寄畅50景,复刻但不复制,打造三进九园诗意示范区,借山、引水、取景龙光塔,让无锡望族重温秦氏家族在寄畅园的生活场景;

隐于闹市,山居静谧。『隐山』项目的问世,汲取千年文化底蕴,传承世族大家风范,秉持“显山隐水”理念,将江南诗意与现代奢适融合,成为古镇肌理中的文化人居典范。

(实景图)

其位于惠山古镇风貌区,容积率约1.2,低密纯墅区含24套合院120套叠墅,为居者开启“千年文脉为邻,现代奢居为伴”的生活新篇。

以“两公里繁华生活圈”为基底,『隐山』将古今风华与现代都市活力无缝衔接。其占据无锡主城核芯区位,既能畅享恒隆广场、八佰伴等高端商圈的前沿消费力,又毗邻惠山古镇与映月里的沉浸式文化体验,独特高阶烟火气与人文磁场于此交融。

全维立体交通网络,内环快速线、地铁4号线等多维动脉纵横,高效通勤轻松实现;无锡二院等三甲医疗资源,为健康生活保驾护航……

(图源:IPWUXI)

隐山四叠建面约233-340㎡,五叠建面约243-423㎡,合院建面约436-618㎡,项目已于近日公开了叠墅+合院户型图

隐山建面约435-545㎡合院户型

合院|心院“山字屋宇、树宅相生,人与山的心心相印,墅居与自然相合。”

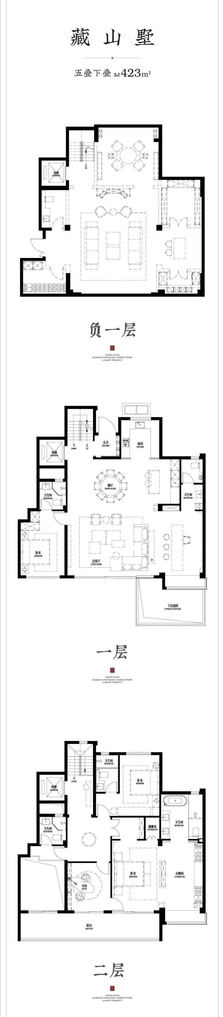
隐山建面约423㎡五叠下叠

该户型为隐山五叠的下叠户型,建面约423㎡,开间约13.25米,全套房设计,层高约3.3米。

隐山五叠的上叠 建面约244㎡

无锡梁溪区-世纪金源隐山

售楼处电话:400 998 3631✔✔

隐山营销中心电话4009983631 ✔✔

隐山售楼处位置400-998-3631✔✔

隐山置业顾问:131 6013 6853【营销中心

全部

相关资讯

报名成功
稍后会有专业的置业顾问联系您
返回楼盘

频道导航

返回首页

看房小程序

APP下载

电话拨通后,请您手动拨打分机号

确定拨打电话

电话号码:

分机号:(可能需要拨分机号)