吴中甪直四代宅雁云庭售楼处-吴中甪直四代宅雁云庭(2025·吴中甪直四代宅雁云庭最新)楼盘详情-房价-户型-吴中甪直四代宅雁云庭图文介绍

连云港楼市发布

2025-11-09 22:49:00

购房群

买房如何避坑,加入购房群,看看他们怎么说

立即进群

雁云庭

吴中甪直首个四代宅

打造8栋4F叠墅+5栋高层四代宅

带空中花园,高赠送

雁云庭售楼热线:

4008709151 ✔✔✔☎

雁云庭置业顾问:

13182661993(同微信)✔✔✔☎

雁云庭售楼处位置:

售楼热线:4008709151 ✔✔✔☎

雁云庭预约看房,置业顾问一对一对接,享受额外优惠!

价格:待定

总楼栋:8幢4F叠墅+5幢24-25F四代高层产品

容积率:1.8

占地面积:37740.2平

总建筑面积:102549.31平

开发商:斜港置业、吴城置业和甪直房地产开发公司联合

地址:吴中区甪直镇鸣市路南侧、经三路东侧

雁云庭售楼热线:

4008709151 ✔✔✔☎

项目规划

产品类型:包含8栋4层叠墅和5栋24-25层高层住宅

叠墅:下叠附赠独立院子及挑空客厅,上叠带星空阁楼与露台

高层:采用奇偶错层设计,奇数层南向、偶数层北向设有空中庭院,并融入垂直绿化元素

交付标准:精装交付,装修标准不低于2000元/平方米,预计于2026年交付

雁云庭售楼热线:

4008709151 ✔✔✔☎

价格与定位

项目具体售价待定,周边新房高层均价约2.2万元/平方米以上,叠墅均价约2.8-3万元/平方米

。其四代住宅的设计(如空中庭院、垂直绿化)填补了区域高端市场空白,预计售价可能突破区域天花板

雁云庭售楼热线:

4008709151 ✔✔✔☎

配套资源

交通:依赖自驾,北接甪直大道(连通金鸡湖大道),南靠东方大道(通往独墅湖高教区)

教育:北侧有星泽实验学校(星海教育集团),周边还有甪直实验小学等教育资源商业:规划有1座邻里中心、2条商业水街,现有南山维乐城等成熟配套

雁云庭售楼热线:

4008709151 ✔✔✔☎

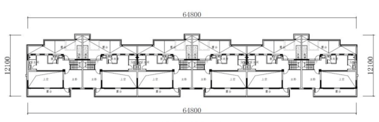
规划户型出炉

雁云庭此前公示了4#、9#的户型标准层示意图。

4#,4F叠墅

9#,25F高层,2梯2户

4房2厅3卫

奇数层

4房2厅3卫

偶数层

雁云庭

吴中甪直首个四代宅

打造8栋4F叠墅+5栋高层四代宅

带空中花园,高赠送

雁云庭售楼热线:

4008709151 ✔✔✔☎

雁云庭置业顾问:

13182661993(同微信)✔✔✔☎

雁云庭售楼处位置:

售楼热线:4008709151 ✔✔✔☎

雁云庭预约看房,置业顾问一对一对接,享受额外优惠!

➨🚩🚩售楼处电话:400-870-9151√√售楼处营销中心:400-870-9151(开发商热线)售楼中心电话/地址☎:4008709151【售楼处已认证√√√】★来电可了解楼盘最新动态,项目全面介绍(包含最新发布:在线预约看房丨在售房价优惠丨户型面积房源丨交房时间丨交通地铁丨商业配套丨教育资源丨小高层洋房丨独栋别墅丨联排合院丨商业别墅丨得房率丨容积率丨小区环境丨优缺点分析丨楼盘测评丨在售户型图丨项目介绍丨最新房源丨周边配套丨详细解答丨一对一热情讲解〢区域板块等信息!★郑重承诺:由开发商旗下销售团队全程营销策划,房源信息真实有效!如果您想了解更多楼盘详情,欢迎提前预约拨打售楼处电话400 870 9151√√√(已认证)

全部

相关资讯

报名成功
稍后会有专业的置业顾问联系您
返回楼盘

频道导航

返回首页

看房小程序

APP下载

电话拨通后,请您手动拨打分机号

确定拨打电话

电话号码:

分机号:(可能需要拨分机号)