无锡梁溪迎龙路-(无锡梁溪仁恒夹城里售楼处)八月聚焦@丨首页网站丨商业配套丨容积率丨户型解析丨最新价格丨无锡梁溪仁恒夹城里售楼处丨项目笔记

连云港楼市发布

2025-08-25 13:00:00

购房群

买房如何避坑,加入购房群,看看他们怎么说

立即进群

仁恒夹城里

售楼处电话:400 870 9151 ✔✔✔☎

置业顾问:131 8266 1993(同微信)✔✔✔☎

售楼处位置:400 870 9151 ✔✔✔☎

预约看房,置业顾问一对一对接,享受额外优惠!

158平总高16层:600-640万

188平总高16层:670-722万

240平层高16层:920-950万

300平层高21层:1200万

交付时间:2026.5.30-2027.5.30

精装标准:4900-5800/平

车位比:1:2.71

层高:小户型3.15米,大户型3.3米

占地面积:约7.4万㎡建筑面积:约13.5万㎡

总户数:599户容积率:1.83层高16-21F

产品类型:建面约158--188-240-300㎡国际低密奢品

开发公司:无锡安居&梁城美景&仁恒置地

物业公司:仁恒物业物业费:4.95元/平

项目地址:无锡市梁溪区迎龙路与清扬路交汇处西南侧(无锡体育公园南侧)

仁恒夹城里售楼处电话:400 870 9151 ✔✔✔☎

一、交通配套

地铁:紧邻规划中的地铁5号线健康路站(建设中),850米可达1号线谈渡桥站,1.5公里至2号线三阳广场站

快速路:毗邻清扬路、振新路等主干道,内环高架无缝衔接

二、商业配套

核心商圈:地处三阳广场商圈,1.1公里至南禅寺步行街,1.8公里至百盛购物中心,周边有茂业天地、M会员店、西水东商业街等

特色商业:南长街、清明桥等文旅景点串联,兼具购物与休闲功能

三、教育资源

学校:新建九年一贯制学校(连元街小学+侨谊中学承办),拟建侨谊幼儿园,另有扬名中心小学、辅侨实验小学等

学区:五爱小学、侨谊实验中学(学区待定)

四、医疗资源

医院:无锡市第二人民医院(900米)、妇幼保健院(1.3公里)

五、休闲景观

公园/场馆:太湖广场、无锡博物院、无锡图书馆、无锡体育公园等环绕

社区设施:项目内设2000㎡运动会所(含恒温泳池)、双泳池及六境园林景观

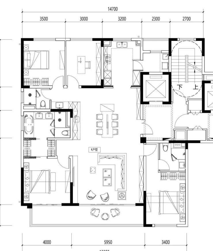
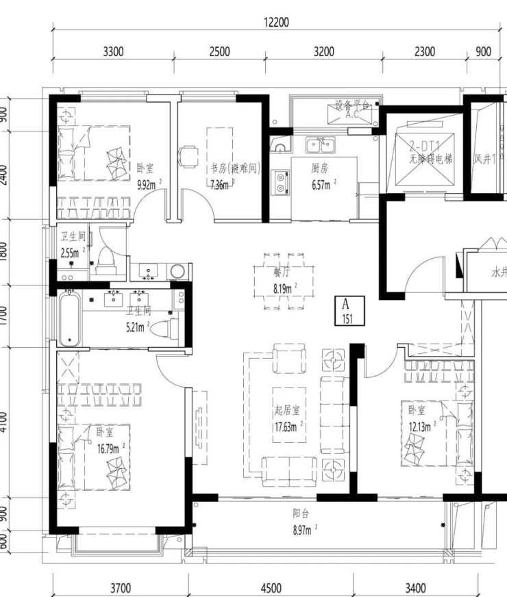
户型鉴赏:仁恒夹城里售楼处电话:400 870 9151✔✔✔☎

仁恒158 檀宫152

155户型对标

155户型仁恒在格局上与檀宫基本一致,基于土地条件面宽大于檀宫,客厅5200大于檀宫的4500,但内部拐角墙体较多,在做完木饰面和柜子后空间感受与檀宫户型趋同,同时檀宫的方形厨房感受也要由于仁恒的深U型厨房。

仁恒夹城里售楼处电话:400 870 9151✔✔✔☎

仁恒夹城里售楼处电话:400 870 9151✔✔✔☎

仁恒的158做了三卫,优于檀宫,代价是只做了客厅外的单阳台。檀宫阳台感受优于夹城里。

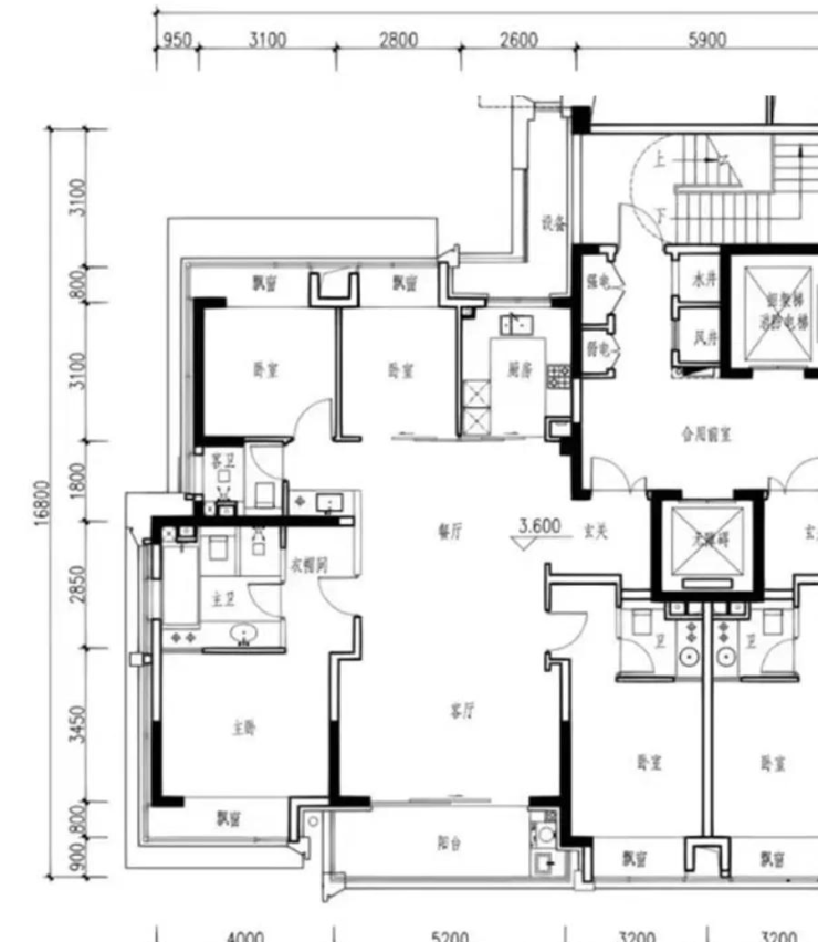
仁恒185 檀宫188

185户型对标

185户型檀宫受限于地块条件和日照,面宽比仁恒短1.15米,但仁恒把多出来的面宽放到了北侧厨房,做了横向展开的厨房,让LDHK空间的完整性和采光性更好。檀宫188多了北侧的家政间,且南向阳台做了贯通式2开间的,户外感受比仁恒更好。仁恒在过道里设置了家政间含洗烘套装和扫地机器人,家政点位考虑到位,但家政设置在此处的实用性存疑。

仁恒夹城里售楼处电话:400 808 3612✔✔✔☎

仁恒夹城里售楼处电话:400 870 9151✔✔✔☎

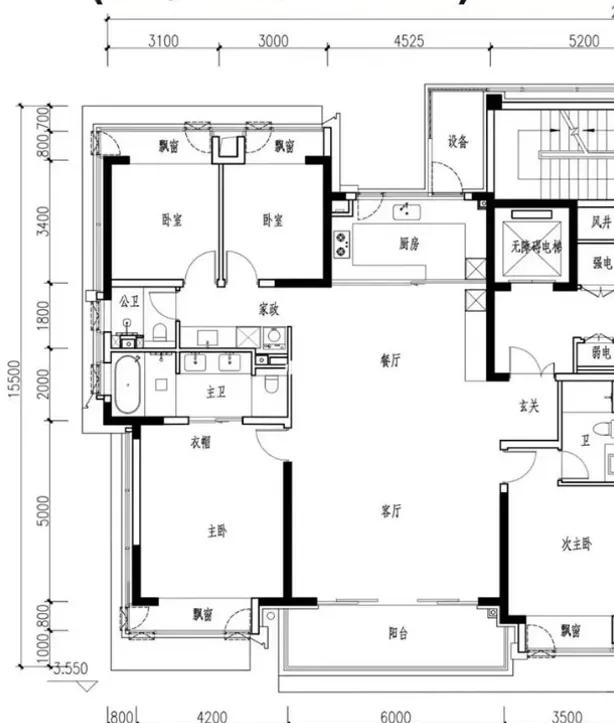
仁恒238 檀宫240

240户型对标

240户型在房间尺度上两者基本一致,仁恒夹城里的LDHK空间更完整,但相应的牺牲了整体的体型系数。檀宫的中西厨——餐厅——客厅的纵向序列感比之夹城里更流畅,同时主卧的步入式衣帽间仪式感也要由于夹城里。

仁恒夹城里售楼处电话:400 870 9151✔✔✔☎

户型设计得失

1、飘窗翻边:

夹城里飘窗洞口净高1800,下方飘窗台做了300的翻边,导致样板房观感较差。

(相关的几条规范:1、飘窗净高2100以下不计容,2、需采用标准化外窗【300的倍数】,3、上下层之间满足1200的防火间距,不满足的话需采用耐火玻璃)仁恒应该是为了满足防火间距同时又没考虑到用耐火玻璃,因此造成了设计失误。

四、外立面

楼盘的外立面设计现代简约,线条流畅,与周边的城市景观相得益彰。采用高品质的外墙材料,确保建筑的耐用性和美观性。外立面的设计还融入了现代元素,为城市增添了一道靓丽的风景线。

➨🚩🚩售楼处电话:400-870-9151√√售楼处营销中心:400-870-9151(开发商热线)售楼中心电话/地址☎:4008709151【售楼处已认证√√√】★来电可了解楼盘最新动态,项目全面介绍(包含最新发布:在线预约看房丨在售房价优惠丨户型面积房源丨交房时间丨交通地铁丨商业配套丨教育资源丨小高层洋房丨独栋别墅丨联排合院丨商业别墅丨得房率丨容积率丨小区环境丨优缺点分析丨楼盘测评丨在售户型图丨项目介绍丨最新房源丨周边配套丨详细解答丨一对一热情讲解〢区域板块等信息!★郑重承诺:由开发商旗下销售团队全程营销策划,房源信息真实有效!如果您想了解更多楼盘详情,欢迎提前预约拨打售楼处电话400 870 9151√√√(已认证)

全部

相关资讯

报名成功
稍后会有专业的置业顾问联系您
返回楼盘

频道导航

返回首页

看房小程序

APP下载

电话拨通后,请您手动拨打分机号

确定拨打电话

电话号码:

分机号:(可能需要拨分机号)