恒泰象屿·时光青澄
恒泰象屿 深耕园区第三子
园区花园境 建面约91-128㎡低密纯洋房
营销中心:400 870 9151 ✔✔✔☎
置业顾问:131 8266 1993(同微信)✔✔✔☎
售楼处位置:400 870 9151 ✔✔✔☎
预约看房,置业顾问一对一对接,享受额外优惠!
总价:91㎡起,总价最低260万起
开发商:苏州恒泰、象屿地产 (双国企)
占地面积:约3.6万㎡
总建筑面积:约8.5万㎡
绿地率:≥35%容积率:≤1.5
规划户数:约496户机动车位数:约681个
产品形态:13栋8-11F纯洋房
户型面积:建筑面积约91m2/112㎡/128㎡(洋房)
交付标准:装修交付楼户比:2梯4户
物业公司:江苏象屿物业管理有限公司
项目地址:苏州园区·青剑湖·夷浜路与科成路交汇处

【品牌·青澄】再耀苏州的新核
苏州恒泰| 园区开拓者与运营者
中新合作苏州工业园区直属的大型国有企业,累计开发各类物业载体约760万平方米,拥有苏州中心、苏州自贸商务中心等代表项目,目前已成为园区商业地产、产业地产、租赁住房领域重要的载体持有者和运营商。

象屿地产| 国匠精工的践行者
象屿集团,厦门市属国有企业,《财富》世界500强位居第142位。31载象屿地产,象屿集团旗下全资子公司,深耕长三角核心都市圈,享誉华东区域的精品住宅开发商,连续多年获评“中国房地产开发稳健十强”和“中国华东房地产品牌价值TOP10”。
象屿地产位列2024年上半年全国销售金额第30位(操盘)、上海市场销售金额位列第17位(操盘)、苏州市场销售金额位列第一。

一、交通配套
主干道:紧邻中环北线、星湖街、现代大道等城市主干道,自驾约15分钟可达湖东CBD
轨道交通:地铁3号线(直线距离约2公里)、规划中的地铁16号线(阳澄湖大道站)
,需结合公交接驳。
高铁:园区高铁站直线距离约5公里,1小时内通达长三角核心城市
公交:周边设青澄路科营路站(586米)、星澄学校站(670米),含161路、176路等多条线路
二、商业配套
大型商圈:
龙湖星湖天街(直线约2公里)
阳澄湖邻里中心(在建)
车行约15min可达湖东圆融商圈、永旺梦乐城
社区商业:科技城邻里中心(约1.1公里)满足日常需求
三、教育配套
公立学校:星澄学校(九年一贯制公办)
幼儿园:伊顿双语幼儿园、伟才厚永幼儿园(私立)步行可达
四、生态资源
三湖环抱:阳澄湖、青剑湖、翡翠湖环绕
公园:翡翠湖生态公园、阳澄湖湖滨生态体育公园等
社区内部规划五重景观园林及环形慢跑道
五、医疗配套
星湖医院(直线约4公里)九龙医院(三甲,直线约9公里)
六、社区内部设施
全龄架空层含儿童乐园、健身区及宠物专区
智能快递柜、垃圾分类站、公共区域WIFI全覆盖
车位配比1:1.37,部分预留充电桩接口





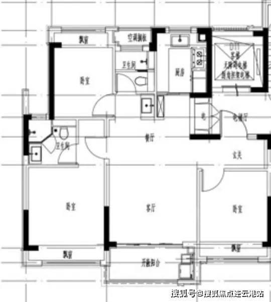
户型鉴赏:共三个面积段,约90/112/128㎡,全部一梯两户,带精装三大件交付!
哪怕是最小的约90㎡也做到了3房2卫,三开间朝南、全屋3个大飘窗赠送、开敞阳台,客卫干湿分离、U型厨房…堪称满分上车户型!
10F洋房,建面约90㎡
3房2卫,2梯4户

最王炸的户型,还是约112㎡,竟然做到了4房2卫!
大三开间朝南,全屋多达4个飘窗赠送,独立入户玄关、套房主卧…功能性超强!三代同堂的二胎家庭也能住得下!
而且,不出意外的话,这应该也是眼下园区新房中,最低总价4房。
8F洋房,建面约112㎡
4房2卫,2梯4户

约128㎡的空间更为舒适一点,大三房、双联阳台、客厅是大宽厅设计…预算更充足的改善家庭可以冲这个户型。
10F洋房,建面约128㎡
4房2卫,2梯4户




➨🚩🚩售楼处电话:400-870-9151√√【官网预约☎】售楼处营销中心:400-870-9151(开发商热线)官方售楼中心电话/地址☎:4008709151【售楼处已认证√√√】★来电可了解楼盘最新动态,项目全面介绍(包含官方最新发布:在线预约看房丨在售房价优惠丨户型面积房源丨交房时间丨交通地铁丨商业配套丨教育资源丨小高层洋房丨独栋别墅丨联排合院丨商业别墅丨得房率丨容积率丨小区环境丨优缺点分析丨楼盘测评丨在售户型图丨项目介绍丨最新房源丨周边配套丨详细解答丨一对一热情讲解〢区域板块等信息!★郑重承诺:由开发商旗下销售团队全程营销策划,房源信息真实有效!如果您想了解更多楼盘详情,欢迎提前预约拨打官方售楼处电话400 870 9151√√√(已认证)