杭州上城区海潮望月城项目优势-海潮望月城项目资料,房价,周边配套

连云港楼市发布

2025-07-08 05:36:00

购房群

买房如何避坑,加入购房群,看看他们怎么说

立即进群

海潮望月城

☎【海潮望月城营销中心】:400-837-8831☎

☎【海潮望月城售楼处】:400-837-8831☎

☎【海潮望月城售楼电话】:159 6256 4266「微信同步」☎

【区域板块】:望江新城

【项目地址】:海潮路与东宝路交叉口

【项目信息】:298套,可售7幢(18/20/22层)

【销售信息】

一、东地块9、12号楼(主力面积约303、306方)

二、西地块3号楼(主力面积约301、410方)

【面 积】:约300㎡起

【物 业】:滨江物业

【占地面积】:西地块2.7万方;东地块约1.6万方

【总建面积】:约29.6万方

【交付时间】:2025年底前

【内部配套】:室内恒温泳池/健身房/瑜伽房

【层 高】:建筑层高约3.4米

【区域篇】

近西湖约2.5公里

鼓楼、河坊街、南宋御街约1.5公里

钱江新城核心区(来福士、万象城)约2.5公

k11艺术购物中心和瑰丽酒店仅一路之隔

【商业篇】

新世界k11艺术购物中心约100米

湖滨银泰约2.5公里

来福士和万象城约2.5公里

杭州大厦、国大广场、武林银泰约3公里

【医疗篇】

浙江大学附属第一医院、杭州市第三人民医院、浙江大学医学院附属妇产科医院等

小区实景图:

10# 306方 孟也-雅颂

5房:3套房+1客房+1书房

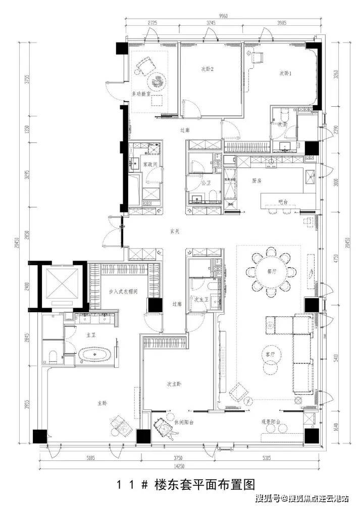
11# 306方 李益中 -拾光

5房-3套房+1客+1书

海潮望月城

☎【海潮望月城营销中心】:400-837-8831☎

☎【海潮望月城售楼处】:400-837-8831☎

☎【海潮望月城售楼电话】:159 6256 4266「微信同步」☎

全部

相关资讯

报名成功
稍后会有专业的置业顾问联系您
返回楼盘

频道导航

返回首页

看房小程序

APP下载

电话拨通后,请您手动拨打分机号

确定拨打电话

电话号码:

分机号:(可能需要拨分机号)