和萃澜庭项目深度解析(2025年10月版)
科技城和萃澜庭售楼处电话:
400 852 9793✔✔
和萃澜庭营销中心电话
4008529793 ✔✔
和萃澜庭作为苏州科技城板块的标杆项目,由武汉城建集团、金地集团与建发房产三大实力房企联合开发,定位为"科技城新中式豪宅"。 项目占地6.7万方,容积率仅1.8,由13栋洋房(11层)和8栋小高层(18层)组成,绿化率达37%,是区域内罕见的低密社区。

和萃澜庭营销中心电话
4008529793 ✔✔

和萃澜庭营销中心电话
4008529793 ✔✔
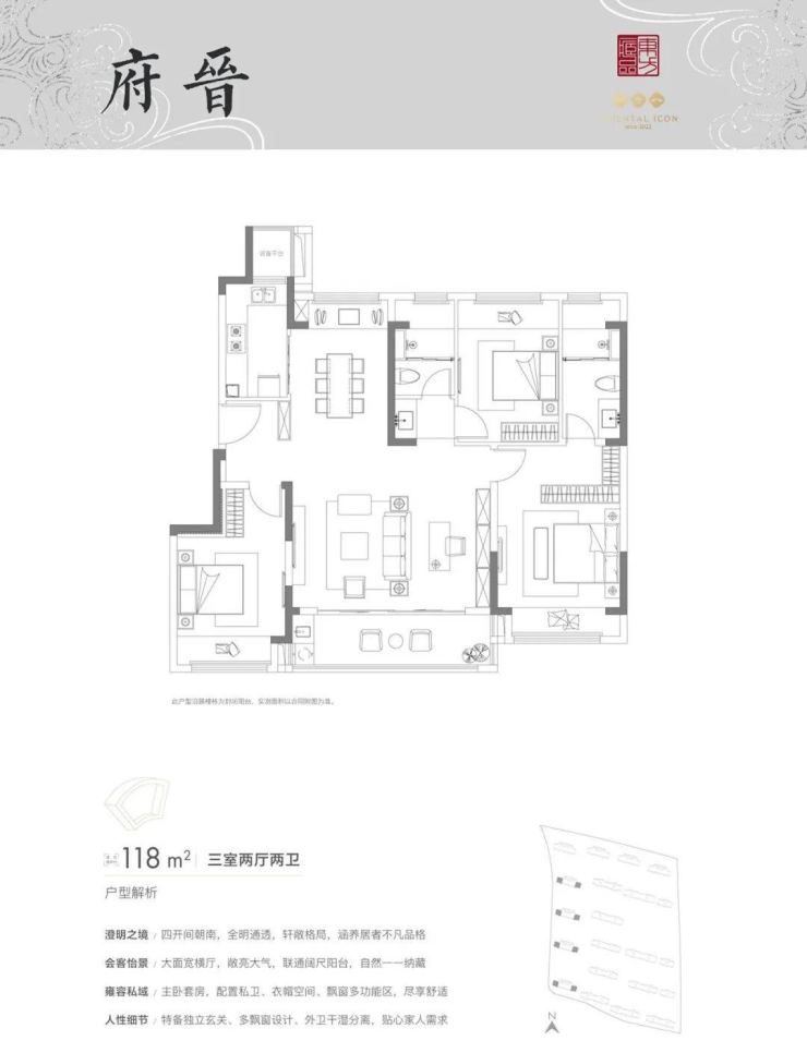
最新动态:2025年8月价格从21000元/㎡调整至20000元/㎡,部分楼栋已售罄, 新增6#楼在售,主力户型为118㎡三房两卫,总价约257.5万/套。

和萃澜庭营销中心电话
4008529793 ✔✔
二、产品力解析
1. 户型设计
101㎡三房两卫:6.4米双阳台设计,动静分区,适合年轻家庭
118㎡三房两卫:5.7米横厅+独立餐厅,全屋6飘窗,得房率86%
140㎡四房两卫:"四叶草"布局,主卧套房+IMAX观景阳台

和萃澜庭营销中心电话
4008529793 ✔✔

和萃澜庭营销中心电话
4008529793 ✔✔

和萃澜庭营销中心电话
4008529793 ✔✔
2. 精装标准
三大件齐全 :中央空调(日立/大金)、地暖(史密斯壁挂炉)、新风系统(科林贝思)
卫浴厨电: 科勒、方太等一线品牌
园林单方造价超2000元/㎡,精装标准较竞品提升约30%

和萃澜庭营销中心电话
4008529793 ✔✔

和萃澜庭置业顾问:
181-1552-0308

和萃澜庭营销中心电话
4008529793 ✔✔
三、区位配套
1. 交通网络
自驾:直达太湖大道快速路,连接西环、北环
轨交:有轨电车1号线龙康路站(615米),规划地铁9/10/11/13号线
公交:24个公交站环绕,最近的下许桥站仅106米

和萃澜庭营销中心电话
4008529793 ✔✔
2. 生活配套
配套类型具体资源距离/时间商业丰茂里商业街、星悦里综合体
教育科技城实验小学、新区实验中学3公里内
医疗科技城医院(三甲)600米
生态大阳山国家森林公园、太湖湿地公园环绕社区

和萃澜庭营销中心电话
4008529793 ✔✔

和萃澜庭营销中心电话
4008529793 ✔✔

和萃澜庭营销中心电话
4008529793 ✔✔
四、市场竞争力
1. 价格优势
当前均价20000元/㎡,较8月下降4.76%,总价区间200-294万。对比周边竞品:
得房率:86-88%,高于同板块高层产品
装修标准:较竞品提升约30%
政策利好:可享受首付比例下调、税费减免等新政优惠

和萃澜庭营销中心电话
4008529793 ✔✔

和萃澜庭营销中心电话
4008529793 ✔✔

和萃澜庭营销中心电话
4008529793 ✔✔
2. 独特卖点
科技城唯一新中式低密洋房:复刻故宫乾清门规制,门楼由齐白石曾孙女题写
王府园林: 以《平江图》为蓝本,打造"一龙游四坊十二苑"格局
圈层纯粹 :1074户规模,私享休闲空间
科技城和萃澜庭
售楼处电话:
400 852 9793✔✔
和萃澜庭营销中心电话
4008529793 ✔✔
和萃澜庭营销中心电话
4008529793 ✔✔
和萃澜庭置业顾问:
181-1552-0308
科技城和萃澜庭售楼处电话
☎:400-852-9793(预约看房热线√√)
和萃澜庭售楼处电话/地址☎:400-852-9793【售楼中心已认√√】
➨����售楼处电话:400-852-9793√√【电话预约☎】售楼处营销中心:400-852-9793(开发商热线)售楼中心电话/地址☎:4008529793【售楼处已认证√√√】★来电可了解楼盘最新动态,项目全面介绍(包含最新发布:在线预约看房丨在售房价优惠丨户型面积房源丨交房时间丨交通地铁丨商业配套丨教育资源丨小高层洋房丨独栋别墅丨联排合院丨商业别墅丨得房率丨容积率丨小区环境丨优缺点分析丨楼盘测评丨在售户型图丨项目介绍丨最新房源丨周边配套丨详细解答丨一对一热情讲解〢区域板块等信息!★郑重承诺:由开发商旗下销售团队全程营销策划,房源信息真实有效!如果您想了解更多楼盘详情,欢迎提前预约拨打售楼处电话400 852 9793√√√(已认证)