苏州市吴中区孙武路-朗诗太湖朗郡丨售楼中心丨首页网站丨朗诗太湖朗郡丨楼盘详情/户型介绍/实时报价/地址/最新资讯/项目笔记

连云港楼市发布

2025-06-10 04:24:00

购房群

买房如何避坑,加入购房群,看看他们怎么说

立即进群

朗诗太湖朗郡

售楼热线:400 870 9151 ✔✔✔☎

置业顾问:131 8266 1993(同微信)✔✔✔☎

售楼处位置:400 870 9151 ✔✔✔☎

预约看房,置业顾问一对一对接,享受额外优惠!

在售:3幢 10幢 6幢 9幢 7幢

面积:小高层95、117、139,洋房117、148平

价格:150-235万

容积率:2.0

绿化率:37%

规划户数:1371

车位配比:1:1.43

交房时间:2025年12月31日

社区规划:17F小高层+10F洋房

交付标准:精装+朗诗科技住宅系统

楼盘地址:苏州市吴中区孙武路与钟马路交汇处

太湖朗郡能够全年实现四季恒温、恒湿、恒氧、低噪、适光。在建筑用材方面,选择现代化先进材料,品质远超国家标准,达到绿建二星标准。其运用地源热泵系统、天棚辐射、全置换新风等多项科技系统,告别空调也能保证室内达到18-26°C恒温,厨房、卫生间都能享受。此外,全置换式新风系统可有效过滤pm2.5,除霾率达95%,同时内设加湿、除湿等模块,可以将空间湿度保持在30-70%的理想区间,无惧即将到来的梅雨季,构建室内更健康的居住环境。

太湖朗郡整体以一横一纵一环为规划主轴,搭配多功能生活场域;同时,项目延循朗诗美好生活T+体系,打造7大T+主题式社交空间,构建全龄生活秀场,满足不同休闲与社交需求。该项目荣获2023年第六届AIIDA美国国际创新设计大奖、2023第七届ELA国际景观最佳示范区景观金奖、2024年建筑设计缪斯金奖。

一、交通配套

轨道交通:距离地铁5号线太湖香山站约2公里,可快速连接子胥快速路及绕城高速

快速路网:4公里接驳绕城高速入口,直达木渎商圈,狮山商圈

公交覆盖:直线1km内有19个公交站,最近站点“水桥头站”仅158米,线路包括701路、710路等多条线路

二、商业配套

综合商业体:

太湖中心MALL(已开业)、太和广场、舟山邻里中心,提供购物、餐饮、娱乐一站式服务

社区商业:花样年街商、新力街商、蔚蓝四季街商等小型商业体分布周边,满足日常需求

三、教育配套

幼儿园:蒯祥幼儿园、度假区幼儿园等(直线3km内7所

小学:舟山实验小学、香山实验小学、度假区第三小学、太湖湾实验小学(直线3km内4所)

中学:香山中学、苏州太湖国家旅游度假区实验中学。

四、医疗配套

度假区人民医院:直线3km内唯一一级及以上医院,提供基础医疗保障。

五、生态休闲配套

公园资源:周边3km内有61个公园,最近公园仅620米(如芦荡湖湿地公园)

自然景观:北靠穹窿山(5A级景区),南临太湖,坐拥国家级度假区生态资源。

六、项目特色配套

科技系统:精装修交付+朗诗“三恒系统”(恒温、恒湿、恒氧),替代传统空调/地暖。

物业:金钥匙物业,物业费约2.7元/㎡/月。

真正的科技住宅搭载的“三恒”系统,完全有别于传统的空调和地暖,能真正意义上做到让室内全年24小时保持在人体适宜的状态。

示意图

恒温:采用地源热泵、顶棚辐射等系统,保持室内温度,夏季不高于 26℃,冬季不低于 18℃,相比于传统空调对流方式,无吹风感,体感更好更舒适。

示意图

恒湿:室内相对湿度恒定控制在30%-70%,解决了江南地区黄梅季,潮湿天气的困扰。同时也能有效降低冬季流感等病毒活性,让居住环境更健康。

恒氧:24小时置换新风系统,高效换气无死角,大幅降低室内污染物浓度。无论室外空气如何,室内环境永远健康。

示意图

低噪、适光:同层排水系统和外遮阳卷帘、加厚外墙等,在保温隔热的同时,也阻隔了室外的噪音和刺眼的阳光。

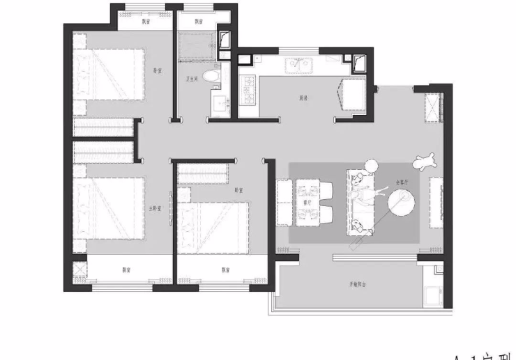
95平A2户型(3-2-1)

117平B1户型(3+1-2-2)

117平B2户型(3+1-2-2)

洋房117平C户型(3+1-2-2)

139平D户型(4-2-2)

洋房148平E户型(4-2-3)

朗诗太湖朗郡

售楼热线:400 870 9151 ✔✔✔☎

置业顾问:131 8266 1993(同微信)✔✔✔☎

售楼处位置:400 870 9151 ✔✔✔☎

预约看房,置业顾问一对一对接,享受额外优惠!

全部

相关资讯

报名成功
稍后会有专业的置业顾问联系您
返回楼盘

频道导航

返回首页

看房小程序

APP下载

电话拨通后,请您手动拨打分机号

确定拨打电话

电话号码:

分机号:(可能需要拨分机号)