吴江汾湖自带商业综合体现房-(嘉乐城 营销中心)丨最新消息丨首页网站丨商业配套丨在售面积段丨户型解析丨项目笔记丨楼盘测评!

连云港楼市发布

2025-07-29 12:20:00

购房群

买房如何避坑,加入购房群,看看他们怎么说

立即进群

吴江汾湖嘉乐城

自带商业综合体嘉乐城

长三角一体化先行启动区

售楼热线:400 870 9151 ✔✔✔☎

置业顾问:131 8266 1993(同微信)✔✔✔☎

售楼处位置:400 870 9151 ✔✔✔☎

预约看房,置业顾问一对一对接,享受额外优惠!

价格:11000起

交房时间:现房得房率:79%-79%

总栋数/总户数:2栋/198户

绿化/容积率:18.5%/4.9

车位比:1:1.14产权年限:70年

总楼层数:高层24-33层

物业公司/费用:好得家物业/1.7元/月/平米

几梯几户:高层1梯2户/高层2梯4户/高层3梯6户

面积:86-107-111-113-114-121-127㎡

开发商:苏州鹏云集团

楼盘位置:江苏省苏州市吴江区浙江路

百湖之城 生态宜居住区

汾湖拥有得天独厚的自然宜居禀赋,区域内有143个天然湖泊,其中重点保护湖泊约23个,水域覆盖率达到40%,绿化率高达42%,形成了以洋砂荡为中心的最具活力“城市核心蓝绿带”。

高新产业聚集 助力城市发展

汾湖高新区现有各类企业约2800余家,拥有永鼎股份、康力电梯、东吴水泥、欧普照明四家上市公司,还有华为研发基地、京东智能产业园、英诺赛客等头部企业落户于此。同时,投资超260亿的人工智能产业制造基地现已开工,将成为汾湖的产业新地标,拉动汾湖经济的飞跃式发展。

高铁直达 虹桥下一站

苏州南站(汾湖站)位于长三角一体化先启区——汾湖,沪苏湖铁路、通苏嘉甬城际高铁于此呈“十字”交汇,其中沪苏湖铁路由上海虹桥枢纽引出,途经上海松江、苏州吴江,至浙江湖州站,通车后将实现由汾湖8分钟到松江,快速到达上海虹桥枢纽,将汾湖与上海更紧密的联系在一起。

交通配套:

项目周边公交站点密集,如文化中心站仅70米,可通过7308路、792路等直达;未来将无缝对接上海地铁17号线和苏州轨交10号线,并毗邻沪苏湖高铁苏州南站(约7公里),通车后20分钟可达上海虹桥枢纽

商业配套:

自带20万㎡商业综合体,含富泰超市(64米)、社区集智慧超市(172米)及国际院线、亲子乐园等;周边有乐购超市(114米)、华润万家(1.8公里)及碧乐时光·汾湖等商圈

教育配套:

1.6公里内覆盖全龄段学校,包括蓝蝶幼儿园(902米)、上海世外附属汾湖实验小学(1.3公里)、汾湖高新区实验初中及中加合作苏州枫华高级中学校等

医疗配套:直线3公里范围内有吴江区第五人民医院,并规划建设三级甲等综合医院

生态休闲:

三面环湖(大渠荡、三白荡、洋砂荡),直面大渠荡生态公园;周边3公里内有洋砂荡公园、芦墟大渠荡生态公园、湘几漾湿地公园等12个休闲场所,水域覆盖率达40%

生活服务:

银行包括建设银行、江苏银行等多家网点;酒店有项目自有的四星级酒店及周边如家、知音酒店;日均购物需求可通过周边9个商场满足

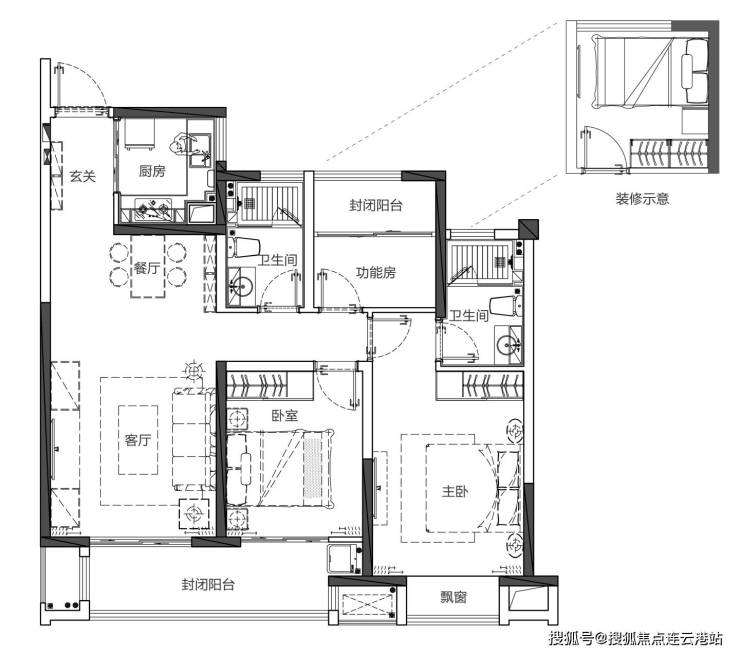
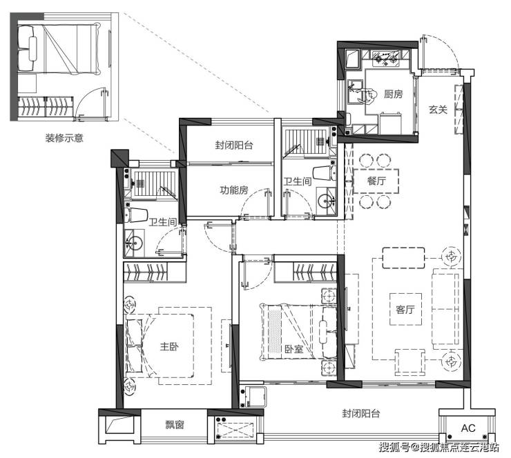
户型鉴赏:售楼热线:400 870 9151 ✔✔✔☎

A户型127㎡3室2厅2卫

B户型111㎡3室2厅2卫

C户型114㎡3室2厅2卫

吴江汾湖嘉乐城

自带商业综合体嘉乐城

长三角一体化先行启动区

售楼热线:400 870 9151 ✔✔✔☎

置业顾问:131 8266 1993(同微信)✔✔✔☎

售楼处位置:400 870 9151 ✔✔✔☎

预约看房,置业顾问一对一对接,享受额外优惠!

全部

相关资讯

报名成功
稍后会有专业的置业顾问联系您
返回楼盘

频道导航

返回首页

看房小程序

APP下载

电话拨通后,请您手动拨打分机号

确定拨打电话

电话号码:

分机号:(可能需要拨分机号)